查看完整案例


收藏

下载
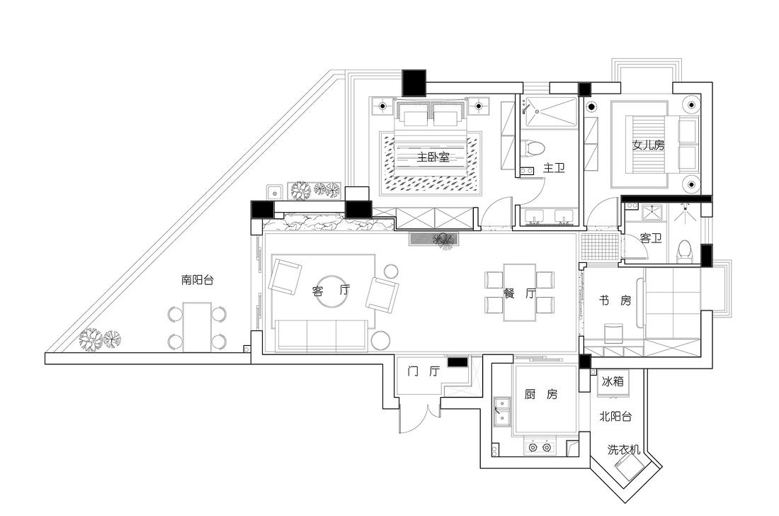
原始户型有什么问题?
餐厅空间区域过大,客厅区域不明确,卫生间过小,主卧室空间较小储物空间不足,主卫生间使用不方便,厨房空间过小,原有建筑结构整体功能划分效率较低动线不明。
客户有哪些需求?
原有户型由于未隔任何墙体,客户对于空间功能划分不知如何取舍。需要两个卧室,两个卫生间一个书房,功能使用方便美观大方。
设计师如何解决的?
1、门厅拆掉墙体充分利用入户空间制作鞋柜和储物空间,同时增加隔断划分功能区域。
2、厨房设计使用集成灶增加了操作台面和上柜空间,解决了原有的储物空间使用不足的问题。
3、原有书房空间较小,不过榻榻米的设计充分利用了房间每一寸空间,同时也满足了书房的基本使用功能。地台床也增加了额外的储物功能。
4、主卧室与主卫生间墙体重新调整,增加了两个空间的面积,保证了主卧室可以使用1米8的大床同时也兼顾到了储物功能,主卧室整体空间感觉不拥挤并且实用,主卫生间也是如此。
5、异形的阳台空间设计为休闲区,种花喝茶休闲好空间。
屋主人好客,客餐厅的设计重心就落在了一个“客”字上。
地板选用更易清洗、更耐磨损的全瓷砖铺设,大理石贴墙与地面一起,把客餐厅的整体基调定在了一个雅字上,典雅大气。
入户门厅以白色作为基调,紫色门套作为点缀,整体空间惊艳脱俗。鞋帽柜满足一家人回家时基本收纳需求,玻璃隔断巧妙的隔离外界的尘煞,主人回到家马上就能感受到的家的轻奢典雅。
深色的皮质沙发把整个客厅的冷色调提了起来,像一杯香醇的咖啡,迅速捂暖了大理石的冷硬。
电视墙的湖蓝拼接借着装饰画的起承转合,一路将一抹清新送上了餐桌,桌面荡起涟漪,拖着细腻的瓷盏,与客厅遥相呼应。
黑白两色的更迭交替,金色镶嵌的细节处理,橱柜的金属质感,让这个本该热火朝天、百味陈杂的地方瞬间退去燥热和辛辣,让人不禁感叹原来柴米油盐也可以很优雅。
客卫空间不大,但基本功能也是需要满足的,淋浴区摒弃了常规的弧形做法和钻石拼法,将马桶与沐浴区合二为一,依靠铺贴不同色彩砖做为功能的区分。玻璃隔断的设计保证干湿功能的区分。黑灰色的墙砖加上镀镍的花洒和龙头让小小的空间显得那么特别。
与主卧不同,女儿房更像是湖,翠林环绕的一汪碧潭,像一刀切开的青柠,是正值芳华的青涩与单纯。垂挂的帐幔,是公主梦的未完待续,是海的纵容与庇护。
主卧室浅棕色、黑色、紫色、白色,四大色块干净利落的划分出主卧的空间层次,床头细节的处理使空间更有纵深感。
皮质大床奢华内敛,用包容万象的气场,把跃跃欲试的地板、喧宾夺主的墙面收归一体,点缀宝蓝的床品,随意搭一条薄毯,仿佛真是那有容乃大的海,江流化作白浪,渐渐沉入海底,愈深愈遂。
由于整个房间的空间有限,屋主人也没有在主卧室看电视的需求,为了增加储物,卧室东面墙设计一整面衣柜,抛弃了常规的主卧室安装电机的做法。
主卫生间银白龙和爵士白的采用与客厅的整体色调一脉相承,三种切割成不同大小的瓷砖拼接造型,使小小一方天地也能层次分明。
干湿功能区的划分,充分利用了空间和时间上的间隙,使功能使用更具灵活性。
异形的阳台空间很开阔,除了洗衣晾晒,还是很好的休闲区。整体空间铺木纹地砖,木质座椅与灰蓝色外墙砖搭配古朴自然。都市人快节奏的工作状态,回到家里才是生活,在这偌大的阳台种些花草,茗茶静养放松一天的疲劳。
客服
消息
收藏
下载
最近



























