查看完整案例


收藏

下载
我们将负一楼规划成了整个家的“娱乐空间”——既有影音室,平时让孩子在这里唱歌、看电视等,通透的空间也足以他们跑跳打闹。因为是小朋友玩耍的地方,所以用了卡通玩偶进行装饰,充满童真和趣味。
我们将负一楼规划成了整个家的“娱乐空间”——既有影音室,平时让孩子在这里唱歌、看电视等,通透的空间也足以他们跑跳打闹。因为是小朋友玩耍的地方,所以用了卡通玩偶进行装饰,充满童真和趣味。
我们将负一楼规划成了整个家的“娱乐空间”——既有影音室,平时让孩子在这里唱歌、看电视等,通透的空间也足以他们跑跳打闹。因为是小朋友玩耍的地方,所以用了卡通玩偶进行装饰,充满童真和趣味。
方女士一开始就表明了自己的意愿,她喜欢现代美式轻奢,想要多一点衣帽间,希望我们在打造的时候,着重注意空间的实用性和通透性。房间整体选用偏冷调的杏灰进行装点,墙面刷过一次之后业主觉得颜色比想象中单薄了一些,所以经过讨论之后我们在原本基础上增加了一点暖色,让视觉看上去更舒服,也更有家的温馨,细节处透露出设计师和业主的高要求。
方女士一开始就表明了自己的意愿,她喜欢现代美式轻奢,想要多一点衣帽间,希望我们在打造的时候,着重注意空间的实用性和通透性。房间整体选用偏冷调的杏灰进行装点,墙面刷过一次之后业主觉得颜色比想象中单薄了一些,所以经过讨论之后我们在原本基础上增加了一点暖色,让视觉看上去更舒服,也更有家的温馨,细节处透露出设计师和业主的高要求。
方女士一开始就表明了自己的意愿,她喜欢现代美式轻奢,想要多一点衣帽间,希望我们在打造的时候,着重注意空间的实用性和通透性。房间整体选用偏冷调的杏灰进行装点,墙面刷过一次之后业主觉得颜色比想象中单薄了一些,所以经过讨论之后我们在原本基础上增加了一点暖色,让视觉看上去更舒服,也更有家的温馨,细节处透露出设计师和业主的高要求。
方女士一开始就表明了自己的意愿,她喜欢现代美式轻奢,想要多一点衣帽间,希望我们在打造的时候,着重注意空间的实用性和通透性。房间整体选用偏冷调的杏灰进行装点,墙面刷过一次之后业主觉得颜色比想象中单薄了一些,所以经过讨论之后我们在原本基础上增加了一点暖色,让视觉看上去更舒服,也更有家的温馨,细节处透露出设计师和业主的高要求。
方女士一开始就表明了自己的意愿,她喜欢现代美式轻奢,想要多一点衣帽间,希望我们在打造的时候,着重注意空间的实用性和通透性。房间整体选用偏冷调的杏灰进行装点,墙面刷过一次之后业主觉得颜色比想象中单薄了一些,所以经过讨论之后我们在原本基础上增加了一点暖色,让视觉看上去更舒服,也更有家的温馨,细节处透露出设计师和业主的高要求。
方女士一开始就表明了自己的意愿,她喜欢现代美式轻奢,想要多一点衣帽间,希望我们在打造的时候,着重注意空间的实用性和通透性。房间整体选用偏冷调的杏灰进行装点,墙面刷过一次之后业主觉得颜色比想象中单薄了一些,所以经过讨论之后我们在原本基础上增加了一点暖色,让视觉看上去更舒服,也更有家的温馨,细节处透露出设计师和业主的高要求。
方女士一开始就表明了自己的意愿,她喜欢现代美式轻奢,想要多一点衣帽间,希望我们在打造的时候,着重注意空间的实用性和通透性。房间整体选用偏冷调的杏灰进行装点,墙面刷过一次之后业主觉得颜色比想象中单薄了一些,所以经过讨论之后我们在原本基础上增加了一点暖色,让视觉看上去更舒服,也更有家的温馨,细节处透露出设计师和业主的高要求。
方女士一开始就表明了自己的意愿,她喜欢现代美式轻奢,想要多一点衣帽间,希望我们在打造的时候,着重注意空间的实用性和通透性。房间整体选用偏冷调的杏灰进行装点,墙面刷过一次之后业主觉得颜色比想象中单薄了一些,所以经过讨论之后我们在原本基础上增加了一点暖色,让视觉看上去更舒服,也更有家的温馨,细节处透露出设计师和业主的高要求。
岩板材质的餐桌下面用金属柱体进行固定,符合设计师用金属进行点缀提亮空间的理念。亚克力的餐椅淡雅素净,一面酒柜和餐桌相对,温润的色泽与美好的生活交织。
岩板材质的餐桌下面用金属柱体进行固定,符合设计师用金属进行点缀提亮空间的理念。亚克力的餐椅淡雅素净,一面酒柜和餐桌相对,温润的色泽与美好的生活交织。
岩板材质的餐桌下面用金属柱体进行固定,符合设计师用金属进行点缀提亮空间的理念。亚克力的餐椅淡雅素净,一面酒柜和餐桌相对,温润的色泽与美好的生活交织。
岩板材质的餐桌下面用金属柱体进行固定,符合设计师用金属进行点缀提亮空间的理念。亚克力的餐椅淡雅素净,一面酒柜和餐桌相对,温润的色泽与美好的生活交织。
厨房本来的面积不够宽敞,我们将客厅和厨房之间打通,拓宽使用面积。厨房的墙地面用大理石瓷砖铺开,深色的橱柜采用L形的布局,扩展了储藏空间,一日三餐都在这里烹饪,展现浓浓的人间烟火气。
厨房本来的面积不够宽敞,我们将客厅和厨房之间打通,拓宽使用面积。厨房的墙地面用大理石瓷砖铺开,深色的橱柜采用L形的布局,扩展了储藏空间,一日三餐都在这里烹饪,展现浓浓的人间烟火气。
厨房还设置了一个小“心机”—靠着半墙的位置设置了一个mini小吧台,细腻的大理石打造出光滑的台面,正对二楼的楼梯,平时坐在这里喝水聊天都很方便。
厨房还设置了一个小“心机”—靠着半墙的位置设置了一个mini小吧台,细腻的大理石打造出光滑的台面,正对二楼的楼梯,平时坐在这里喝水聊天都很方便。
厨房还设置了一个小“心机”—靠着半墙的位置设置了一个mini小吧台,细腻的大理石打造出光滑的台面,正对二楼的楼梯,平时坐在这里喝水聊天都很方便。
一楼的老人房用大气温婉的香槟金作为主色调,同色系的壁纸简约时尚,色系统一可以减轻视觉上的拥挤感,白纱窗帘有岁月静好的感觉。
一楼的次卫整体延续了统一的风格,保证空间的实用性,储物柜是一个亮点,镜面和墙面形成空间上的碰撞,干净宽敞的空间令人舒适。
业主喜欢的水晶灯和特意用两个金属饰品拼接在一起的金属框架交相辉映,充满创意的业主在家的装饰上面很用心,才能有这么细节感满满的空间。
主卧的衣帽间位于左边,将原本的墙拆掉,增加了主卧的面积,空间更加宽阔。设计师在衣帽间和卧室之间的门上加了门帘,既可以起到隔断的作用,又具有美观性。
主卧的衣帽间位于左边,将原本的墙拆掉,增加了主卧的面积,空间更加宽阔。设计师在衣帽间和卧室之间的门上加了门帘,既可以起到隔断的作用,又具有美观性。
主卧的衣帽间位于左边,将原本的墙拆掉,增加了主卧的面积,空间更加宽阔。设计师在衣帽间和卧室之间的门上加了门帘,既可以起到隔断的作用,又具有美观性。
主卧的衣帽间位于左边,将原本的墙拆掉,增加了主卧的面积,空间更加宽阔。设计师在衣帽间和卧室之间的门上加了门帘,既可以起到隔断的作用,又具有美观性。
主卧的衣帽间位于左边,将原本的墙拆掉,增加了主卧的面积,空间更加宽阔。设计师在衣帽间和卧室之间的门上加了门帘,既可以起到隔断的作用,又具有美观性。
主卧的衣帽间位于左边,将原本的墙拆掉,增加了主卧的面积,空间更加宽阔。设计师在衣帽间和卧室之间的门上加了门帘,既可以起到隔断的作用,又具有美观性。
步入衣帽间里面连接主卫,干湿分离的方式很好地利用了空间,在简约中隐匿轻奢,流转处乍现优雅。
次卧是紫粉色的儿童房,因为女儿喜欢冰雪奇缘,业主用美丽的艾莎公主墙布铺满整个墙,包括衣柜和书桌也是嫩嫩的紫色,带有浓郁的少女心。
次卧是紫粉色的儿童房,因为女儿喜欢冰雪奇缘,业主用美丽的艾莎公主墙布铺满整个墙,包括衣柜和书桌也是嫩嫩的紫色,带有浓郁的少女心。
小儿子的房间用奔跑的小马进行点缀,黑白色线条的小马有满满的活力和青春感,因为小朋友属马,就连衣柜的把手都是金属的马头,可以看出女主人的用心和体贴,给打造孩子一个富有童趣的居住空间。
值得一提的是业主花了很多心思的小花园,在入户处一方小小的花园展现着它的生机盎然,专门请园艺公司打造的花园种上了鲜花,在悠闲的午后、傍晚,谈天说地,是人生一大幸事。
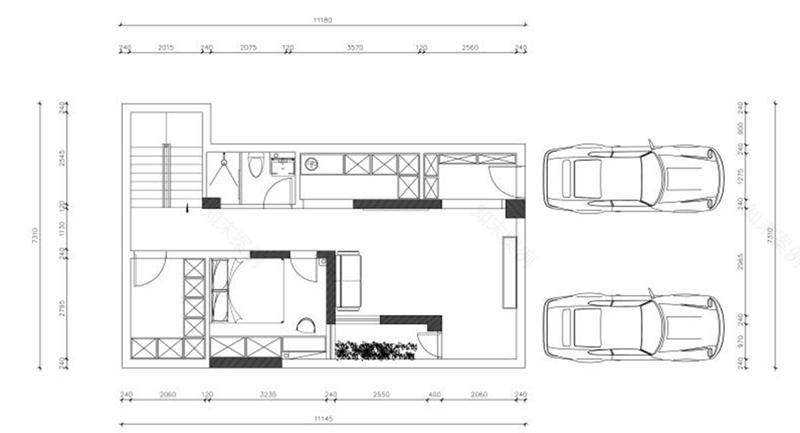
负一楼平面布置图
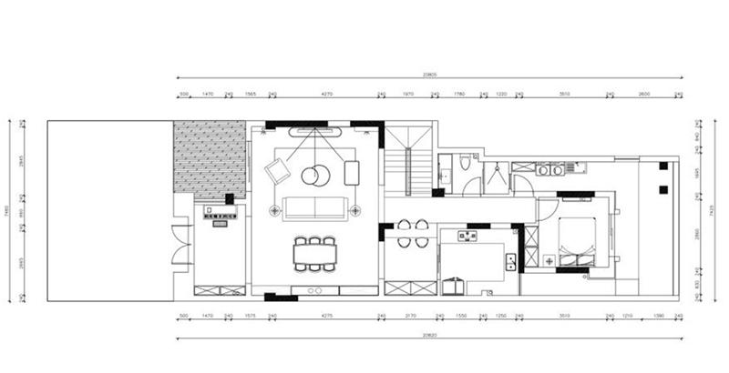
一楼平面布置图
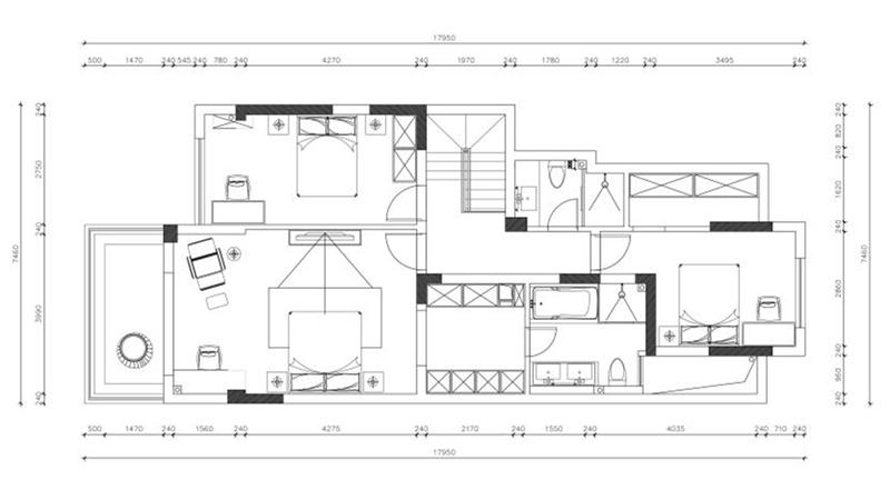
二楼平面布置图
客服
消息
收藏
下载
最近







































