查看完整案例


收藏

下载
厨房操作台与餐厅结合,增大了厨房的操作也集成了餐厅的使用
客厅保留了原有的挑空,整个电视墙面一直延伸至上
沙发所在是原有步行楼梯的位置,重新划分结构后做了拆除的动作,摒弃了狭窄陡峭的步行梯,改换成了螺杆式电梯,静音安全同时也节省了很多空间
开放式的厨房选择黑色橡木饰面材质,台面从平面一直延续到立面,形成一体;简单好打理,视觉上也很极简
原有挑空的保留使得楼上与楼下的互动更为紧密,同时也有更好的采光和通风效果
客厅户外无楼群遮挡,使得光线入室更为强烈,白色纱帘更好的让室内光线变得柔和
从楼上望向楼下,两种材质的交迭;两种色温的感受,无论哪一种都透露出生活的精致
电梯上来的角落被设计成了阅读区,一杯咖啡一本书,在看书之余还可以与同层或客厅相互互动
磁吸轨道灯和外置筒灯照明,很好的保证了房间的高度,与卧室之间的分割是调光玻璃,电源切换透明度与磨砂的功能,更好的保证了卧室的隐私
磨砂效果打开的情况下更有效保护了卧室的隐私
主卧室与书房之间的调光玻璃在透明状态下,视野穿过书房越过客厅挑空直达户外,使得二层原本局促的空间变得更通透
床头不规则的斜面墙体进行了优化设计后,变成了内置光带的造型背景,同时也解决了床摆放的问题
床头背景依然采用黑橡木的材质,与棉麻的布艺对比起来更稳重精致
调光玻璃磨砂状体下保护了卧室的隐私
调光玻璃透明状态下增加了空间的视野
在卫生间和卧室之间用吊轨的玻璃移门分隔出了衣帽间,既增加了功能使用也阻挡了卫生间和窗户直对床的弊端
二层卫生间重新调整了门和内部的使用位置,虽然面积不大,但是通风采光和使用功能全部都很良好
一层的卫生间主要是以客人使用和洗衣房功能为主
餐厅效果图
书房/卧室效果图
客厅效果图
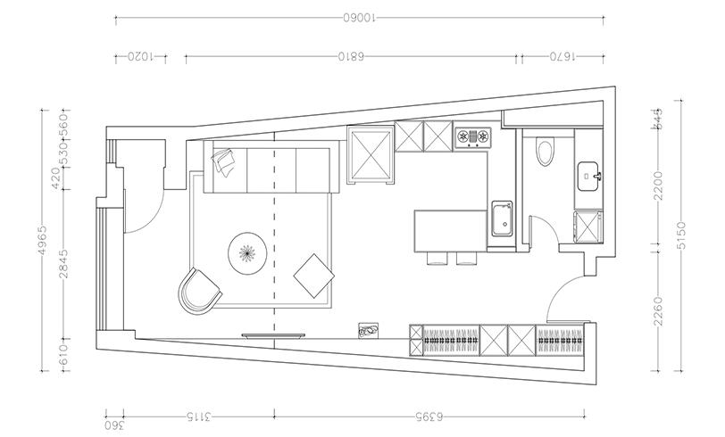
一层户型图:入户后利用柜体将原本斜面的墙体找方正,并嵌入大量的储物;厨房与餐厅结合起来,增加了功能使用的同时减小占地面积,从而达到扩充空间的效果;拆除原沙发位置的步行梯,增加了电梯在厨房与沙发之间,更好的隔绝了两个空间过近带来的油烟和局促问题,也扩大了客厅的空间使用
二层户型图:重新调整了平面的布局,并加入了电梯,对于上下楼来说更为方便,原本的两个空间变成了三个空间,而卧室也变得更宽敞,也融入了更多的收纳
客服
消息
收藏
下载
最近

























