查看完整案例


收藏

下载
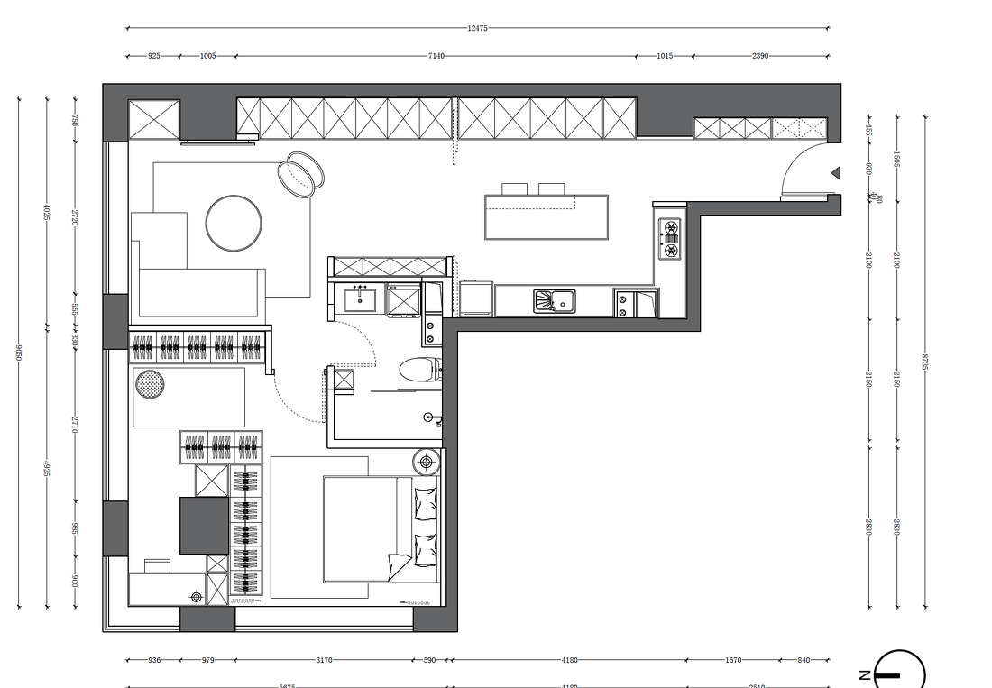
Floor plan/重新调整结构后,将卫生间的门远离餐区,厨房以开放式设计加入了岛台兼餐桌的功能,在共享空间的过道部分增加了整面的收纳。
Original plan/公寓楼在结构使用上是没有优势的,一般公摊面积比较多,而且框架式的结构会有很多柱体影响到使用。
右侧一整面的收纳柜,配合不同区域空间来使用。
入户门厅右侧增加换鞋的区域,方便坐下换鞋,并把换下的鞋子推入下方使门厅更整齐。
在侧面储物柜中其中一组是给厨房留做收纳使用的,同时将烤箱嵌入进去方便操作。
开放式厨房采用白色哑光烤漆饰面,增加了空间的开阔感。
餐厅与客厅之间的过渡区域增加了收纳展示的区域,同时也可以作为休闲区来使用。
为厨房增加的岛台除了正常操作之外,也被用作就餐,替代了餐厅,也可以作为办公使用。
电视墙部分用同色材质的墙板与收纳柜结合成一体
铝框玻璃柜除了展示功能外,也可以为客餐厅之间增加辅光源照明。
从入户到客厅经过餐厅,休闲区到客厅,电视墙与收纳柜一整面同色材质让空间从入户贯穿至客厅,下方用光线增加悬浮感,使柜体不会显得笨重。
电视背景放置在原结构柱上面,用同材质与柜体连接成一面。
整个卧室空间色系也比较简单,温暖的木色配合黑白灰色系,让空间更质朴安静。
千年木是业主与设计师不谋而合的选择。
卧室空间因梁的分布使得吊顶下高度比较局促,从而在处理手法上采用极简风格并增加了辅光源照明。
床头采用布艺软包加以辅光源照明,定制的床头隔板节省了不少空间。
在卧室空间到书房之间用衣帽间来分割,保证了两个空间互不干扰的同时也加入了收纳的需求,同时卧室衣柜的木饰面一直延续到衣帽间至书房,也很好的将结构柱体包裹形成一体。
衣帽间采用了一部分玻璃衣柜,增加了衣帽间的通透感,同时也方便拿取衣物。
在卧室衣柜的背侧划分了一小部分作为工作用的小书房,与卧室空间互不打扰,也更好的利用了由于框架柱体造成的空间碎片化。
书房的位置是由衣帽间进入
穿衣镜设置贼卧室门背后,在拿取衣物时转身便可使用。
客厅采用了无主灯的方式进行照明,减轻了普通照明方式的笨重感同时让空间变得更为极简。
将卫生间原来的门更改位置后,变成了盥洗盆和洗衣、烘干机的位置。灰色的墙地砖延续客厅的风格。
马桶改成了壁挂式,方便打扫卫生不留死角。
客服
消息
收藏
下载
最近


























