查看完整案例


收藏

下载
此户型为loft,为了节约空间和扩大视觉感,拆除了原有的楼梯,更换成了螺杆式的电梯,功能上更便捷;由于高度有限,在灯具设计上用条形的LED光源给予空间充分的照明,并增加了现代感。
整个设计的主要颜色为黑白灰色系,用橘色局部点缀,黑色的橡木饰面板后面是隐藏的收纳系统,虽然空间比较小,但是有序的收纳让空间看起来更简约大气。
整个设计的主要颜色为黑白灰色系,用橘色局部点缀,黑色的橡木饰面板后面是隐藏的收纳系统,虽然空间比较小,但是有序的收纳让空间看起来更简约大气。
二层楼梯出来的部分作为了书房,可以与楼下的空间相互呼应沟通,与卧室之间用调光玻璃作为隔断,增大空间和采光的同时又保护了主人入睡的隐私。
二层的格局因为电梯的加入而改变了卧室的位置,并重新规划,将原来的过道空间统统利用上,并增加了衣帽间,以卧室间用推拉玻璃移门来分隔,空间上增加了更多的互动性。
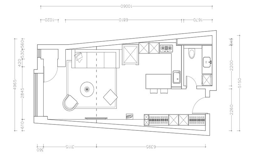
一层的空间在入户的部分增加了大面积的收纳,表面以黑色橡木饰面作为主色调;并将原本不方正的空间从视觉上调整到方正,开放式的厨房与倒台的连结,同时也可以作为餐桌来使用,并保留了一个卫生间,功能上与洗衣房相结合在一起。
二层有限的面积里保留原卫生间的位置,重新调整内部使用功能,增加了大的淋浴房和壁挂坐厕;而且隐藏在衣帽间内侧,而卫生间和衣帽间都有采光并有良好的通风;卧室与书房之间用调光玻璃隔断来分隔,保证了白天的光线充足的同时也更私密。
客服
消息
收藏
下载
最近









