查看完整案例


收藏

下载
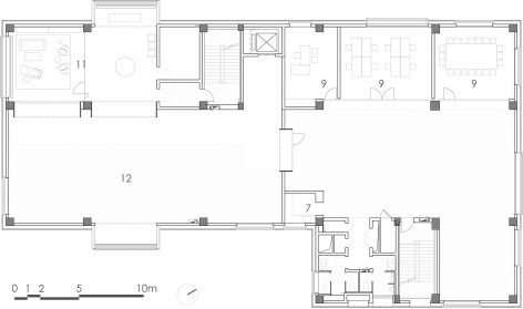
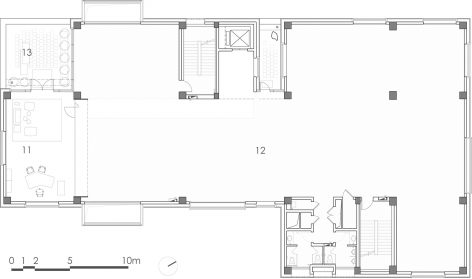
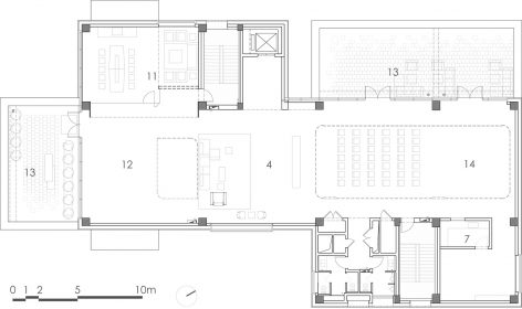
名称: 华鑫 慧天地体验中心
地点: 上海浦东新区丹桂路999号
类型: 销售展厅
设计单位:
刘宇扬建筑事务所
,
茅氏设计
主持建筑师: 刘宇扬,Herman Mao
建设单位:华鑫置业
施工单位: 上海建筑装饰有限公司
家具供应:MATSU, van collection
建筑面积: 3200平方米
装饰面积:1880平方米
设计时间: 2015.01-2015.03
施工时间: 2015.04-2016.02
摄影:
Herman Mao Photography
Name: Huaxin Wisdom Mark Experience Centre
Location: 999 Dangui Rd., Pudong, Shanghai
Type: Sales showroom
Architects:
Atelier Liu Yuyang Architects
,
M
aos Design
Design Principals: Liu Yuyang, Herman Mao
Client: China Fortune
Contractor: Shanghai Construction Decoration Co., Ltd
Furniture Supply: MATSU, van collection
Building Area: 3200 sqm
Design Area: 1880 sqm
Design Stage: 2016.01-2016.03
Construction Stage: 2016.04-2016.06
Photography:
Herman Mao Photography
客服
消息
收藏
下载
最近




























