查看完整案例


收藏

下载
一面藏蓝墙面奠定入户轻奢调性,并规划出玄关与楼梯区域,艺术挂画营造家中氛围。在楼梯下方打造光影空间,创意灯饰不仅营造氛围感,更为上下楼梯时提供光源。实木+玻璃的元素组成楼梯扶手,让光线更好地散落下来。
轻奢风格彰显了精致的生活品味。电视旁边、玄关对面拜访浪漫线条装饰的整身穿衣镜,黄色边框灵动整片空间。
白色的布艺沙发与白色圆茶几给予客厅满满的高级感。低饱和度的窗帘与地毯,更是为这篇空间增添了几分柔缓与舒适。艺术吊灯+创意挂画,令人赏心悦目。
开放式厨房里,家用电器一应俱全。大理石与木质结合的小吧台和可容纳多人的餐桌,满足了家中的多种就餐需求。灰色橱柜与图案地砖相结合,让餐厨区域更加精致。
餐厨一体化设计,空间开阔而温馨,。
从餐厅到客厅,餐厅到厨房,动线流畅,没有一点阻碍。
主卧采用木色与绿色为主色调。木色软包墙头与花纹背景墙浑然天成。摒弃传统床头柜,改为创意造型,添加了浓厚艺术氛围。
拾级而上,来到二层空间。正对着楼梯的是一方书桌。艺术摆件与挂画增添了浓厚的文化氛围。茶色玻璃墙既保证了采光,又圈出书房天地。乐动的壁炉火苗仿佛置身欧洲。
经典的欧洲风格沙发与地毯格外活泼与亮眼。与书桌相对的是“下沉式”休憩区。藏蓝色墙面搭配摇滚挂画,不羁中不失沉稳。
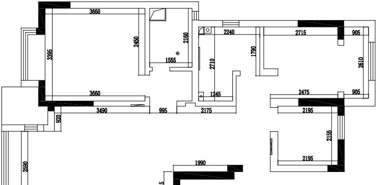
一层原始平面图 / Original plan
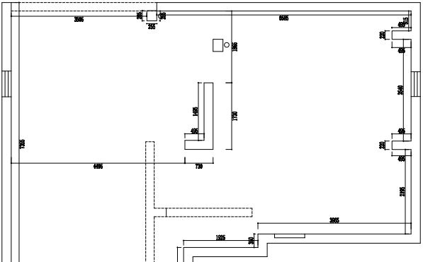
二层原始平面图 / Original plan
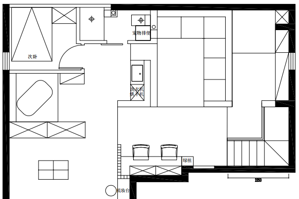
一层平面布局方案 / Plan layout
二层平面布局方案 / Plan layout
客服
消息
收藏
下载
最近














