查看完整案例


收藏

下载
CAOMULI
项目名称:渔趣
项目类型:丽子渔具店
项目地址:湖南/平江
建筑面积:60㎡
设计风格:现代风格
主案设计:沈荣
参与设计:吴雨雅
设计时间:2020年06月
CAOMULI
原场地图
▲原场地门头
实景照
▲原场地
室内
实景照
▲原场地室内实景照
CAOMULI
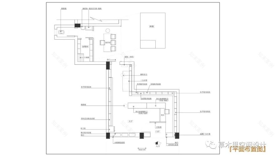
平面布置图
▲平面布置图
CAOMULI
效果图
人们对于渔具店的刻板印象是商超般大大小小的产品柜,渔具产品玲琅满目,给人一种眼花缭乱之感;
因此在本案的设计上我们力求达到小而精的空间陈列效果。
在门头材质的选择上,稻草漆的运用给人一种自然的乡土之气,仿佛置身于宁静古朴的环境中。沉稳的蓝色艺术涂料的与大地色的稻草漆贯穿室内外,效果十分别致、迷人,给人一种忆苦思甜、沉稳安宁以及回归自然的感觉。门头在设计表现形式上动静结合,长约1.2米的成品胶合板的鱼灯设计,通过水波纹不锈钢板的映衬,打破了门头平静的画面,使得整个门头充满了灵气的同时更具动感,站在底下抬头往上看,被灯光渲染的水波纹不锈钢板,波光粼粼,仿佛鱼儿在水里自由自在的徜徉,时而摆摆尾巴,好像是在跟小伙伴们打招呼。
在空间布局上,设置的入口玄关,给一览无余的空间在动线上增添了几分趣味性。茅草,竹艺,泥土等等这些都在诠释着一个主题,并想告诉渔者空间的人情味和温度感是引导您走进店里的感官体验;这也许就是那些成千上万的垂钓者拥抱自然的快乐吧。
静如处子,动如脱兔,动静转换是垂钓基本的运动形式,这样的运动形式同样也适用于此次的空间设计当中;室内部分,依旧是首尾呼应,鱼儿在水中嬉戏,墙面小渔船装置的设计,给垂钓人增添了许多代入感。在室内灯光的设计上,产品柜立板做斜面处理,暗藏的灯带向下溢出满足了产品展示的基本照度,而天花的轨道射灯则作为重点照明,来强化产品陈列的视觉效果。倚墙而立的产品柜除了满足基本的产品分类之外,更多的是想通过编织的墙布背板来串联产品之间的形态关系,进而达到统一不显凌乱的画面感。
闲来静处,野外溪旁,一垂线,一钓钩,抛却生活的种种烦恼,拥抱大自然的气息,这便是你所热爱的,也是我理解的渔趣。
CAOMULI
竣工照
▲入口
实景照
门头
实景照
▲室内实景照
▲室内实景照
▲鱼灯
水波纹不锈钢板和鱼灯实景
CAOMULI
关于草木里
沈荣所获部分荣誉
2020年度金住奖-中国浏阳十大居住空间设计师;
华鼎奖-国际环艺创新设计作品大赛商业空间类-金奖;
2019年度湖南浏阳40UNDER40中国设计杰出青年;
湖南浏阳室内设计大赛新锐设计师;
顶峰设计奖 CG漫游类-银奖;
湖南浏阳室内设计大赛商业空间方案类-铜奖
DESIGN FOCU空间设计大赛年度商业设计方案类-优秀奖;
草木里空间设计工作室成立于2017年
我们坚信匠人精神可以创造非凡的作品
我们坚持做有“温度”的让人愉悦的住宅空间设计
设计的附加值”能给商业空间带来更大的效益
住宅别墅设计(小户型空间/家居空间/平层空间/别墅空间/自建别墅空间设计)商业空间规划设计(店铺/商超/餐饮/会所/办公楼/文化空间/娱乐空间设计)机构地址(浏阳市集里街道首之都公馆)(沈先森:
15111011816)-END-
···往期设计案例回顾
客服
消息
收藏
下载
最近
































