查看完整案例


收藏

下载
“家”的设计迷人之处,是因为它无限地还原人的血肉,带有故事和情感。我们常常很难回答关于风格的问题。比起定义一个居室的风格,我们更愿意去描述,住在那里面的,是一个怎样的人,有着怎样的爱好,经历,关系。与其“设计”一个家,不如呈现一个家,构建一种生活场景。这个过程会很像完成一部小说,一开始,你塑造他的面目、轮廓,组织他的爱好,揣摩他说话的方式,独处的样子,就这么一点点勾勒出他的个性,日常,然后用每一本书,每一部电影,一首恰到好处的音乐,和那些带着偏见的艺术品,去丰满他的血肉脉搏。用这些带着他的精神的物件,去构成一个个生活的片面。最后的最后,当你赋予了空间足够鲜活的情绪、好恶和情感之后,它会自己说出故事来。——这些原始素材的采纳过程,我们称之为生活的加法,之后,我们要有所取舍,锤炼每一个细节,最终提炼出最适合的话语方式,来面对个性化和群体共鸣之间的平衡——也就是设计的减法。
项目为四层别墅,一层为起居空间,三面庭院环绕,是建筑最珍贵的资源,二、三层是家人居住的空间,地下一层则规划为容纳社交和性格爱好的空间,基于对整体空间的理解和人群生活的洞察,我们通过空间资源的改动,加载功能和生活方式的可能性,再从生活方式出发,细腻功能体验的舒适度和合理性,最后以带有精神的器物逐步打磨,构建出一个人、一个家的面貌与生活场景。
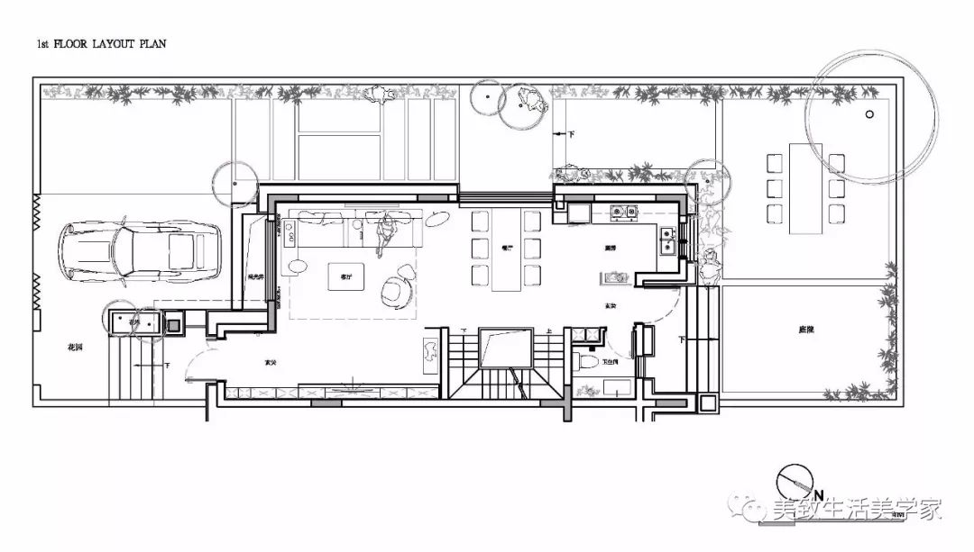
01FLOOR
原始平面图
最终平面图
在一层客餐厅,基于双入口设定,我们改变客厅原对称性布局,重新排布,优化动线,用主沙发和大茶几来创造稳定面,产生主次关系和空间节奏。
打开封闭式的厨房,与客厅隔着餐桌形成对望,家人与朋友在烹饪、用餐时有了更多的互动和趣味。
浓烈的红以不同的材质导入,贯穿于客餐厅的不同块面,不同灰度的黑与白,用肌理感强烈的棉麻、绒布材质间序其中,金属的光泽以线条的形式介入。
餐厅打破常规,艺术化的器皿和花艺替代餐具,与不规则的金属框相互呼应,链接起了空间的艺术性。
02FLOOR
原始平面图
最终平面图
二层设置为长辈与孩童的居住空间,同时开放居所的灵活度,将原起居室改造为兼纳客卧与陪伴成长功能的空间。
长辈房延续空间的整体调性,以材质本身的层次与质感去传达空间的气韵。
儿童房以低饱和度颜色的对比来延续温馨与鲜活,尊重孩子的社交需求,临窗设置长型的书桌,成为孩子之间结伴学习、玩耍的私属天地。
03FLOOR
原始平面图
最终平面图
三层更改原活动室的设定,以整层奢适的尺度,容纳主人在此间的所有生活需求。
基于现代家庭场景,体贴地设置了双卫浴的空间,让因工作而产生“时差”的男女主人,晚归冲凉、早起梳妆,皆互不干扰。
设计通过色彩的变化营造私密感,浓烈的红色在此再次被强调,肌理感被体现在边柜的黑色木质纹理、床品乃至挂画上手工镶缀的羽毛。
开放式的衣帽间,链接工作台与临窗的茶室,也链接起关于生活的切片:睡前的阅读、交谈,一起临窗看雨的静默,又或者在失眠的夜里斜靠在沙发上数远处的灯光明明灭灭,我们用想象力编织了一幅又一幅生活的片面,然后将故事抽走,把带着故事的家具留下。
B1 FLOOR
原始平面图
最终平面图
负一层改变原单一的功能设定,加载符合人群需求的社交、展示和健身空间。
关于色彩的所有欲望被彻底的释放。大面积的红、黑与金属的块面有序而大胆地碰撞,再用材质的细腻去柔和包容色彩的冲突。作为休闲的空间,围合相洽却又自由随意的家具排布,让这个空间亲密“有间”的同时更具个性,与充满层次的陈设产生对比,空间的张力由此而生。
一侧的收藏室安放着主人的喜好与性格的展示,从各地搜罗的汽车模型来自不同时代,大大小小的展示柜当中,也存放着一个“老男孩”的灵魂。
美致家居
ABOUT US
美致家居-你的生活美学家!
在各领域做出了许多经典案例,并与万科、绿城、蓝城、弘阳、宝龙、华鸿、北大资源、中天等国内一线地产公司建立了良好的战略伙伴关系。
公司作品涵盖国际性酒店、高端商业、地产精装及私家会所等丰富物业类型,均受到业主及同行的认可。
设计的作品被众多知名设计平台转发推荐。
作品被收录出版在《中国当代人文住宅》内。
曾获部分奖项:中国室内设计行业先进企业、中国十佳室内设计企业、美国AMP(The Architecture Master Prize)建筑大师奖、韩国K-Design Award国际设计大奖、CIID中国建筑学会室内设计专业委员等。部分案例如:雷迪森翡郦中心、万科启宸、绿城留香园、绿城兰园、蓝城春风桃源、弘阳正弘府、银城姑苏樾、华鸿国樾府、银杏汇、众安嘉润公馆、中天公元诚品、东方诚品、白沙泉金融小镇、望京糖朝汇、西溪汇金......
The design works are recommended by many well-known design platforms. The works were included and published in the "Chinese Contemporary Humanities House." Won some awards: China Interior Design Industry Advanced Enterprise, China Top Ten Interior Design Enterprise, US AMP Master Prize, Korea K-Design Award, CIID China Institute of Architecture Interior Design Professional Committee. Some of the cases are: Lei Disen <UNK> Center, Vanke Qichen, Green City Liuxiang Garden, Green City Lanyuan, Blue City Spring Peach, Hongyang, Yincheng Gusuyu, Huahongguo Yufu, Ginkgo Ginkgo Hui, Zhong An Jia Run Mansion, Zhongtian AD Eslite, Oriental Eslite, Baishaquan Finance Small town, Wangjing Sugar Chaohui, Xixi Huijin. .. .. .. .. ..
以上内容皆为美致原创!
相关文案、照片及相关设计版权皆为美致所有
长按关注:美致家居
地址:杭州市钱江世纪城鸿宁路2327号丽晶国际1-3301
客服
消息
收藏
下载
最近





















































