查看完整案例


收藏

下载
感谢与您的每一次遇见
轻奢的情怀与现代时尚的装饰相结合赋予空间灵动和悠远,摒弃传统的奢华风格,回归生活本真,本案为国际轻奢简约风。
家居空间给人时尚简约、气质优雅且不失温馨舒适的感觉 。整体以蓝色与米色为基调,明黄色作为点缀,精致中带有些许奢华。轻奢之美讲究品质与细节,既对精神考究又追求生活品质,是个人精神境界追求品味生活的具象化体现。
方案与实景呈现
主人随意摞起的杂志,翻开一半的书,茶几上的雪茄, 雪茄刀和器具的陈设……
设计由体现品味出发,放下寻常的墨守成规,更好的用生活化的方式去打造整个空间。从而以一种国际都市感的空间布局方式,引领一种全新的生活方式。
【客厅 Living room】艺术的真正意蕴不只是感官的直接感受,而是对心灵真是的触及。这需要用心去审慎辨别,拉近人心与本源的距离,达到人与环境契合的境地。动人往往的不是奢华,也不是奇异,而是精细的体验。客厅在考虑到舒适性的同时仍不放过任何一个释放格调的细节。皮革、当代饰品与金属质感的高度契合,达成静逸微妙的触感。一个精致的居住空间该是简约而国际化的,无处不体现生活的阅历所带来的成熟与自信。
方案与实景呈现
戴圆顶硬礼帽的男人作者:雷尼·马格里特,它作于1964年。戴圆顶硬礼帽、穿黑大衣的绅士即是马格里特本人。他用一只偶然飞过脸前的鸽子挡住他的容貌。据他自己解释,他要与巴黎大多数超现实主义画家相反,藐视用色彩作人物肖像,他只想告诉观众,画上的肖像不过是一个普普通通的中产阶级市民。既然他从不画别人,画他自己当然也在违避之例。有时,不是让人物背过脸去就是用偶然事物来遮挡。这是他的超现实派肖像画的另一特色。他的构思"所显示的语言和思想形象已超越从属的特性之上"。
【餐厅 Dining room】现代硬朗的设计感餐桌椅、和金属、黑玻、胡桃木饰面、皮革、等材质的精美配合,设计款的灯和现代摩登的人物画互相呼应,再加上餐具花艺等有别于常规的陈设品,会更加凸显出男女主人日常品质生活的场景,可谓独具匠心,彰显国际都市豪宅的轻奢气质。
【厨房 The kitchen】厨房的环绕型动线确保各功能区的顺畅流转,在软饰的陈设上,设计师根据男女主人的日常需要,在不同的功能区台面上布置了不同的厨房用品。空间整体而又互不干扰,像满是咖啡豆香味的咖啡区、果盘区、烹饪区、还有软饮区,细节决定了品质,呈现一种年轻化富有时尚感的轻奢气质。
方案与实景呈现
【客卧 The guest lies】
设计师希望不同的空间要素具有其内在特质,每个空间要素既有对比又和谐统一。对比要素之间能够形成紧密的美学联系,以获得和谐的整体空间表现效果。使得人居空间文化获得视觉与心理上的满足。次卧延续轻奢简约风,质感的同时也不乏温馨的点缀充盈空间,软装设计中的形态、大小、轻重及远近元素的合理配置,使人能够获得一种视觉上的平衡状态。能够带给人时尚新颖的感觉,同时又具有一定的动感活力。
【走廊 The corridor】方案与实景呈现
【主卧 The master bedroom】
艺术感不仅体现在空间环境的营造,细节的处理和材质的选择也透露出时尚气息,细致精巧,处处都可以看到对于生活品质的重视。主卧国际简约风的基础加以时尚低调轻奢范的搭配,简约内敛的色调,每一处细节的诠释都体现出设计师对精致生活的追求。
【衣帽间 cloakroom】
【卫生间 washroom】方案与实景呈现
【男孩房 The boy room】动感的湖蓝色搭配阳光般温暖的橙色,清新又不失时尚感,球类主题的背景墙把男孩对于球类运动的兴趣爱好也展现了出来。电视柜书桌一体的设计增强了空间感的同时兼备了功能性,给孩子们完整的书写空间,俏皮的饰品和棒球主题的装饰画让整体氛围更加浓郁。
【楼梯转角 Stair corner】方案与实景呈现
活动室FAMILY ROOM
活动室作为本案的休闲空间,更多的具备了娱乐性和生活性的功能。在风格一致的基础上,材质、面料更加奢华,家具款型更加简约大胆。设计师在琐碎的生活经验基础之上,通过对元素、饰品的细腻选择与创新,实践构建日常生活性的可能。国际轻奢的时尚之意,与简约现代的清雅相汇融合,设计突破对生活的简单描绘,在日常的丰富性中隐现细腻的情感与素朴的艺术。
吧台区 BAR AREA
品酒区吧台区共同构建了一个容纳小酌、交谈的场景。用色低哑,来自不喜张扬的个性。透过家具材质变化而发生的层次,暗中透露出主人对品味拿捏的尺度。
不同的居室,赋予了不同的主题,不变的是一脉相承的艺术感和以诚相待的贵重。
保姆间
BABYSITTING ROOM
一层平面布置图
FIRST FLOOR LAYOUT】
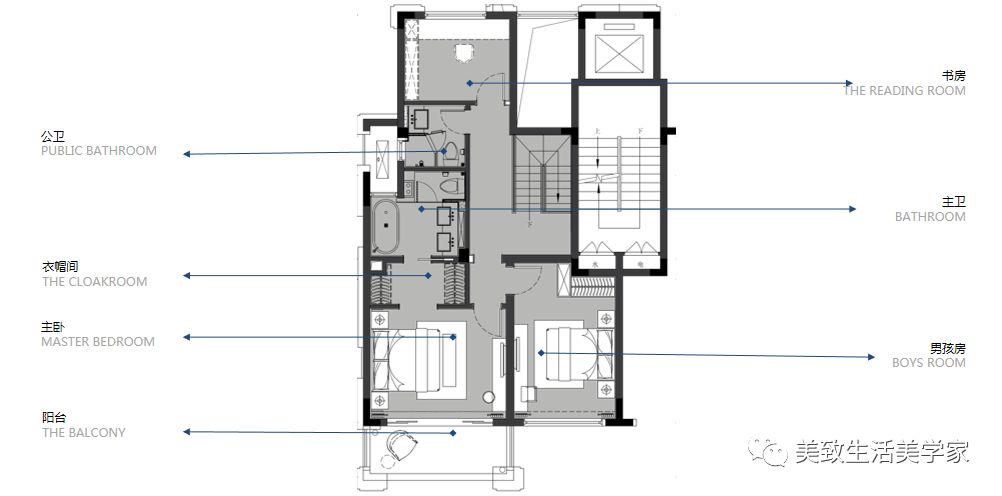
【二层平面布置图
SECOND FLOOR LAYOUT
【地下一层平面布置图
BASEMENTFLOOR LAYOUT
项目信息
项目名称:弘阳诸暨•下叠144户型样板房项目样板房
项目面积:188平方米
主案设计师:APRIL & MAY
项目地点:浙江诸暨
项目时间:2019年5月
设计机构:杭州美致家居设计有限公司
摄影师:程翔
美致家居
ABOUT US
美致家居-你的生活美学家!
以上内容皆为美致原创!
相关文案、照片及相关设计版权皆为美致所有
长按关注:美致家居
地址:杭州市钱江世纪城鸿宁路2327号丽晶国际1-3301
客服
消息
收藏
下载
最近



























































