查看完整案例


收藏

下载
九门堂丨于2014年创立,是一家集品牌设计、室内设计、建筑设计、景观园林设计、施工管理于一体的“一站式”品牌设计服务机构。多年来,九门堂已经形成了在商业空间、精品度假酒店、家装等多个设计领域的综合实践。
餐 厅 定 位
随着人们生活水平的提高,消费者对餐饮行业体验需求和审美需求的升级,我们团队将结合南宁市历史文化街区——“三街两巷”的盛业开放,引进先进的互联网餐饮管理系统,精心打造第3代湘菜品牌——“椒兰殿”湘菜餐厅。
空 间 部 分
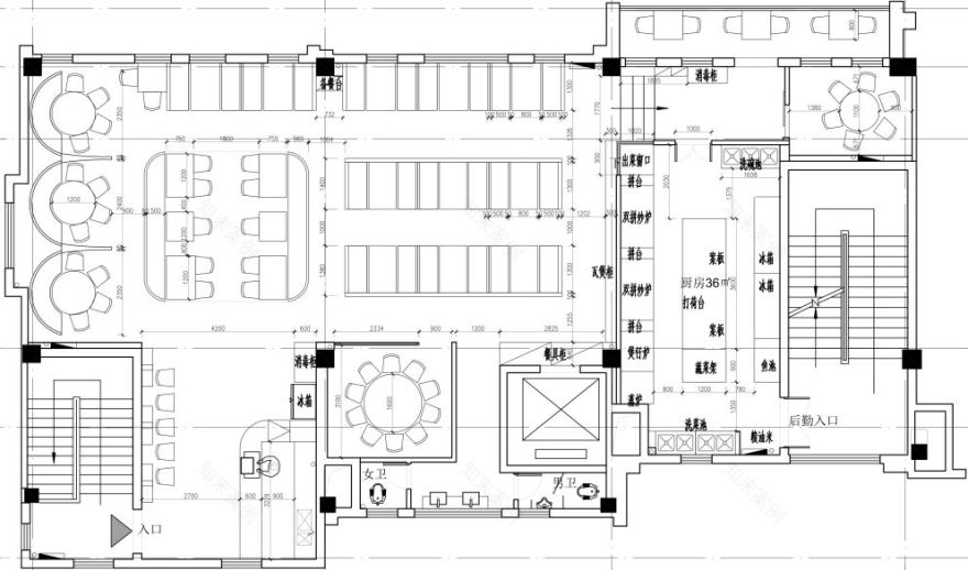
△平面图
该餐厅以年轻时尚和大众消费人群为主要客户群体
装修以古典新中式为风格
既迎合当下年轻人的审美
又不失品牌本身所秉持的“美食+情怀”的经营理念
△门头效果图
△服务台效果图
整个空间以橙色为主调,但此橙色彼橙色
这个色是根据故宫独有的历史文化的红色
加入现在国际上面流行的珊瑚红进行中和的一种颜色元素
有历史跟现代的一个桥梁的承接
△用餐区效果图
△圆桌卡座效果图
采用常规的卡座与圆桌卡座为主
扩大了流动空间面积
△卡座效果图
原顶喷黑搭配白色的阳光板
使整个空间产生一种距离感
不用担心吊顶的压力
也不会跟其他的色彩元素混乱
△卡座效果图
灯光布局令光线柔和温馨
倾洒一室浪漫
△大包厢效果图
△小包厢效果图
△走廊效果图
品牌部分
《荀子·礼论》:“刍豢稻粱,五味调香,所以养口也;
椒兰芬苾,所以养鼻也。
LOGO设计
毛笔字的表现方式,张弛有力,特殊视觉,让人印象深刻与食材的配合让人清楚明白椒兰殿的行业属性
△LOGO效果
△菜单应用效果
△餐具应用效果
△杯子应用效果
△纸巾应用效果
△布袋应用效果
△围裙应用效果
往期回顾
简约不够高级?这才是百看不厌的经典质感
中秋特辑之——懂烘焙的设计师
来一场关于咖啡的“味蕾”约会
喧嚣中的慵懒、随性才是向往的生活
在喧哗中沉淀心灵——“第五城”酒吧
姿势已摆好
就等你点啦
还想看到如此好的设计请快快关注我们吧让我们一起为你的生活打造独一无二的“亮点”项目名称丨“椒兰殿”湘菜餐厅项目地点丨南宁市“三街两巷”设计面积丨256㎡
设计内容丨餐饮空间设计
设计单位丨九门堂视觉•空间设计机构
总设计师丨肖文骞
主创设计丨廖贤乐
设计团队丨李广田、雷卫霜、邹夏
想聊的设计梦想想要的设计风格想找的设计大师这里有您九门堂地 址:广西南宁市兴宁区松柏路31号兴宁创业园一号楼五楼觉得不错点个赞哦↓↓↓
客服
消息
收藏
下载
最近

























