查看完整案例


收藏

下载
世界很大,大到人们用一辈子也无法丈量完;世界很小,在家这一方寸之地,兜兜转转即是一生。家不仅供人居住,更是心灵栖息的圣地,以其丰富的内涵传达出对生活的态度。
案例简介本案是一栋540㎡的6层别墅,除2F作为商业健身房以外,设计师通过合理规划每一层的功能布局,采用新中式、简欧、轻奢三种设计风格来满足业主家庭成员的生活习惯和需求。
一楼大厅
一楼为家庭共享空间,以新中式风格为主,采用对称式的布局方式,格调高雅,造型简朴优美,色彩浓重而成熟,强化大宅的归家第一视觉与礼序。
三楼客厅
三、四、六楼以简欧风格为主,摒弃了传统的过分奢华,但却保留了其浪漫。
三楼女孩房
女孩的世界总是充满着童话梦幻,女孩房大方高级的配色与温柔细腻的质感,使整个氛围如梦似幻,置身其中,仿佛身处童话国度,一场不愿醒来的梦境。
三楼男孩房
男孩房,深色与亮色的组合,碰撞出个性活力且极富艺术气息的氛围。
三楼老人房
老人房一贯的深沉内敛,在颜色和质感的微妙处理下,呈现出宁静致远,淡雅从容的晚年生活情境。
四楼老人房
四楼客餐厅
四楼餐厅
四楼客餐厅,简洁明快的线条,打造出典雅高贵的空间立体感。
灯光、色调的合理搭配,显得整体空间明亮大方。
五楼客厅
五楼客厅
五楼主卧
大大的落地窗,光线透过垂顺的白色纱帘,均匀地照到房间的每一个角落,沉浸其中,精致的气韵在此间静谧地生长,让内心得以片刻的安放与升华。
五楼客房
六楼客卧
本案设计之初,设计师一直在反复思考一件事情,那就是如何避开平乏无趣的审美,专注于生活的方式、仪式等本质,以设计的广度去包容业主层出不穷的想法,以设计的深度让居室主人体会到美学和功能关联所带来的便利。
精致,不只停留于生活的表面。
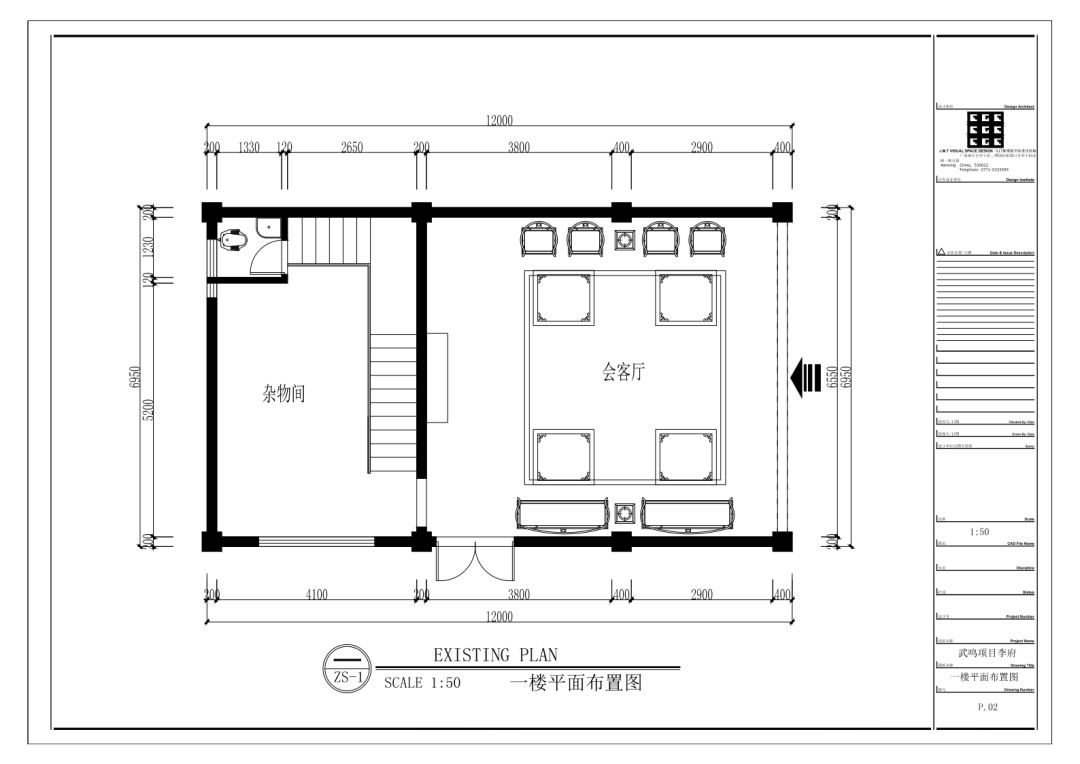
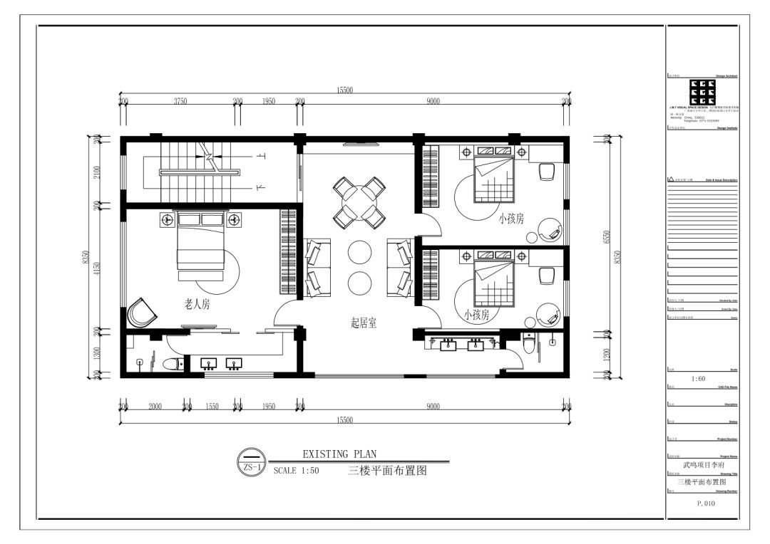
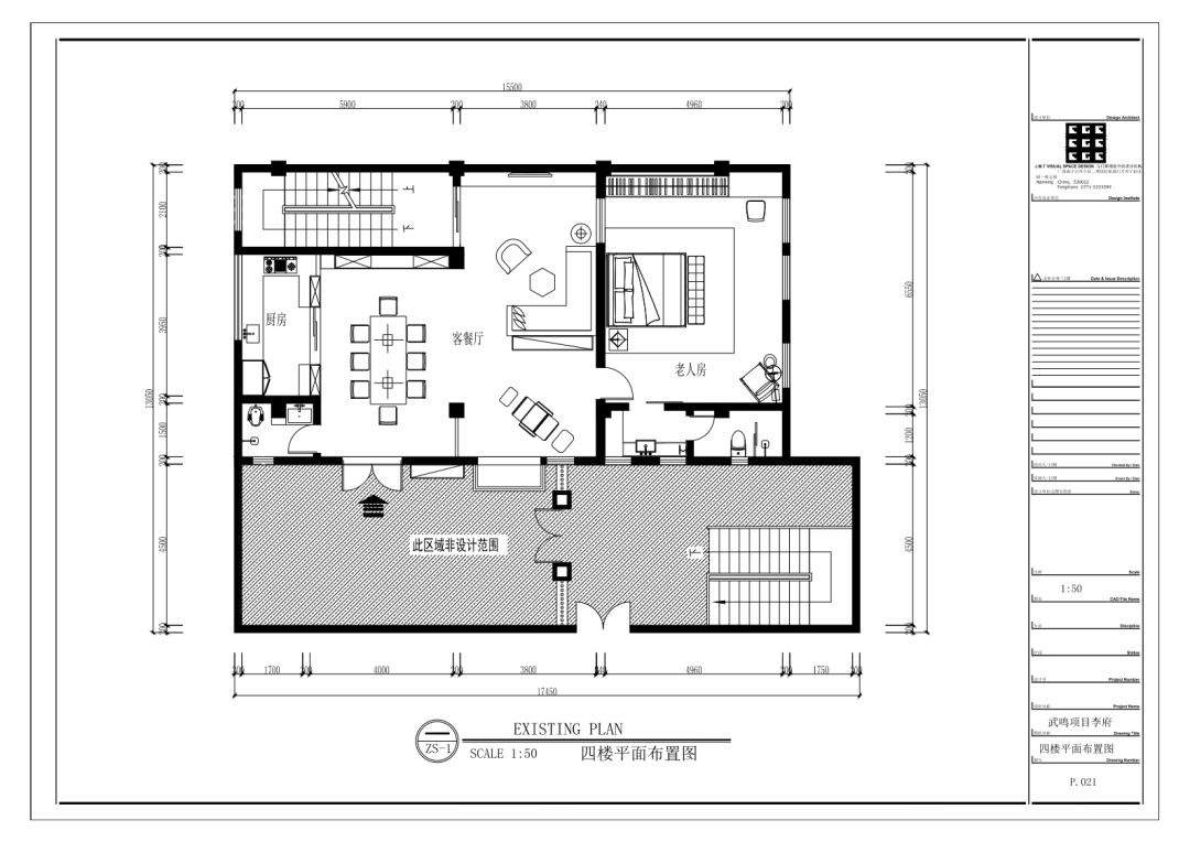
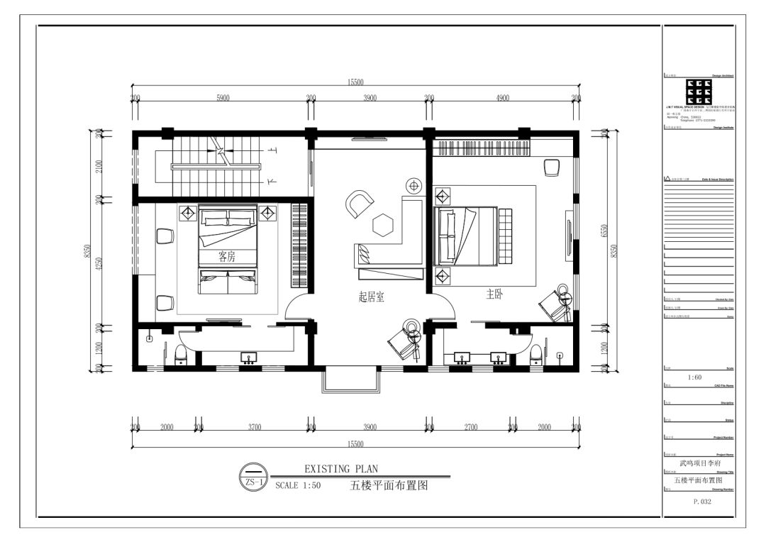
平面图
△一楼平面布置图
三楼平面布置图
四楼平面布置图
五楼平面布置图
六楼平面布置图
公司简介
九门堂视觉空间设计机构,创立于2014年,是一家具有全球视野、本土认知、技术创新与专业知识的设计机构。业务范围涉足:品牌设计、室内设计、建筑设计、景观园林设计、施工管理等多个领域。
九门堂不仅拥有资深的设计师,还拥有以80、90后为主力的设计团队,擅长从事各领域不同规模的设计,在商业设计、文创设计等板块的成绩颇为显著,已在多个国内外大奖赛中获得重要奖项和提名。
项目名称丨武鸣李总民居室内空间设计
项目地点丨广西南宁市武鸣区江滨路香山小区
设计面积丨540㎡
设计内容丨室内空间设计
设计单位丨九门堂视觉•空间设计机构
设计团队丨
总设计师:肖文骞
设计总监:梁声陈
设计部常务副总监:马啸宇
本项目首席设计师陈乙菠
本项目设计组成员:李广田、韦永源
—— 往期推荐 点击图片 ——
牛!九门堂从近两千套作品中摘得室内设计类银、铜奖
450㎡时尚简约“梦工厂”,唤醒孩子的自信与魅力!
100㎡轻奢美宅,“大道至简”,永不过时!
:“故宫红”还能这样搭配!让你体验不一样的“湘”味
2093169797
地址:广西南宁市兴宁区松柏路31号兴宁创业园1栋5楼九门堂
客服
消息
收藏
下载
最近


























