查看完整案例


收藏

下载
关于装饰的第一条规则是,你可以打破几乎所有的其他规则。——比利·布拉德温
壹如果你有一套200㎡的大平层,你将怎样设计?本案业主是一对从事营销推广的90后时尚潮人夫妇。“衣多,鞋多,玩具多;时尚,前卫,有品质”是这个家庭的标签与气质。家中常爱放置各类时尚单品。因此,设计师打破传统住宅的空间布局,将200㎡的空间设计成一室一厅结构,重塑空间功能性。
入户鞋柜采用整面镜面柜门,既满足了业主超多鞋靴的储放需求,也通过镜面反射去除了超长鞋柜可能存在的压抑感,让房间更加通透。
宽阔的公区动线流畅,白色主空间搭配暖色系家具,干净透彻又不失温情。而每一件考究的家具,都体现着房屋居住者的品味与气质。
空间整体线条简约流畅,实木鱼骨拼接地板搭配颜色鲜艳的小椅凳、储物柜,都使得整体空间腔调即复古,又时尚。
贰
大扇玻璃窗面对西厨岛台,同侧半透明设计的壁炉与室外相连。每天清晨,阳光透过阳台洒进房间,将室内外融为一体,打破固有空间的死板,让自然流入生活。
多余的空间并未被浪费,其余房间全部重新布局,改成配套衣帽间、游戏室等符合二人休闲爱好的空间。电视墙背后只占一席之地的工作空间,开放无拘束地让工作也多了一份欢愉。
青花砖,绿植被,阳台作为室内空间的延续,无论是品味精致的下午茶点,还是欣赏星空下的夜景,都是极佳的选择。
没有什么比一场好梦更让人轻松。开放无门式的卧卫设计,给予空间更多的灵活便捷,而仅仅只摆放一张床与床头柜的“留白”,也让睡眠回归纯粹。
以蓝紫色为主调的复古小花砖,给予休息区更多灵动的宁静气息。
浴室、卧室与主卫均在一个开放空间内,这除了是空间的设计,更是一种自由的生活态度的展现。
公卫终时至今日,家宅已不只是栖息之处,更是很多人自我个性展示的载体。住者塑造环境,环境也反馈于住者,偶尔打破传统住宅的空间布局,设计也需个性之“后浪”。
something wonderful is going to happen
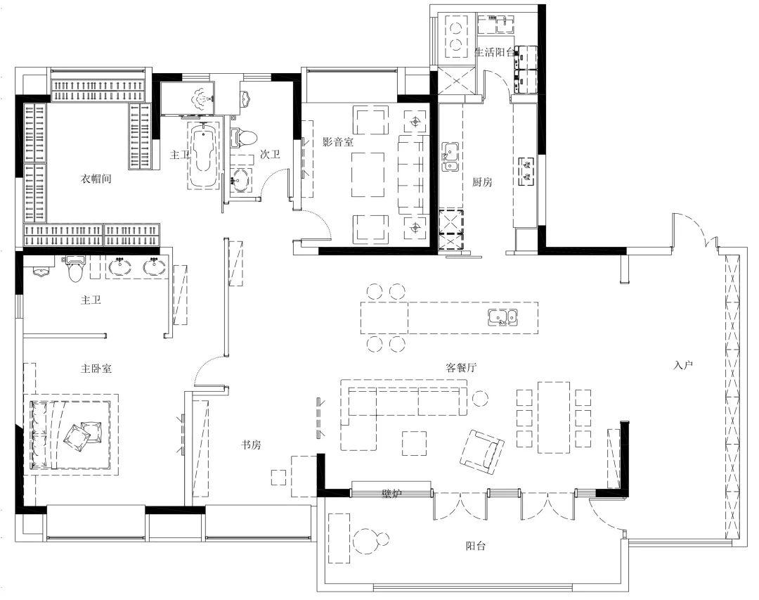
户型图
▲原始平面图
▲改造后平面图
案例资料
案例名称 | 重庆雍江御庭 · 后浪
主案设计 | 姚思萌
参与设计 | 陈浩
案例面积 | 200㎡
案例投资 | 200W
项目摄影 | 麻园、陈辰
姚思萌
重庆建筑大学
重庆Motin设计 创始人&设计总监
2020 亚太设计精英邀请赛 优秀作品
2020 她设计年度优秀空间设计
2020 40UNDER40中国(重庆)设计杰出青年
2019 木兰奖设计实战赛商业组 十佳作品
2018 亚太设计精英邀请赛 优秀作品
第四届 金瓦奖年度商业空间 优秀作品
客服
消息
收藏
下载
最近


























