查看完整案例


收藏

下载
相比逃离城市,我们更愿意构建一个舒适的家。虽然不能面朝大海,但还是希望能伴着春暖花开。
似乎事业的繁忙和生活的安静永远都是对立的,但是在人的心中,家永远是神圣的,那么每个被用心设计的家里,大概都融入了主人对远方、对生活的期待。
杨倩,室内设计师,毕业于鲁迅美术学院。
空间是一个装置的机构,每个空间都有独特的生命,他们都那样独一无二,最终不变的,是不同空间呈现出的生命力。
这是一个四口之家,其乐融融,幸福美满。男主人很疼爱他的三位“公主”,所以整个设计的基调都是以妻子和两个女儿的要求为主的。
我们考虑问题的出发点不是风格与效果,而是想要赋予这个家的温度,宛若清茶一杯,徐徐品之,里面沉淀的都是关于家人与生活的味道。
一层
▲一层空间 玄关
圆形餐台,起到了动线划分的作用,我们将餐区的功能扩大化,用一个十二座的大餐桌满足家人和朋友的聚餐交流。采光和空气流向变得十分出色,空间的舒适性得到了有效的提升。
餐边柜的设计将中央空调的出风口和回风口进行了合理的位置排布,让平时无法利用的空间有了实际的用处,实现了功能与审美的统一。
一层空间 餐厅
▲一层空间 餐厅
客厅位置与餐厅位置平行,通过门廊过渡,具有较好的协调性。对于客厅本身来说,美学的装饰体系有了更好的线性轮廓,更重要的是在功能设计上实现了一些突破,比如许多手边的电子设备有了一个适当的充电位置。
一层空间客厅主卧室以米色为主,体现了温馨的感觉。我们根据业主的生活习惯,在主卧室中,没有做妆台的设计,但是在衣柜处添加了一个多功能的区域,满足日常的生活需求,同时也可以为房间便利。
一层空间 主卧
一层空间 主卫
一层空间主卫
负一层男主人热情好客,经常邀请朋友聚会,所以在满足功能性的前提下,增加了一些生活情趣。这是一个多功能开放综合区,喝茶、观影、唱k,简约的软装陈设给空间提供多样性。
▲负一层空间 公共区域
▲负一层空间 公共区域
▲负一层空间 酒吧区
▲负一层空间盥洗室
▲负一层空间 衣帽间
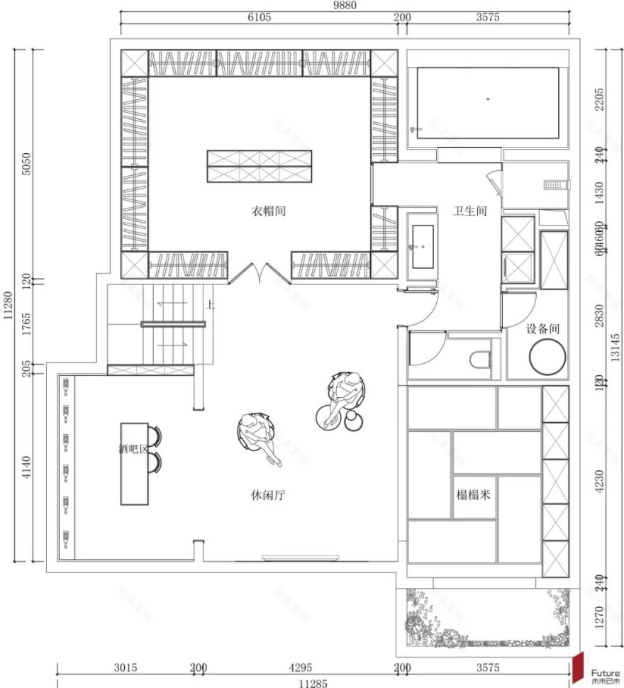
平面图
▲一层平面图
▲负一层平面图家是随意的,不需要精心策划,但家又有他的逻辑,即离不开实在的功能性,也体现在细节处的关怀,抛却凡尘的喧嚣,回到家中,享受一份安逸、一份慵懒、一份愉悦的心情。项目地址:万科四季公园项目面积:260㎡主创设计师:杨倩张学俭软装设计师:王蕴
杨倩
主創設計
師
张学俭
主創設計師
王蕴
軟裝設計師
地址:沈阳嘉里中心企业广场 B座18F
大客户经理专线
182-024-52525
客服
消息
收藏
下载
最近























