查看完整案例


收藏

下载
现今,“别墅”一词成为了高级住所的代名词,但我们对于“高级”一词的理解却很容易混淆,是面积大,层数多就是高级吗?是家具的品牌高档,用料的价格昂贵就是高级吗?还是金碧辉煌,富丽华贵就是高级吗?
而真正意义上的高级是建筑空间的布局合理、光线与结构营造出的典雅气氛,是建筑、室内、景观之间的相辅相成与呼应结合、是人与空间互动的感觉,这些都是靠设计的智慧得来的。
丁彬,中国室内建筑师,2000年毕业,从业19年。他在设计中一直寻找“艺术”与“生活”和谐的本质,在建筑空间中将“当代”与“传统”、“文化”与“艺术”的共生作为设计语言表达。让设计自然而然。
在本案设计中,丁彬老师主要对建筑空间和室内格局进行了较大的改动,争取将生活的合理性达到最大化。整个设计以空间节奏和功能为主导。丁彬老师采用了以“素”为主的设计方式,耐看,不同俗,不自媚。既追求了精神层面的寄托,又同时满足了空间功能的需求;既体现了人们所追求的慢时光,也追随了时代、科技不断发展的标准。
1素· 雅
一层空间,没有华丽的词藻、多余的装饰,尽可能的给人们提供一种素气却又安静的感觉。摆放恰当的家具、选材精准的物料,想给人们体现更多的是安逸的享受,留给人们更多的是整个空间与人的对话与互动。这种互动,能给空间中的人们带来心灵上的共鸣、身体上的共振,继而在空间中寻找生活的趣味。
▲一层平面图
一层空间门厅
一层空间客厅
一层空间客厅
一层空间客厅
▲一层空间 客厅
丁彬老师在楼梯间处做了一个特殊的设计。
他将楼梯间开一个天窗,这样就可以使楼梯间的位置有自然的采光井,当业主在上下楼的时候不会感到空间的沉闷与压抑,同时也大大的提高了空气的流动性,行走在其中也能感受到自然的味道。
让行走的每分每秒都空间完美的结合。
一层空间 楼梯间
▲一层空间 楼梯间
一层空间 餐厅
一层空间 餐厅
一层空间 水吧
一层空间 水吧
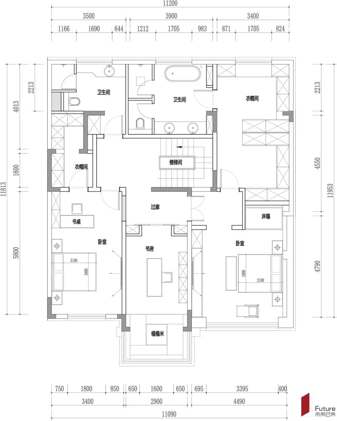
2素· 静
二、三层是居住空间,丁彬老师根据业主的生活习惯与特点,合理的划分了空间,安排了恰当的私人生活区,让空间中的动线优雅又合理,完美又舒适。
颜色的选择主要是以“素”为主的白色和灰色,让整个空间的色彩搭配达到平衡,让人身在其中,身心放空...
▲二层平面图
二层空间 主卧
二层空间 主卧
▲二层空间 主卫
二层空间 主卫
二层空间 主卫
二层空间女儿房
素色的墙壁与白色的主体完美结合,房间中伴生的“清雅”气息呼之欲出,安静同时又有生机。
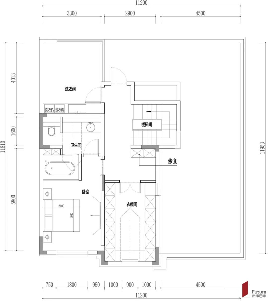
▲三层平面图
▲三层空间 卧室
▲三层空间 卫生间
▲三层空间 卫生间
3素· 悦
地下室,主要以娱乐和休闲为主。墙体刻意分割了不规则的区域,通过装饰后,形成了方正规整的空间。在空间中配以绿植来装饰墙面,使整个空间更加放松。在空间的周围打造小型的水系,与绿植墙面相得益彰,为整个地下空间带来活力,虽然人在地下,但却不输地上的风采。
开放的公共客厅与私密的影音厅形成鲜明的对比。在这里,你可以与朋友高谈阔论、嬉笑打闹;也可以独处安静的时光,泡一壶茶、读一卷书、看一部老电影、放松一下疲惫的身体。
▲地下室平面图
▲地下室空间
▲地下室空间
▲地下室空间
▲地下室空间
▲地下室空间影音室
▲地下室空间 影音室
丁彬老师认为,设计作品中打动人们的一定是空间,而不是里面的装饰;软装固然很重要、装饰也同样起着决定性的作用,但是先决条件一定是要有一个合理空间。
只有这个空间布局更好的被人接受,从空间的角度上来处理一些功能,才能让整个生活更加便利,更加舒适。
空间打破墨守陈规的格局,从而感动设计...
项目地址:汇置尚都
项目面积:400㎡
主创设计师:丁彬
丁彬
主創設計總監/中國室內建築師
地址:沈阳嘉里中心企业广场 B座18F
大客户经理专线
182-024-52525
客服
消息
收藏
下载
最近







































