查看完整案例


收藏

下载
诗人并非是不食人间烟火的代表。相反,诗人把人们带入世界,使人们更属于这个地方,进而在此定居。生活上的诗意,也因而使人生具有意义。——海德格尔
项目地址/深圳
业主是对新婚夫妇,本案注重大平层户型的舒适感与尺度感,巧妙糅合空间、文化与生活艺术,打造出一个现代时尚的轻奢空间,彰显奢华内敛的人文气度。
Living Room客厅
低饱和度色彩组合的客厅、木色运用、大理石元素的点缀,天花的奶咖感让稳重内敛的气质与精尚优雅的格调并置融合,着力展现雅致空间的艺术感染力。电视背景以夹板打底贴木饰面的方式,黑色的大理石石材内嵌电视机加以绝美的雾化壁炉让生活回归诗意沉稳,在灯光的氛围烘托下尽显雅致,犹如艺术家。
Restaurant餐厅
客餐厅超大的落地窗,将室外光线与景色引入室内,打造舒适自然的生活情境。岛台-餐厅-客厅一体,交互式客餐厅,视觉上的舒适感让业主的用餐环境更加宁和。开放式酒柜、木色的橱柜与大理石岛台形成反差,餐岛一体的餐桌在灯光下极具光泽感与质感。开放式的布局处理,让各个空间之间能够与自然呼吸,赋予空间节奏的韵律。
Master Bedroom主卧
卧室采用局部线性灯光与无主灯设计,营造舒适、温馨的睡眠氛围,整体以白色为主,融合定制皮革的床头背靠与隐藏式阅读灯点缀,通过对材质、细节的把控,进一步对空间塑造让心灵找到归属。
每天清晨的缕缕阳光缓缓地透过白纱穿入房内,唤醒新一天美好,阳光与进空间形成有趣的对话,丰富地表达了空间的语言,既有白色的浪漫又赋予诗意的场景。设计师把原本衣帽间的墙体打掉,把两堵墙用浅灰色玻璃做成柜体,让环境显得通透通明亮。将自然光线引入,维系着私密与敞开的平衡,在有限的空间内营造宽敞的视觉体验。
Children’s Room
儿童房
对于儿童房的设计,考虑到业主未来宝宝的玩耍和学习,设计师将淡雅的奶油白色调让整个空间更舒适悠然,温润的木地板则营造出安静宽敞的空间氛围。
把儿童房的收纳作为关键,设计师将1/3的空间作为层板架,2/3的空间作为无把手封闭收纳柜,这样可以把常看的书籍放在层板架,方便阅读学习取用。
原始结构/Primitive Structure
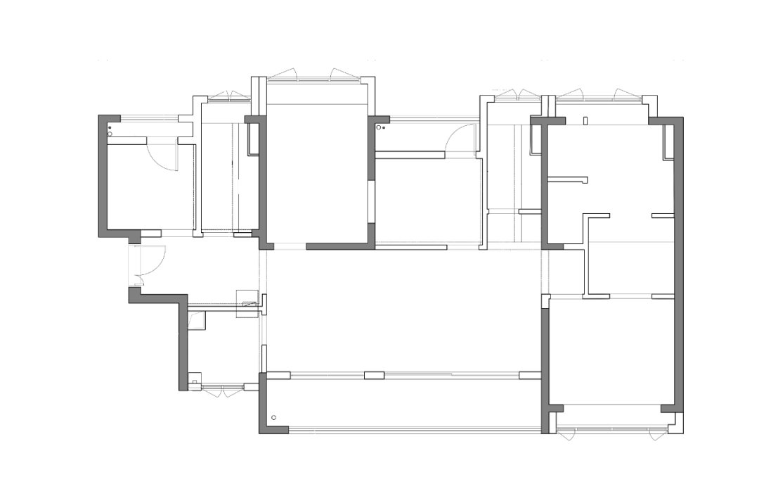
平面设计图/Floor Plan
①入户与客餐厅敞开式设计,划分客餐厨三者区域,为家庭增添更多的交流空间;
②中西厨设计,打造开放式西厨,封闭式中厨,便于日常生活操作;
③打造主卧衣帽间,引光入室,动线合理。
『 设计团队 』
『 专注 · 深圳高端私宅设计
· 商业空间 · 软装陈设
▼往期推送
(点击图片即可阅读)
一度经纬2021招聘|以梦为马,不负韶华
鲸丨三原色彩碰撞,自由舒适的办公空间设计
微微|旧房重塑,慵懒假日的暖白栖息地
一度经纬
One Focus Design
专注深圳高端室内设计
客服
消息
收藏
下载
最近





























