查看完整案例


收藏

下载
生活是朵娇美的花,爱就是花蜜。——维克多·雨果
项目地址/深圳前海CEO公馆
项目面积/456 m²
空间形成一半是现代高级一半是动人浪漫
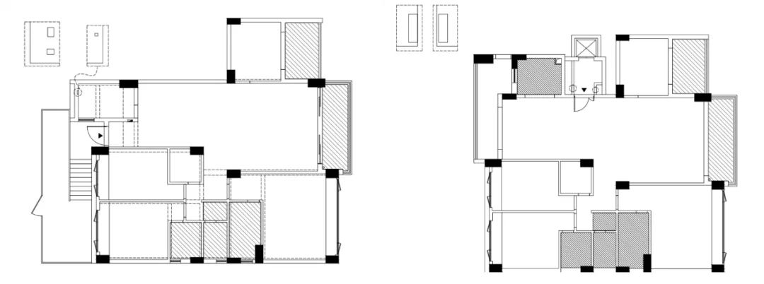
△一层与二层
原始结构图
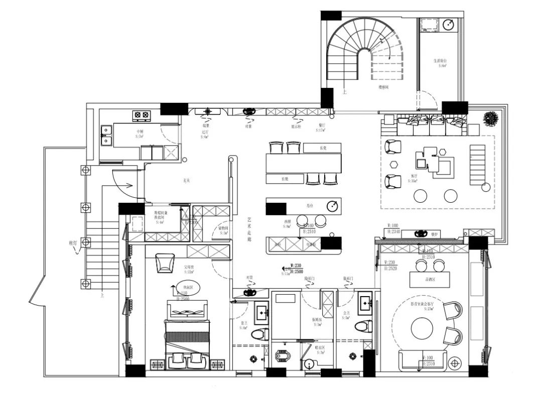
△一层平面方案图
△二层平面方案图
本案业主夫妻俩均属90后,向往现代法式。设计师对于本案在不破坏传统元素的情况下更多融合现代元素,使得本身在潮流的趋势下则更富有时代感。造型上不繁琐刻意,由内而外张弛有度,大空间的留白却不失高雅整洁,任时光流转,历久弥新。
Living Room
一层客厅
由于原始的一层光线偏暗,客厅大面积的留白,摒弃传统的法式繁复和甜腻的色泽,大胆利用造型线条从墙面剖开切入深色的大理石的方式。利用淡雅的空间色调提亮空间,搭配现代感的陈设软装,中西碰撞的结合打造出一个法式现代主义的空间格调。
墙面局部采用白色弧形的长城板,线性的重叠使空间更加开阔,细腻的肌理使材质也凸显高级
。而门洞的设计则
不像传统的法式会加入
罗马柱等元素,而是推陈出新,把门洞做成偏现代风格的圆弧形,偏向现代的
灯具
与传统式壁炉的结合,加入暗门的形式,是空间在和谐统一的基础上更具有视觉层次感,增添了些许生机。
Restaurant
一层餐厅
餐厅沿用了客厅的材质,组成了一个更加宽敞的空间。以自然木色长城板、浅色的线条和纹理性的大理石材质,局部白色的玻璃砖作为点缀,使得弧形别致的岛台与空间既孤立又有和谐感。餐椅则采用香槟金的底座和丝绒的坐垫,在整体空间内凸显出非一般的奢华感。
Video Room
一层影音室
影音室与外面的空间则是截然不同的两个色调,深色与浅色系在空间内形成强烈的对比。由于业主喜欢喝酒,在影音室内设置了酒柜、钢琴,吧台与壁炉的结合。想象一下,居住者在此环境下品酒,在熊熊的火光中,浪漫又有情调。天花运用了发射性的LED灯,后现代元素的沙发搭配,当投影布在大面积的灰色的墙体上往下沉,沉浸式影院油然而生。
Stairway楼梯
楼梯采用弧型的楼梯设计,与整体统一的大理石材质,暗槽式的灯光营造出一种悬浮感与奢华。
Master Bedroom
二楼主卧
主卧延续了客厅的设计,以线板剖断嵌入浅色大理石的形式。与之不同的是,设计师采用浅色调的大理石来营造一种干净的休憩环境。软装陈设精致,绽放出居室旖旎浪漫的情绪。
衣帽间与外部区域采用的是两种颜色,衣帽间采用浅灰色调分割主卧跟衣帽间的空间区域,设计师利用平开门的设计,让居住者有种步入式的仪式感。
『 设计团队 』
『 专注 · 深圳高端私宅设计』
▼往期推送
(点击图片即可阅读)
一度经纬2021招聘|以梦为马,不负韶华
怀石丨料理是空间的艺术,匠心塑造美味意境
清晖丨月圆人团圆,团团圆圆便是家
一度经纬
One Focus Design
专注深圳高端室内设计
客服
消息
收藏
下载
最近

















































