查看完整案例


收藏

下载
户庭无尘杂虚室有余闲空间形成将艺术成为生活的内容有感而发地展现因悟而为地表达
△一层平面图
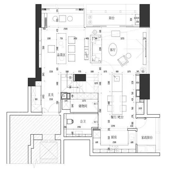
二层平面图
本案业主是一位95后,喜欢简洁大方的空间。设计师通过对现代简约的理解,人性化的设计,从色彩的变化、石材的选择、摆设与软装陈列,呈现“繁而不杂”的生活美学。
Living Room
一层客厅
客厅光线充足,整体安静而美好。
采用白色为基调,展现出简洁低调的品味,别致的沙发在整体空间中显得时尚优雅。
为空间营造简约而明亮的层次,打造出现代极简的品质空间。
悬浮挑空的电视背景墙面,以简约的白色大理石为装饰加以胡桃木展示柜赋予空间丰富的层次变化,表现出设计的细腻感。而在客厅上方做了一个圆弧形的转折处理,这不仅有利于平衡空间的气质,更展现了设计与生活和谐相融。
Restaurant餐厅
餐厅的墙面运用劳伦黑金岩板与胡桃木饰面做了酒柜,简约时尚。独立岛台结构的厨房设计,既做到了中西厨分离,也为家人一起备餐,早餐提供了条件,促进了空间中的互容性与亲子间的互动性。开放式餐厅地面铺设质感的大理石地面,没有过多复杂的色彩搭配,却碰撞出现代的美感。
Teahouse茶室
"户庭无尘杂,虚室有余闲"。材料的选用上特别注重自然质感,线条清晰布置优雅。木格栅在灯光的映衬下显得简洁淡雅,形成独特的家居品味,营造闲适写意的家居氛围。
Master Bedroom主卧
卧室以原木色为主色调,营造温馨舒适的休憩环境。床的位置做了抬高处理,衣柜利用透视黑玻璃,在暖和的灯光中凸显了精致优雅的的极简风格。
书房与卧室用隔断墙划分,靠窗的区域是书房的最佳选择。落地窗百叶窗的设计,将可视化扩到最大化,利用自然光线,不仅给予明亮的办公环境,更凸显出室内的开阔感。书房空间设计简约,在此休闲或办公都非常地舒适。
『 设计团队 』
『专注 · 深圳高端私宅设计』
▼往期推送
(点击图片即可阅读)
一度经纬2021招聘|以梦为马,不负韶华
香榭丨品咖啡味道,解开品质生活的方程式
漫妮丨韩式治愈系的茶饮店,踏上浪漫解忧之旅
一度经纬
One Focus Design
专注深圳高端室内设计
客服
消息
收藏
下载
最近





























