查看完整案例


收藏

下载

翻译
Architects:Linehouse
Area :380 m²
Year :2021
Photographs :Jonathan Leijonhufvud
Lighting Design :Studio Illumine
Creative Direction And Art Curation : Louis Li
Design Team : Alex Mok, Cherngyu Chen, Yeling Guo, Rongli Chen, Mia Zhou, Leah Lin
Commissioned Artists : Olivia Steele, Naoko Ito, Rowan Corkill, Debbie Lawson
Levitating Cake Display : March Studio
Client : Black Star Pastry
Artwork : UAP
Branding Design : Studio Ongarato / Noritake
City : Shanghai
Country : China
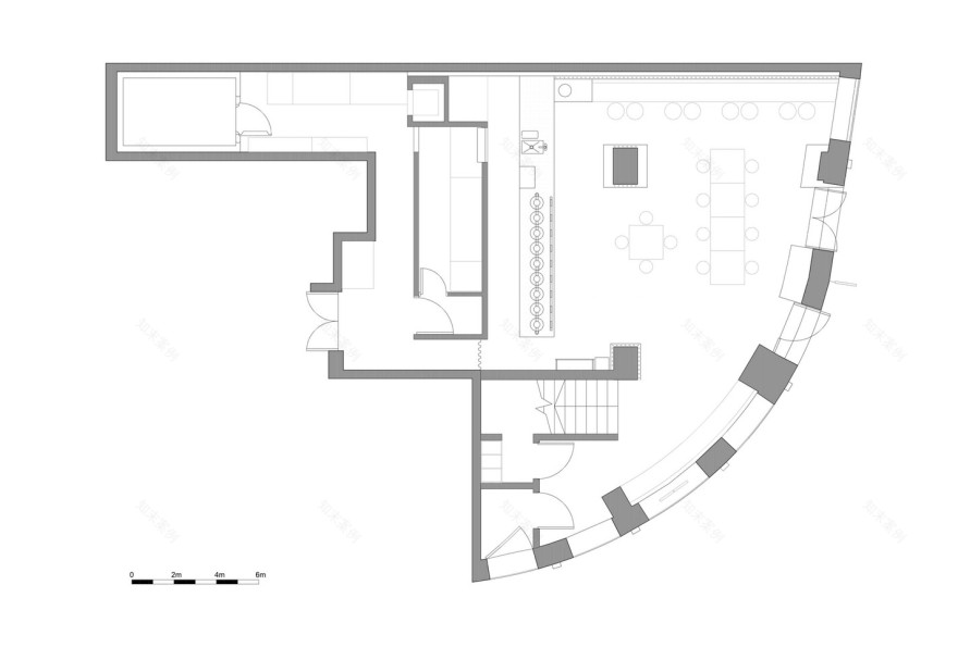
Linehouse worked in collaboration with Louis Li, principal and creative director of Black Star Pastry, to convert a red-brick old villa on Yuyuan Road, Shanghai into Black Star Pastry’s first flagship store in China. Conceived as two venues over two floors, the ground floor operates as Black Star Pastry’s cake and coffee retail space, while the second floor reveals a new dining space for the brand - Black Star Gallery. The combination of the two spaces creates a futuristic retail complex that encompasses dining, design, art, and lifestyle.
Black Star Pastry was founded in Sydney in 2008 and is the creator of the Strawberry Watermelon Cake. According to New York Times, it is the world’s most Instagrammed cake. – The ground floor pastry store is themed around the narrative Interstellar Travel, the iconic maglev display at the center features nine revolving and levitating space capsules, displaying 9 cakes exclusively launched in Shanghai. It is an exploration of gravity vs weightlessness. Stainless-steel shelves holding thousands of meteorites, ascend, bend and turn towards the ceiling creating the illusion of rocks transfixed in space. The phrase ‘we are all just stardust’ can be found lining the edges of the communal tables - each letter seemingly dripping off the edge of the table following gravity, marking the transition from the concrete to the abstract. Elsewhere, retail areas are spread throughout the ground floor, stocked with coffee beans and apparel.
The first flagship store outside of Australia, it features Black Star Pastry’s new branding, with illustrations by one of the world’s most popular illustrator, Noritake. Accompanied by black stars, the boy and hedgehog characters are connected to the Black Star name and narrative.
The ground floor stirs up the incredible sensation of being aboard a spaceship, transporting you to a parallel universe upstairs. A new staircase clad in roughcast concrete terrazzo transports guests to the Black Star Gallery; an exhibition-style dining space-themed meta habitat – featuring artworks by four emerging international artists. Rowan Corkill, Olivia Steele, Debbie Lawson, and Naoko Ito created four site-specific works. The collection of artworks together creates a fabled habitat. A root word with Greek origins, ‘Meta’ means “after” or “beyond”. Here, ordinary and familiar objects related to human civilization are transformed by the distortion of time and space into metamorphic states. The art collection depicts roaming deer, trapped tree branches, glowing water streams, and bodies covered in withered leaves. Together it creates a fabled habitat that is sinister yet fantastical - a rich and pure landscape where the unusual and the unexpected are commonplace.
The gallery is a tearoom in the afternoon and a cocktail lounge by night. The ceiling is lined in a metal grid. The floor is a rough concrete cast terrazzo tile, giving the space a hint of wildness and creating a museum-like mood for the art.
A private room named There There, featuring an intimate bar wrapped in acid-etched blue metal, is enclosed with a deep blue velvet curtain. A black timber floor folds up onto the walls sits in contrast against the exposed concrete of the existing site. A stainless-steel curved backdrop holds the wines on display.
▼项目更多图片
客服
消息
收藏
下载
最近




























