查看完整案例


收藏

下载

翻译
Interior Designers:DAGA Architects
Area :58 m²
Year :2020
Photographs :Weiqi Jin
Architect In Charge : Jianghai Shen
Design Team : Yu Liu, Yijun Zeng, Shaoyi Li, Xiaoyu Yu, Yuze Gao
City : Beijing
Country : China
Disappeared memoryThe hutong in Beijing is not only a lifestyle but also the memory of many people's childhood. With the process of modernization and urbanization, many people have moved out of the hutong, but the feelings of hutong life remain in one’s memory forever. Time has left the mark on buildings, old houses, rotten pillars, and overgrown yards. Hutong's lifestyle has been "passively" disappeared in the process of urban development. This kind of passivity leads to the disorder of people's memory, as if childhood memories are still yesterday, but today they are already living in modern buildings, and the estrangement between people and buildings is increasing. How to reappear this passive concealment, return history and beautiful memories, and combine the updated architecture with the natural environment to produce a dialogue between history and the present? it is a problem that we have been trying to explore at the beginning of the renovation of this hutong house.
Renovation is not the "maintenance" and "reproduction" of the old buildings, but to superimpose a new lifestyle with the old history and create a new contrast and integration. The whole project has only 14 days of construction time, two weeks of time condensed the hard work of many people, the design is not only on paper, landing construction, is often more challenge than the design itself.
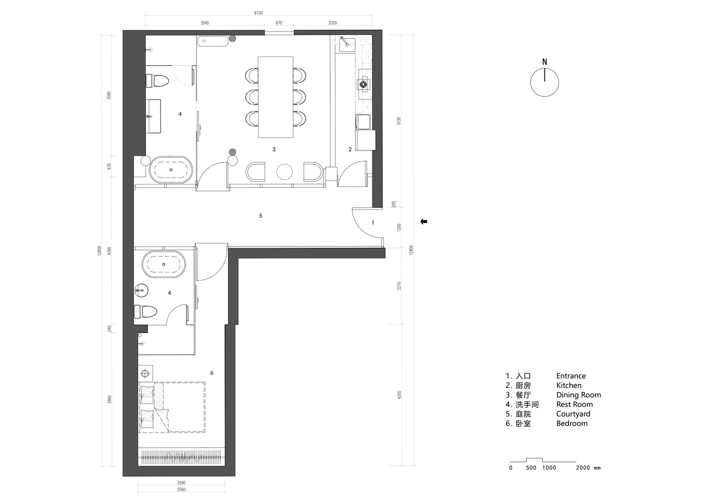
Reappear and disappear againThis small courtyard is the house where the owner lived with her grandparents when she was a child. Due to years of wandering, the house has been dilapidated, and all kinds of childhood memories have gone with it. Now she wants to move back to hutong. But the current situation of the house is no longer suitable for living. The purpose of this renovation is to create a living space suitable for the modern lifestyle for the client, and to awaken the life marks of those hutongs that have been disappeared.
Mirror and kaleidoscopeMirror glass is used on the ground and walls of the yard. The unique reflectivity of the material allows the surrounding hutongs, trees, and sky to be reflected on the ground of the yard, which brings more possibilities to space. This kind of interaction between virtual and reality is more prominent. People in the scene, people also in the mirror, in the layered reflection and transparent contrast, give people a sense of space experience like a dream.
The natural environment of specular reflection is changing all the time, and the combination with the mirror forms a kind of effect similar to "kaleidoscope". The English name KALEIDOSCOPE is a collection of Greek words such as KALOS (beautiful), EIDOS (shape), and SCOPE (watch). In fact, it also summarizes several major features of the kaleidoscope.
With the continuous changes of reflection and the surrounding environment, the mirrored courtyard shows a rapidly changing beauty, each moment is unique, just like time, cannot be recorded but can only be felt. The "invisible" state reflected by the "tangible" in the courtyard also makes the viewer and the environment, the environment and architecture, architecture, and people all have a kind of eye-to-eye relationship, which hides the boundary of the space. it also hides the sense of distance between people and space.
ReflectionThe small courtyard is only about 12 planes, showing a long and narrow shape. the glass mirrors of the ground and walls enlarge the area of the courtyard visually. When the owner steps into the door, she will be surrounded by the perspective effect of specular reflection, which increases the permeability of the space and gives people double landscape experience.
Invisible courtyardThe design of the mirror gives the building an interesting relationship with its surroundings: the mirrored ground reflects the surrounding environment, and the building is surrounded by trees and sky as if it disappears in the environment. The owner can take a glimpse of the changes in the surrounding environment in the room, and the ground turns into a huge picture, reflecting and changes in nature. At the same time, the mirror also blurs the boundaries of internal and external, blurring the boundary between virtual and real.
The scene flowing in the mirror made the yard move, refreshing people's hearts with invisible poetry. People's sight seems to be lost in the unreachable landscape, and the scenery reflected in the mirror is close at hand.
Transparent spaceThe transformation process of hutong residence is a kind of integration of modern lifestyle and traditional space. In the transformation, the wooden structure which has been in disrepair has been strengthened, and the facade has been changed into the form of glass curtain wall. The transparent curtain wall adds daylighting to the interior space, allowing the line of sight to penetrate each other on both sides of the courtyard, creating an extroverted and introverted courtyard space.
An exclusive bathroom is arranged on the outside of the owner's bedroom to meet the needs of the owner to use the bathroom alone. The transparent glass curtain wall allows light to pass through the bathroom to reach the interior of the bedroom, improving the lighting environment. The landscape in the yard is also introduced into the interior, enriching the sense of the experience of space.
The bedroom area uses the simple design language, uses the black and white colors, lets the space appear simple and calm, forms the contrast with the outside transparent smart space experience, creates a kind of more quiet feeling to the bedroom.
▼项目更多图片
客服
消息
收藏
下载
最近
































