查看完整案例


收藏

下载

翻译
Interior Designers:DAGA Architects
Area :3494 m²
Year :2019
Architect In Charge : Jianghai Shen
Design Team : Xiaofei Liu, Aili Yin, Yijun Zeng, Yihan Wang, Kai Chen
City : Beijing
Country : China
Follow the natureThe project is located at No. 6 Nanyang Hutong, Dongcheng District, Beijing, which belongs to the architectural style protection area of Dongcheng District. Commissioned by 5Lmeet, DAGA Architects transformed the original theater into a multi-functional complex space in Beijing, mainly for theater performances, coffee leisure, offices, workshops, and apartments. Retain the traces left by the original artistic atmosphere and historical precipitation, inject new energy into the space, collage the combination of the new and the old, and then create the brilliance of the space and recreate the artistic nature of the old theatre.
The façade of the building uses grey bricks to extend the quaint temperament of the entire hutong. The main entrance uses a soft arc shape to form an entrance waiting area with a sense of depth. In order to highlight the arc of the entrance, we used a new material, glass bricks, which added a few transparent colors to the original grey bricks, which can light up the dim hutong at night.
Passing through the entrance hall to enter the lobby, the corridor adjacent to the lobby coffee area is divided by four successively decreasing wood veneer sets, inspired by the principle of "small hole imaging" in the drama. In the corridor, pedestrians will feel a different visual atmosphere every step they approach. Retaining the original rough concrete columns and combining with new terrazzo floor tiles, terrazzo wall skirts, wall art painting, and golden metal shutters make the entire corridor full of story. We extended the atmosphere of the original theater and allowed people to experience the alternation of the times and the interesting space of the theater.
Natural growthBefore the renovation, Nanyang Theater was already in a rough state. Except for the performance hall, almost all the spaces were rough cement columns and peeling walls. When we entered the site, the destruction of the building was shining in the sun, and the changes of light and shadow unexpectedly eliminated the original sense of frustration and gave people a rough sense of beauty. Perhaps this is a kind of self-"natural growth" of space and the new and the old are not the criterion of "beauty" and "ugliness". Therefore, in the renovation, we deliberately retained some rough parts of the building, let it show the rugged charm, let the sense of history be exposed, enhance the sense of the strength of the building space structure, and make the space atmosphere more dramatic conflict.
The building has four floors, and the staircase is the most important vertical traffic in the building. The staircase wall half retains the original red brick material, half uses the art paint material, half is history and half is new. The staircase is like a dream space that can travel through time and space. The stair steps continue the original terrazzo floor with embedded acrylic light strips, running through the entire four-story building space, forming an area full of history.
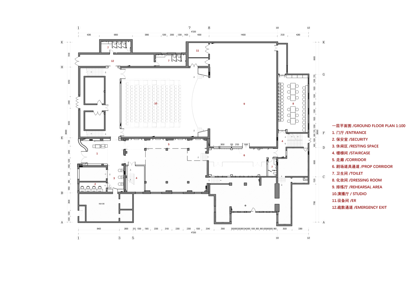
The collision of historyThe functions of the first floor of the building are reception, theater, coffee leisure, dressing room. Stepping through the entrance door, you will come to a reception lobby and public space full of historical nostalgia. The original column is exposed, and the ground is contrasted with terrazzo and cement. In a part of the space, the old theater is retained and the old objects are reused, which further reflects the inheritance and connection between the new and old materials.
In addition to the unique features of the building itself, we also found another feature at the site, that is, all kinds of old furniture and objects are passed down from the theater from the theatre. Wooden boxes for props, big drums for singing and dancing, red seats in the theater, and traditional red velvet curtains take us back to that time at once. Every object is like a "key" to open a space-time tunnel, so these objects and elements are specially preserved in the design so that people who come here can recall the good old days.
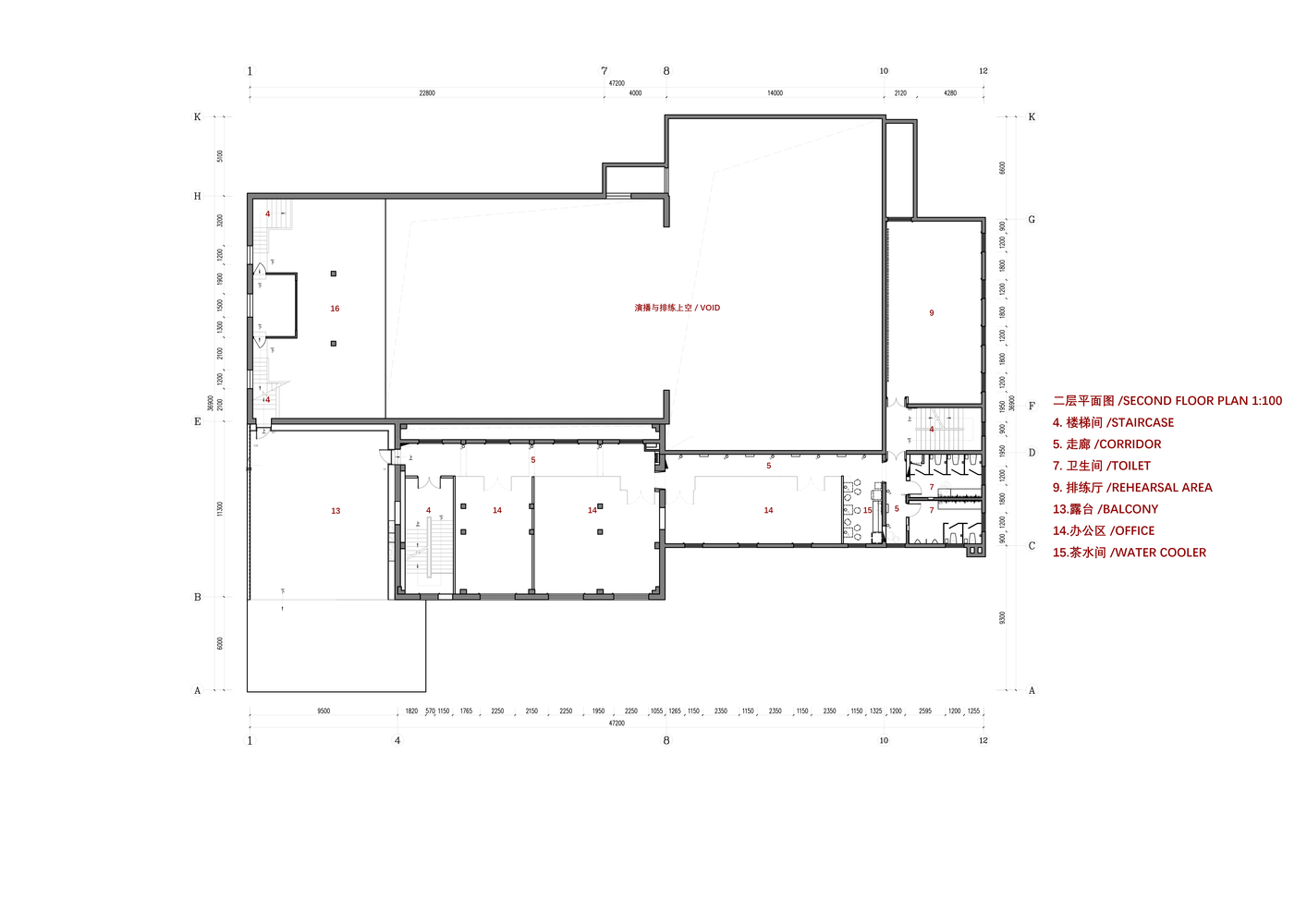
The second and third floors of 5Lmeet are mainly co-working spaces. The glass partitions here abandon the cold black metal frame. We use the bright malachite green. One is to continue the interior design tradition skills- half green- in the old days. Second, this can make the entire working space lighter and brighter. The arched metal shape is also one of the iconic symbols of the traditional theater. We used this arched language in the design of the bar area and equipped the wall with golden wall lamps, making the second and third floors not only modern but also old.
The fourth floor of 5Lmeet is mainly composed of apartments. In a space like 5Lmeet, it can meet people's needs for work, leisure, living, and entertainment. To provide tenants with more diversified choices, we designed two kinds of guest rooms. In addition to the difference in style and color, the combination of materials and soft furnishings is also different.
The apartment with black, white, and gray as the main color, the entrance, bathroom, and bedroom area form two independent color blocks of gray and black, which are simple and capable. The bedroom uses cement wall paint with dramatic furniture to create an open and hierarchical environment.
In the wood color apartment, the background wall of the bedroom adopts the combination of walnut wood panel, taking into account the function of the headboard at the same time. The combination of distressed metal wall lamps and retro switch panels makes the details of the space more exquisite. The open use of the bathroom and cloakroom is comfortable and flexible so that tenants can experience the theater elements contained in the space in detail.
The renovation of Nanyang Theater is a project that we put in a lot of hard work, not only its unique historical background but also because the renovated building will also form a new history that belongs to it, which will leave a precious memory for contemporary people. Renovation and renewal projects often involve a lot more pressure than any new-build projects. We turn a new page for the space to be renovated, and we are careful to maintain and preserve its existence.
▼项目更多图片
客服
消息
收藏
下载
最近






























