查看完整案例


收藏

下载

翻译
Interior Designers:Office AIO
Area :30 m²
Year :2019
Photographs :Yujie Liu
Designer : Tim Kwan
Graphic Designer : Cheese & Crackers
Construction : Wan Hong GANG
Client : Monica Wang | Basic Coffee
City : Beijing
Country : China
Occupying a 30sqm corner of a restored historic building, Basic Coffee is a key tenant of a co-working hub with a goal to activate the newly gentrified commercial zone of XianYuKou, Beijing, through providing quality artisan coffee beverages to its neighbours and visiting tourists.
Resonating with the brand’s belief in: “good coffee is norm”, Office AIO challenges to spin the impression of a generic cafe from the conventional “making of” to “the enjoyment of” coffee. This is achieved by a spatial arrangement that inverts the relationship from one that features the fanciest of tools and showmanship of baristas, to one aimed at capturing something that is much less tangible - one's senses.
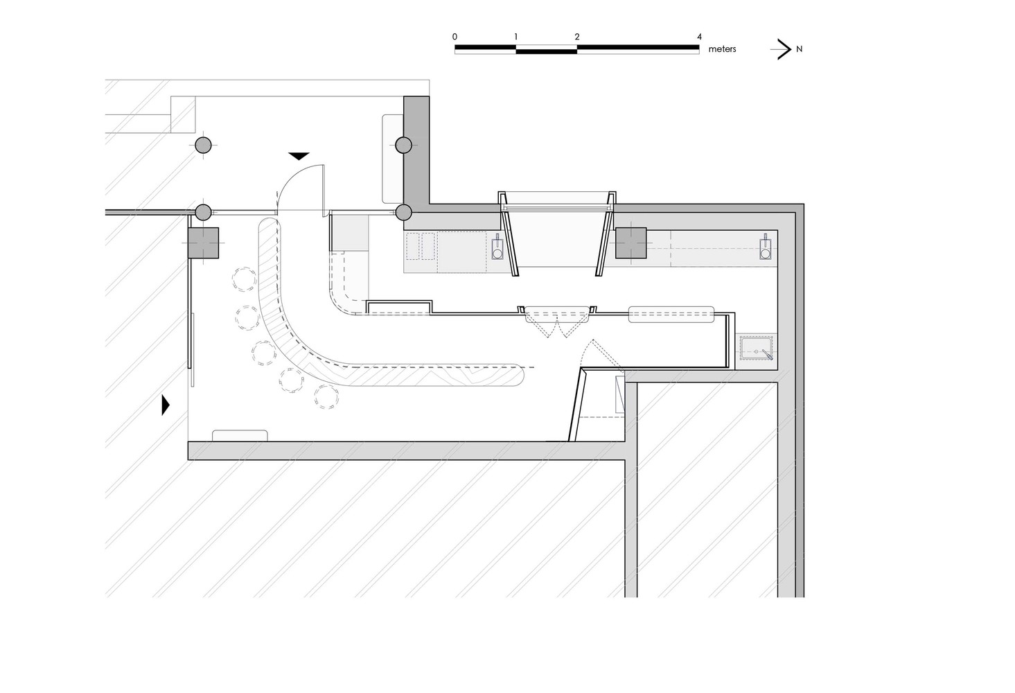
An unconventional spatial layout for an unexpected cafe experience The design focuses on establishing a series of “framed views” into the café, by orchestrating a play of light and obscurity.
This sense of mystery and curiosity is made possible by a concentric spatial organisation, originated from a concealed coffee-making area, wrapped by a ‘veiled’ entry gallery and a curved seating area on the outermost layer.
The journey begins with entering into a thin slice of volume enveloped by a suspended aluminium perforated screen above the bar bench, revealing a partial view of the seating area. Coffee order takes place at the junction between entry gallery and the large window facing the street, where the barista is strategically positioned to serve both dine-in and takeaway customers, sculpted as an exaggerated one-point perspective scene. A fissure is created adjacent to an illuminating wall, dramatising the display of pour-over coffee preparation.
Re-discover coffee drinking through orchestrated framed viewTo craft the passage, Office AIO designs with pastel brand colour, the minimal but profound design language as well as a playful and unexpected spatial journey. These elements yield an experience that allows the patrons to experience the space through observing a series of orchestrated movements, experience coffee-drinking through focusing their senses on sounds, olfaction and flavours.
Like a live ad, these “framed views” expose different motions, “performed” by all parties in the cafe. The suggestiveness in partially concealed acts of indulging in coffee, muffled chatters, and sound and smells of coffee-making, arouse one’s curiosity and appetite. As a result, these subtly evocative stimulus underscore Basic Coffee's value, coffee made to savour as it is and enjoyed intimately in a delicate 30sqm of space.
▼项目更多图片
客服
消息
收藏
下载
最近


















