查看完整案例


收藏

下载
©Wen Studio
这家新店展现了 OFFICE AIO 如何在不影响清晰度的情况下丰富品牌特性、灵活地扩展思维,使一个年轻的品牌在为员工和客户提供服务的过程中变得更有深度和体量。
感谢 OFFICE AIO
一个热衷于研究美食与专注服务的餐饮品牌,是否应该坚守单一的空间形象呢?连锁餐饮品牌通常会选择将一个品牌空间形象,贯彻至所有的店铺,进而达到所谓的统一性和产生记忆点。以重庆小面驰名北京的胖妹面庄并不这么认为。她在太古里的新分店,是其作为一位充满激情的餐饮从业者的表态。新店希望能延续开放与俐落的空间感,但却不能是一个“复制品”,胖妹面庄再次邀请 OFFICE AIO 为她进行一套完整的设计。这次的合作并不寻求将香饵胡同店的成果适应于新的场地,而是在其概念上进行拓展,创造出一个续集。OFFICE AIO 仍然致力于体现重庆具多层次垂直性的特异城市景观。采用了新的设计策略,巧妙地创造了一个穿插于未来网络时代互联性与上世纪重感知的环境。
▲空间概览
©Wen Studio
网络时代互联性
在厨房团队隔出他们需要的操作空间后,OFFICE AIO 在剩余的长方形空间里战略性地竖起了几根立柱。受重庆密集的楼宇启发,设计团队挑选了数种不同尺寸和样式的瓷砖,分别呈现在这些瘦高柱子上,甚至不听使唤地蔓延到地面。
▲轴测分解
©OFFICE AIO
即使柱子并不支撑空间的天地墙,但却是一组具关键性的新结构体系。为空间提供照明的 LED 灯管并不悬挂于天花,而是搭配为此项目特别研发定制的铝制支架,从柱子的侧面延伸出,并忙碌地穿梭在空中。这些灯管随着用餐时间的递进而产生色温与颜色组合上的变化,与瓷砖和混凝土地面一同承载渗透在未来城市中发散的能量。
▲置入空间的柱子结构体系
©Wen Studio
▲空间配置:灯光、瓷砖、混凝土地面
©Wen Studio
这些柱子也在无意间将空间中央的桌面托起,让 2 片 5 米的半透明玻璃纤维整体桌面“浮”在空中;铝制抽屉轻盈地吸附在桌面下方,让食客们能自由取用餐具,更增加了餐厅的运作效率。覆盖墙面的渐变玻璃,再次将雾都沉重的空气感带进用餐空间内;重复了城市迷幻的影像、模糊了人们的影像。
▲座位区
©Wen Studio
▲半透明玻璃纤维整体桌面“浮”在空中
©Wen Studio
▲长桌细部
©Wen Studio
新的工作流程
胖妹面庄从 2019 年的整体品牌形象重建后不断地演化,食客们对他们研发的甜品系列:胖妹拾糖,也表达极强的认可。为了让甜品的形象保持一定的独立性,在与商场公共空间的界面上,开辟了一个小窗口,纯粹提供甜品与饮料的贩售。覆盖店面的定制气垫,虽没有卢齐欧·封塔纳(Lucio Fontana)这么勇敢地划破物质与空间之间的限制,但却同样地希望能突破平坦硬挺的墙面形象,增加具可塑性的维度。在这样狭窄的用餐空间内,尤其需要优化服务流程与保持空间的整洁感,OFFICE AIO 利用了气垫与不锈钢脚手架的组合,于厨房与食客之间,划分出一层“中间地带”。将所有储物柜和服务台面转向并藏入这些凹陷区,使员工可以不被进出用餐区的顾客干扰工作,同时保持穿透空间的视线,维持服务警觉性。
▲空间保持整洁感
©Wen Studio
▲视线穿透
©Wen Studio
这家新店展现了 OFFICE AIO 如何在不影响清晰度的情况下丰富品牌特性、灵活地扩展思维,使一个年轻的品牌在为员工和客户提供服务的过程中变得更有深度和体量。
▲家具细部
©Wen Studio
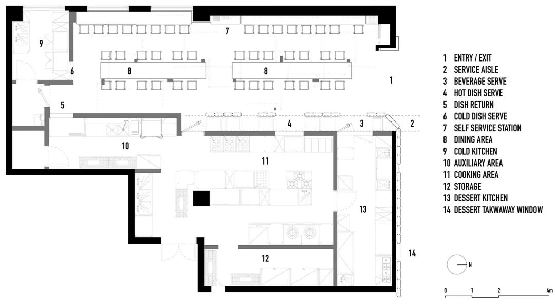
项目图纸
▲平面图
©OFFICE AIO
Client: 胖妹面庄 Chubby Girl Noodle Shop
Location: 中国北京 Beijing, China
Area: 151sqm (includes 75sqm of kitchen)
Commission: 空间设计 Interior Design
Principal: Tim Kwan
Team: 赵雪、杨霄、解估渔、Isabelle Sun
Appointment: 2021
Completion: 2022
Photos: Wen Studio
Lighting Design: 乔燕莎
Construction: 北京圆点建筑工程有限公司
Graphic Design: Meat Studio
小号
小号
客服
消息
收藏
下载
最近

















