查看完整案例


收藏

下载

翻译
Interior Designers:PaM Design Office
Area :319 m²
Year :2020
Photographs :Mingxi Fan, Duoduo Mi
Architect In Charge : Qiangqiang Mi
General Coordinator : Runtian Che, Runtian Che
Design Team : Runtian Che, Qiangqiang Mi, Shengnan Zhang, Wei Shi, Junlong Chen
Woodworker : Shuai Yang
Structural Consultant : Haokun Han
Construction Manager : Gong Zhang
City : Dali
Country : China
"West or East" is a restaurant offering fine dining for travelers, with traditional Yunnan cuisine and new dishes inspired by travelingsand history. It is located in No.25 Guangwu Road, Dali Ancient City.
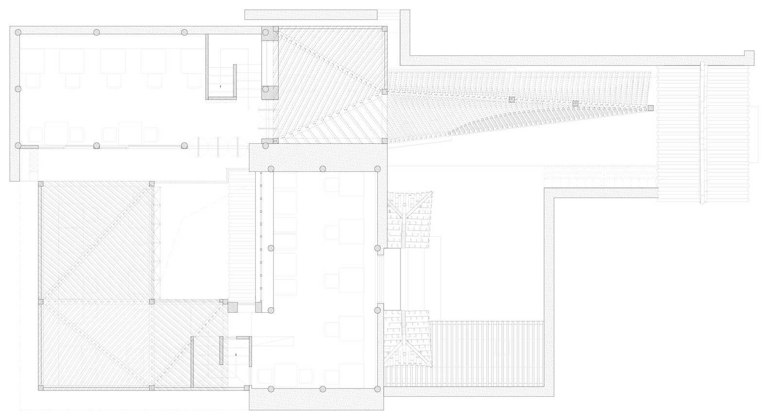
The restaurant is based in a two-yard ancient house where the first yard is the outside one and the second yard is closely combined with original living space. The site is in a dilapidated condition, of which the L-shaped two-level house is kept considering its historic value, while the rest collapsed part has been demolished. The restaurant needs enough space for business, and this means new section must be added to the site.
The relationship between the existing old section and the new addition has always been the key point of the reconstruction project. We take it as the the existing “old shell” and the “new body”. The “new body” is originated from the “old shell”, keeping the shadow of the ancient architect but wholly brand-new. The ancient architect reserved its speciaty besides necessary repair work.
The old section and the new addition each have two steps to connect the upper and lower levels. The new architect has grown from the ancient one, as though piecing through it and reaching out to the first yard on the outside. Adding initiative to the original conservatives, it sheds spotlight on the restaurant's public nature. The new addition is also continuation of its new form.
In view of the scale of the courtyard, the roof of new addition slants down to a side of it in this confined space. To highlight the fact that new architect has grew from the old, the side of the roof of new addition connected with the old architect also slants down to the other side. In order to provide a better dining environment, the ridge of the roof in the middle part is slightly lifted up. Thus, it forms into the present roof shape and meanwhile affects the extended part of the new addition.
We wish the new addition could bring life to the ancient house. In a metaphor, they are two shapes of life. One has witnessed hundreds of history while the other new-born one just experienced its first light of life. Look forward to their bounded and legend future.
▼项目更多图片
客服
消息
收藏
下载
最近







































