查看完整案例


收藏

下载
——建筑空间是人的心理空间的外化
建筑空间既是日常生活所在的实体空间,同时又代表着人们心灵中完美的生活意向,生活在建筑中的人们既是空间的创造者,又是最直接的体验者,人们对空间的体验是人们对空间环境要素的综合感知和感受。因此,该空间设计巧妙地将业主的日常生活融入其中,创造舒适的办公空间。
01项目背景
▲项目概览
新工作室位于草场地艺术区,回到二十一世纪。旁边有一栋两层楼高的红砖房子。
▲项目区位
02
设计思考
业主王绮彪老师是位画家,张然老师是一位导演,他们是一对热爱艺术的夫妻。该空间是为二人打造的共同办公场所,其不仅是收集、处理信息的主要场所,亦是传递各种生活体验的场所。其设计概念来源于导演张然近期执导的影片“避雨亭”。
▲影片“避雨亭”片段
将“避雨亭”的概念转化为抽象形态植入空间内
概念草图
▲空间体系
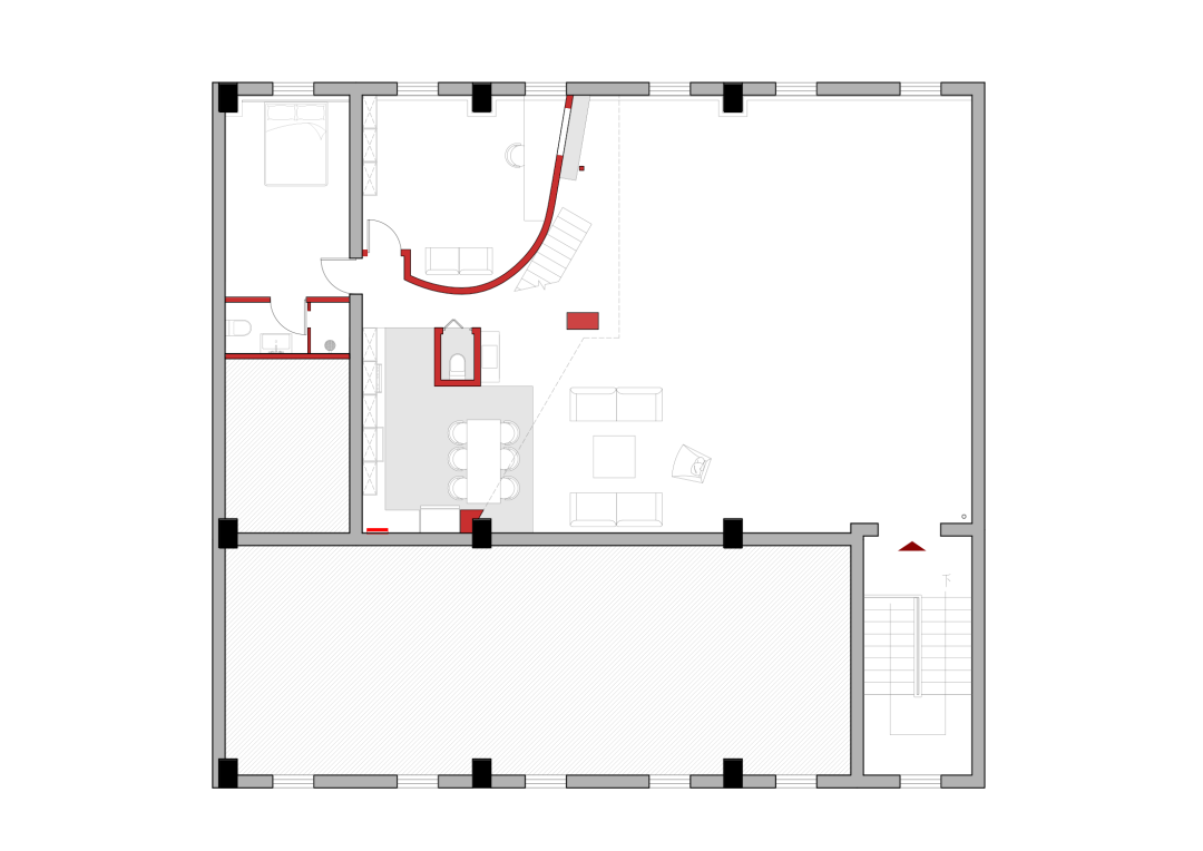
首层平面
异化的“亭子”成为空间的主要构件,亭子之内为导演张然的工作间、餐厅、厨房、卫生间以及卧室,“亭子”之外为艺术家王绮彪的工作空间。
“亭子”外形
▲看向导演张然的工作间
楼梯入口
从餐厅空间看向楼梯
▲通向夹层储物空间的楼梯
一楼看向二楼
二楼看向一楼
▲楼梯细节
▲楼梯细节
二层平面其余区域在有限的预算条件下保留原状,独立的大空间包容了新植入的“亭子”,“亭子”的夹层承担了储物的功能,夹层倾斜的平台避让原有天窗,使天光能无遮挡的洒向会客区域。
看向天窗
平台
看向楼梯
立面图
项目名称:避雨亭—艺术家(画家王绮彪&导演张然)工作室改造
项目类型:空间改造
设计方:帕姆建筑
完成年份:2023 08
设计团队:米麒光侯书夏余东燕
项目地址:北京草场地艺术区
建筑面积:187
摄影:周志鹏
版权 :帕姆建筑
合作方:缪家新张彭飞陈亮
业主:艺术家王绮彪导演张然
客服
消息
收藏
下载
最近






















