查看完整案例


收藏

下载

翻译
Architects:Omar Gandhi Architect
Year :2018
Photographs :Ema Peter
Manufacturers : Caesarstone, Subzero/Wolf, Escenium HAUS, Farrow and Ball Paint, Hunter Douglas, Kohler, TiltcoCaesarstone
Contractor : Greg Redden (Redden Brothers Development)
Structural : Andrea Doncaster
Engineering
Physical Mode : John Gray Thomson
I
Rendering : Norm Li AG+
Design : Omar Gandhi, Stephanie Hosein, Jeff Shaw, Lauren McCrimmon, John Gray Thomson, Karl Gruenewald, Kelly Cameron, Kristi Smith
Physical Mode Engineering : John Gray Thomson
I
City : Chester
Country : Canada
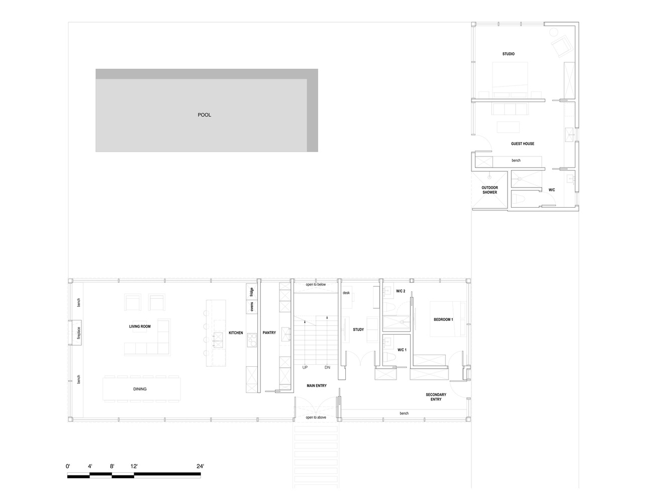
Located in the picturesque coastal cottage country of Chester, Nova Scotia, Teph Inlet is a summer home for a young family.
Formally composed of 3 rectilinear volumes on a plateau overlooking the ocean, the home is designed for optimal interaction with the outdoors. The main house is a stacked box clad in red cedar-clad horizontal boards hovering above a glass-encased ground level. Massive sliding glass panels allow the heart of the home, the kitchen and living room, to open up to the swimming pool and deck. Adjacent to the pool, at a right angle to the main house, is a pool house which accommodates private guest living quarters. The pool and main house make for an enclosed court on the private side of the house while an aluminum panel-clad garage forms the entry court on the public side of the house.
White quartz stone tops both accessory buildings which are stitched in plan by a linear sports area designed to accommodate a zipline and various activities enjoyed by the family.
Floating white oak stairs connect the ground floor program with the light-filled upper level through both punched windows and skylights. A massive corridor window stretches nearly 30 feet and provides ample space for reading, relaxing, and taking in the landscape.
The house is composed of herringbone patterned white oak floors, floor to ceiling over-scale doors and a mixture of light-toned stones and tiles. The mature, mid-century themed furniture palette is juxtaposed with fun programmatic spaces including a movie room and ping pong space.
▼项目更多图片
客服
消息
收藏
下载
最近





















