查看完整案例


收藏

下载

翻译
Architects:Omar Gandhi Architect, SvN
Year :2019
Photographs :Janet Kimber, Bob Gundu
Structural Engineer :Blackwell Structural Engineers
Mechanical Engineer :GPY+ Associates Engineering Inc.
Geotechnical Engineer :Haddad Geotechnical Inc.
Design : Omar Gandhi Architect in collaboration with SvN
Omar Gandhi Architect Team : Stephanie Hosein, Lauren McCrimmon, John Gray Thomson, Jeff Shaw, Karl Gruenewald, Chad Jamieson, Kristi MacDonald
Sv N Team : Drew Sinclair, Bryan Beca, Anthony Greenberg
Physical Model : John Gray Thomson
Renderings : Visual Plus Inc.
Electrical Engineer : Summit Engineering
Code Consultants : LMDG
City : Toronto
Country : Canada
Lady Marmalade has been a mainstay of the Toronto brunch scene since 2009. Their newly renovated space, designed by Omar Gandhi Architect in collaboration with SvN, is located on an up-and-coming stretch of Broadview Avenue just north of Dundas Street.
The building exterior retains its original character, including the original brick front façade. The new, large storefront window provides a glimpse into the bright interior for passersby and dedicated Lady Marmalade brunch patrons. The cedar cladding hints at what to expect inside and will develop its own patina over time to complement the aging brick cladding. A modest addition at the back provides additional square footage for the kitchen and dining areas.
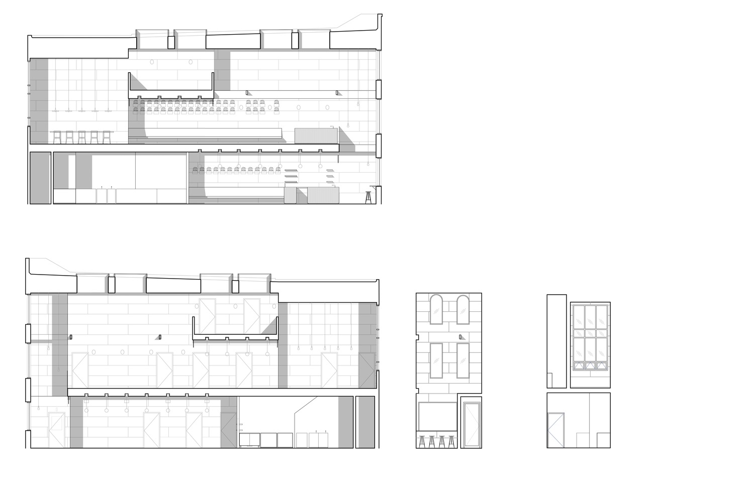
The design is an exploration of scale, proportion, materiality, and light. It was an exercise in transforming a long, narrow, dark building into a bright, warm space for enjoying incredible food and great company. The compressed entry opens up into the dramatic, light-filled triple height space at the front of the dining room. The existing floorplates have been carved away to draw natural light to even the most interior spaces in the restaurant. The exposed beams that span the restaurant are a nod to the past, hinting at the existing floors that have been since been removed.
All services and circulation are consolidated along one side of the building to open up the rest of the space to dining and cooking. The first and second levels provide seating for patrons and include a double-height private dining area at the rear of the building. The kitchen is located at the rear of the building on the first floor and maintains the same openness of Lady Marmalade’s previous location where patrons can catch a glimpse into the inner workings of the restaurant. The open mezzanine contains an office for the owners of the restaurant where they can enjoy the atmosphere of the space from the privacy of their workspace. The new windows at the front and back of the restaurant and new skylights provide ample illumination, even on the cloudiest of days.
The Baltic birch interior finish of the dining room establishes a consistent backdrop to the natural sunlight as it charts its path through the restaurant over the course of a day. The Baltic birch folds out from the wall to create banquette seating on both levels. It is extruded to form the coffee bars and opened up to create light slots for the suspended light fixtures. The wood material palette is consistent throughout the dining area, from the finishes of the interior doors to the wood window frames and jamb extensions. The carefully curated wall-mounted plants animate the space and provide acoustic relief for the busy weekend brunch crowds. The warm brass accents of the light fixtures add to the warmth of the interior material palette.
▼项目更多图片
客服
消息
收藏
下载
最近




























