查看完整案例


收藏

下载

翻译
Architects:Omar Gandhi Architect
Year :2018
Photographs :Ema Peter
Manufacturers : Caesarstone, Brendan RavenhillCaesarstone
Structural :Andrea Doncaster Engineering
Contractor : MRB Contracting
Structural: : Andrea Doncaster Engineering
Physical Model : Chad Jamieson
Rendering : Ryan Nelson
Design : Omar Gandhi, Jeff Shaw, Karl Gruenewald
City : Kingsburg
Country : Canada
Located adjacent to the wild landscape of Kingsburg Beach on the south shore of Nova Scotia, set amongst tall grasses, roaming deer and the raw scent of the sea. The dark silhouette of the fortress-like structure, one of few things seen through the thick fog. Leaning forward with a canted back shell inspired by local gambrel-rooved barns, the residence braces itself for the unpredictable Nova Scotian weather.
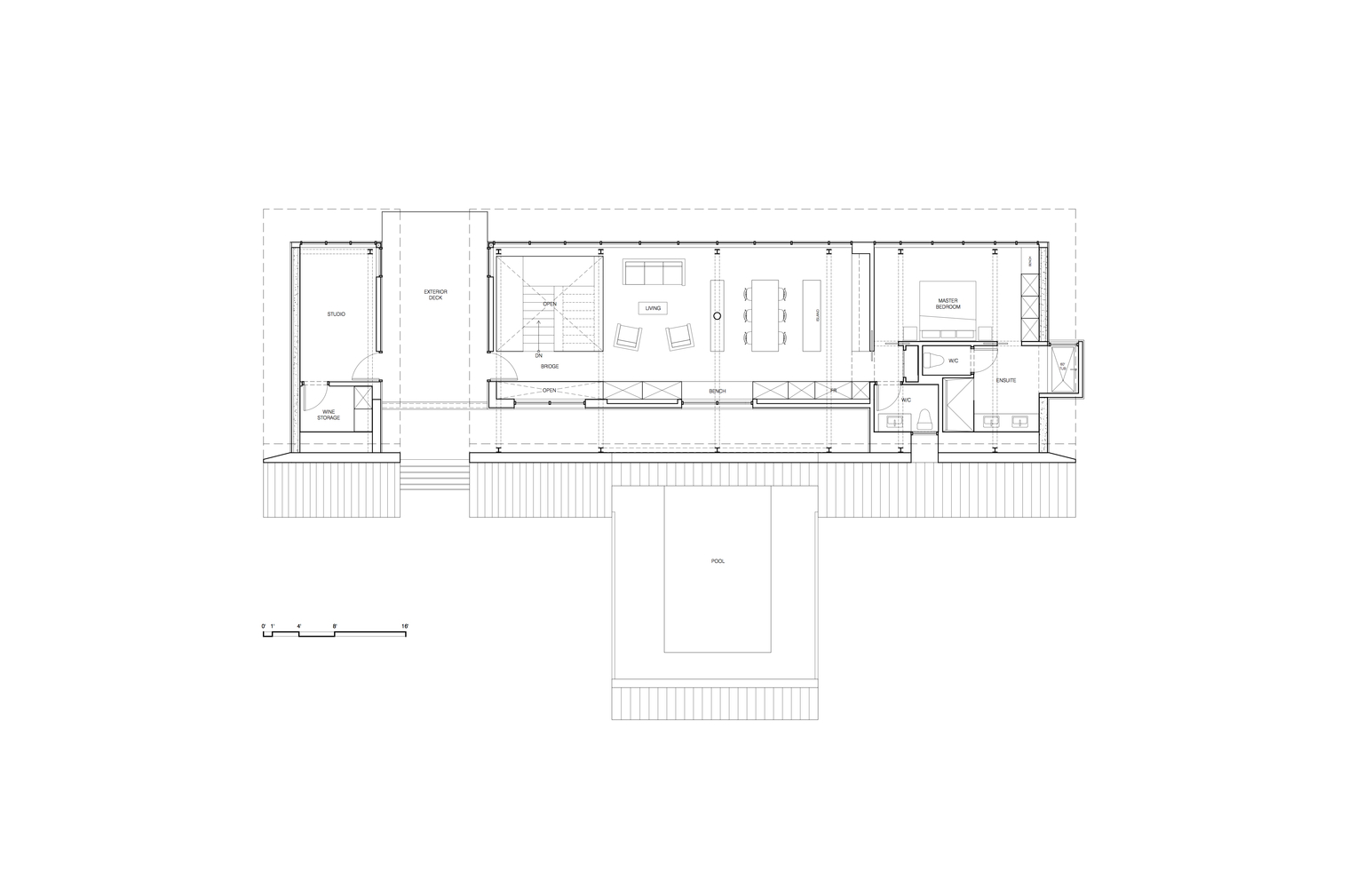
Composed of two levels and an interstitial space for circulation hugging the heavy steel back wall, the home takes advantage of the stunning seaside views while maintaining a high level of privacy from adjacent neighbours and passers-by. Both the deep-set windows and the brise soleil in addition to the back canted wall help to control solar gain. A large ground-level terrace enclosed by the canted wall and slatted screen enclose a plunge pool and fireplace – all opening up to the front facing view of the beach.
The lower level includes a garage and guest wing both flanking the internal breezeway and a steel staircase clad in walnut and black steel. On the second floor, the living space is surprisingly rich and warm with hints of colour, brass fixtures and a warm palette of light and dark wood tones. Centred in the room is a linear fireplace. An outdoor space protects both privacy and the intense summer sun with a wood brise soleil. The deck cantilevers out from the house, projecting towards the beach and peripheral views.
A wall of windows flanks the ocean side of the residence, providing an uninterrupted view of the curvilinear beach and the sounds of the landscape. The entry side is hyper minimal and mysterious with slight glimpses out from within, providing only a tease on approach from the road.
Heavy, black steel frames repeat from end to end of the structure providing the armature for its dynamic form. The heavy, dark shell is clad in extra-dark bronze, aluminum standing seam.
▼项目更多图片
客服
消息
收藏
下载
最近





























