查看完整案例


收藏

下载
© doublespace photography
双空间摄影
架构师提供的文本描述。坐落在布雷顿角戏剧性的海岸线上,卡博特链接上的高尔夫别墅是对球场、土地和旅行的邀请。以其独特的品牌纯链接发挥和全景景观,卡伯特代表了一个戏剧性的背离了典型的高尔夫远足。
Text description provided by the architects. Nestled along the dramatic shoreline of Cape Breton, The Golf Villas at Cabot Links are an invitation to a course, a land and a journey like no other. With its unique brand of pure links play and panoramic vistas, Cabot represents a dramatic departure from the typical golf excursion.
© doublespace photography
双空间摄影
就像课程本身一样,Cabot的高尔夫别墅提供了两个世界的绝对最好:一个具有现代影响和高端设施的高端生活环境,设置在一个风景如画的背景下,让人能够回到游戏的源头。无论是对游戏的热情,还是对生活的欣赏,第一次带客人到Cabot,链接的团队希望客人可以无限期地考虑延长他们的球座时间。
Like the course itself, the Golf Villas at Cabot offer the absolute best of both worlds: An upscale living environment with modern influences and high-end amenities, set against a picturesque backdrop that hearkens back to the game’s very origins. Whether passion for the game or the appreciation of life’s less traveled roads first brought guests to Cabot, the team at the Links hope guests will consider extending their tee time indefinitely.
© doublespace photography
双空间摄影
逃避平凡,优雅从来没有像现在这样吸引人。俯瞰郁郁葱葱的绿色和壮观的海景卡伯特链接,2和4卧室高尔夫别墅的卡伯特链接提供了一个水平的住宿是罕见的,但显然很容易被欣赏。因为娱乐本身就是一门艺术,每个别墅都有一个完全定制的厨房,配有超大的石制台面、高档电器和现代开放的设计。在每个生活空间中,像详细的宽木板地板和独特的木质特色墙壁这样的口音显示,即使是最小的细节也得到了极大的关注。休息室位于带有室外壁炉的私人甲板上。在独立浴室里泡个澡。或者在室内放松,享受安静、优雅的避难所氛围。
An escape from the ordinary, elegance has never been more inviting. Overlooking the lush greens and majestic ocean views of Cabot Links, the 2- and 4-bedroom Golf Villas of Cabot Links provide a level of accommodation that is rare to find, yet decidedly easy to appreciate. Because entertaining is an art unto itself, each villa features a fully custom kitchen with oversized stone countertops, premium appliances and a modern, open design. Throughout each living space, accents like detailed wide plank wood floors and unique wood feature walls reveal that even the smallest details have been given the utmost attention. Lounge in the serenity of a private deck with an outdoor fireplace. Take a soak in a freestanding bath. Or relax indoors while enjoying the quiet, refined ambiance of a sanctuary like no other.
从一开始,奥马尔·甘地建筑师和吉尔·格里夫斯设计公司的团队就开始挑战自己,创造出一种既受欢迎又吸引人的独特美学。其结果是蜿蜒排列的木质别墅,创造了一个门槛之间的因弗内斯镇和现在著名的卡伯特链接高尔夫球场。每座别墅的外观都是精心设计的木制石板,其外观设计简约典雅,表面全玻璃,朝大海望去。为了与周围环境建立一种自然的平衡感,每座建筑都遵循缓缓倾斜的景观方向。其效果是微妙而深刻的,创造了一个有吸引力和田园诗般的撤退从日常世界。
From the outset, the team at Omar Gandhi Architect and Jill Greaves Design challenged themselves to create a distinctive aesthetic that’s as captivating as it is welcoming. The result is a serpentine arrangement of wood-clad villas that creates a threshold between the town of Inverness and the now famed Cabot Links golf course. Designed to reflect a simple elegance, each villa’s exterior is clad in finely crafted wooden slats, with a fully glazed façade that looks out toward the sea. To establish a natural sense of balance with its surroundings, each building follows the direction of the gently sloping landscape. The effect is subtle yet profound, creating an attractive and idyllic retreat from the everyday world.
© doublespace photography
双空间摄影
这座双卧室半独立别墅占地1332平方英尺,提供舒适的逃生空间,完全由吉尔·格里夫斯设计,由无尽的全景装饰。室内设有主卧室,配有套房(大浴缸和步入式淋浴)、额外的卧室(配有独立浴室)、开放式居住空间和厨房,有不间断的日落景观和宽敞的私人甲板。
The 2-bedroom, semi-detached villa occupies 1332 square feet, offering a comfortable escape designed entirely by Jill Greaves Design and adorned by endless panoramas. Inside, a master bedroom with en suite (large tub and walk-in shower), an additional bedroom with detached bathroom, an open-concept living space and kitchen with uninterrupted sunset views and expansive private deck.
© doublespace photography
双空间摄影
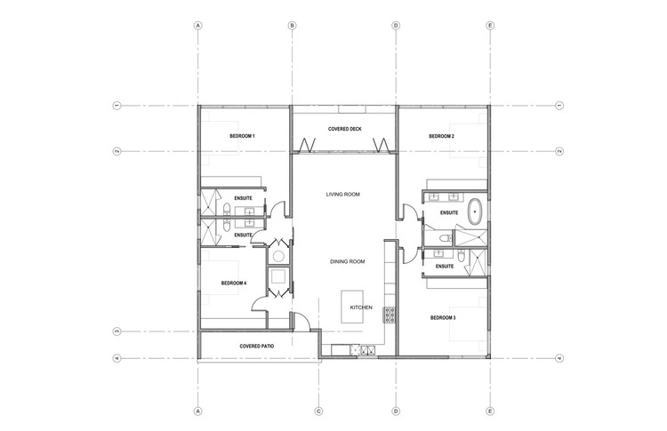
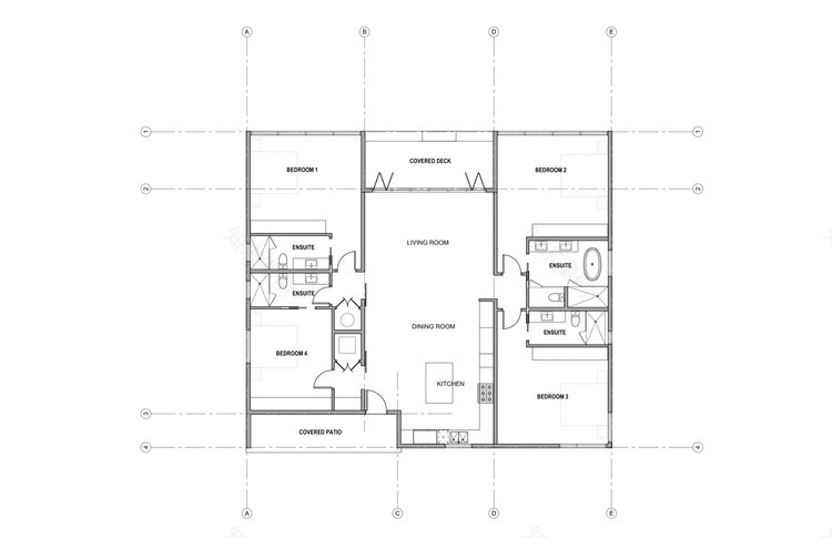
每间宽敞的4卧室别墅占地2297平方英尺,提供最高的舒适和设计。一套主套房,并配有另外三间卧室和浴室。自由流动的厨房和生活空间具有无与伦比的海洋和高尔夫景观,打开了一个大型的私人甲板。每个别墅都有一个燃气壁炉、现代装饰和多个座位区。
Each spacious 4-bedroom villa occupies 2297 square feet, offering the ultimate in comfort and design. A master suite and accompanying three additional bedrooms and bathrooms. The free-flowing kitchen and living space features unsurpassed ocean and golf views, opening onto a large private deck. Each villa features a gas fireplace, contemporary décor and multiple seating areas.
© doublespace photography
双空间摄影
Architects Omar Gandhi Architect
Location Inverness, Canada
Category Houses
Client Cabot Links
Design Omar Gandhi, Peter Braithwaite, David Greenwell, Hayley Johnson
Interior Design Jill Greaves Design
Area 2297.0 ft2
Project Year 2015
Photographs doublespace photography
Manufacturers Loading...
客服
消息
收藏
下载
最近
















