查看完整案例


收藏

下载

翻译
Architects:Philippe Samyn and Partners
Area :11348 m²
Year :2018
City : Kortrijk
Country : Belgium
The importance of the vertical development of cities. The vertical development of cities is one of the foundations of future urbanism for the sake of preserving the natural and agricultural territories. The verticality is the result of common sense but the livability of vertical housing remains, as its architecture, to be elaborated in order to give rise to a community of inhabitants. For decades, Philippe Samyn conceived proposals in this direction (see, for example, his essay "The Vertical City" published by the Royal Academy of Belgium in September 2014).
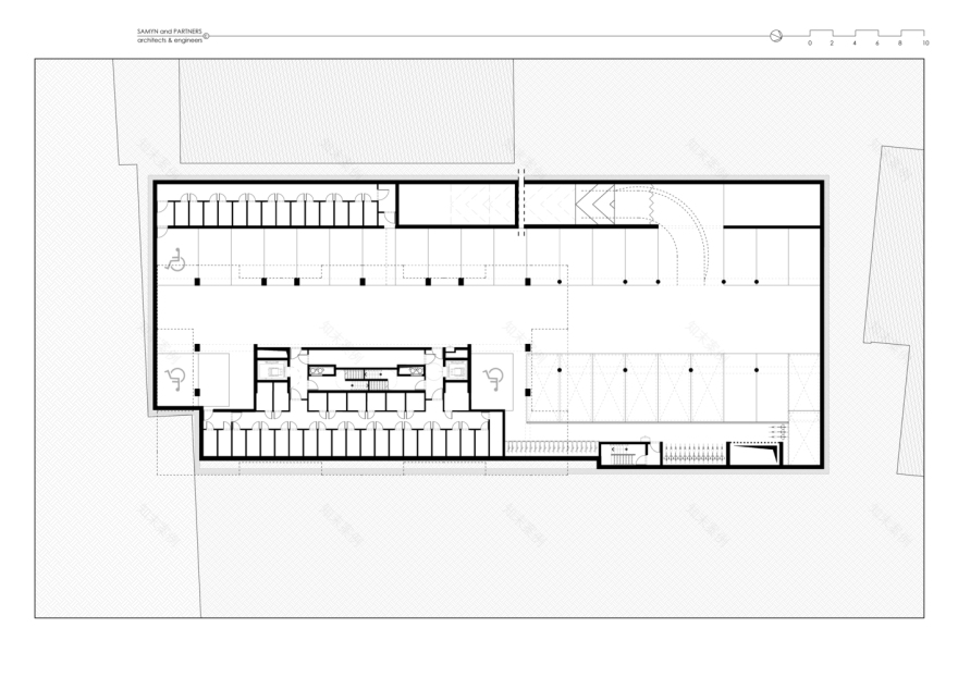
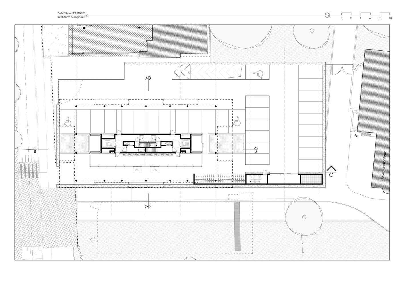
The project of the K-Tower is an integral part of this vision. It is about offering quality apartments instead of beautiful villas arranged in the periphery, the latter being too excessive, both in land consumption and in the development of urban networks. The site. The site of the Sint-Amandscollege is located inside Kortrijk's periphery, on the bank of the river Leie. The current school buildings strongly vary in appearance as they were constructed at different ages.
The "Collegetoren" was built in 1960 to house a boarding school; its base houses additional educational facilities. As the "Collegetoren" no longer meets the current needs, the Kortrijk Urban Development Board launched a competition in 2005 for its reassignment and the rehabilitation of the Collège buildings themselves. A thorough analysis of the existing situation concluded that the tower had to be demolished and that the base should be maintained.
The implantation of the tower. A tower does not set itself anywhere. The new tower is thus situated on the east side of the remaining base, next to Albert Park. This position reinforces the image of the base and closes the ensemble in a logical way. Placed on the bank of the river Leie, the tower is the visual link between the dense city and its vast green periphery. It offers views of an exceptionally wide extent.
The form. Based on a rectangular plan of 1 to 2, the tower is slender to limit its shadow. It presents the city with its finest silhouette. Its visual slenderness is accentuated by the luminous appearance of its envelope of white sheet, satin mirror and polished mirror. The senses. The book "A Pattern Language” by Christopher Alexander, qualified by Françoise Choay as the only theoretical work on architecture after Vitruvius, forms, with the "plastic number" of Hans Dom Van der Laan on the proportions, a part of the theoretical foundations on which all the reflections of Philippe Samyn are based.
Philippe Samyn has likewise always been concerned about the respect of the five human senses and particularly the respect of natural light. A special attention is paid here as well to the visual, acoustic, olfactory and tactile qualities. The most striking feature is the significant use of mirrors and glass with a high color rendering index on the façade, which increases the brightness in the building as well as on the terraces.
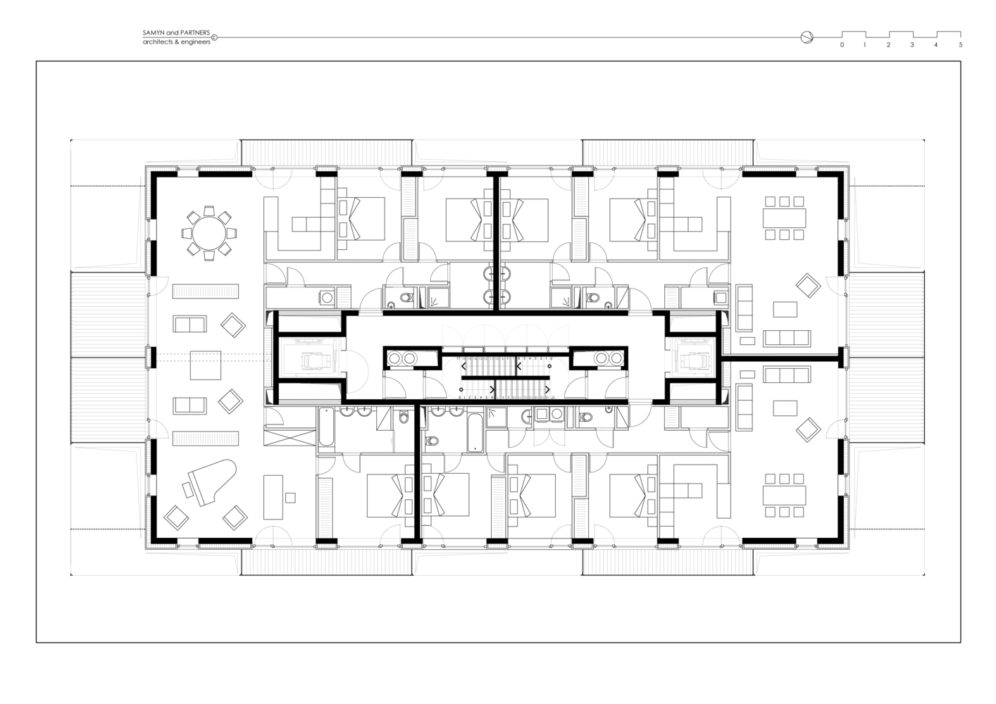
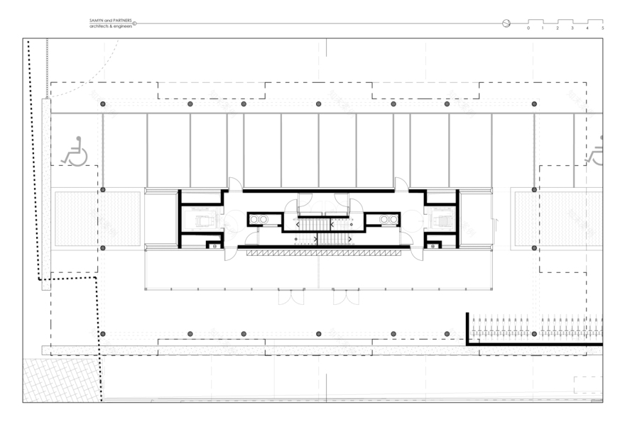
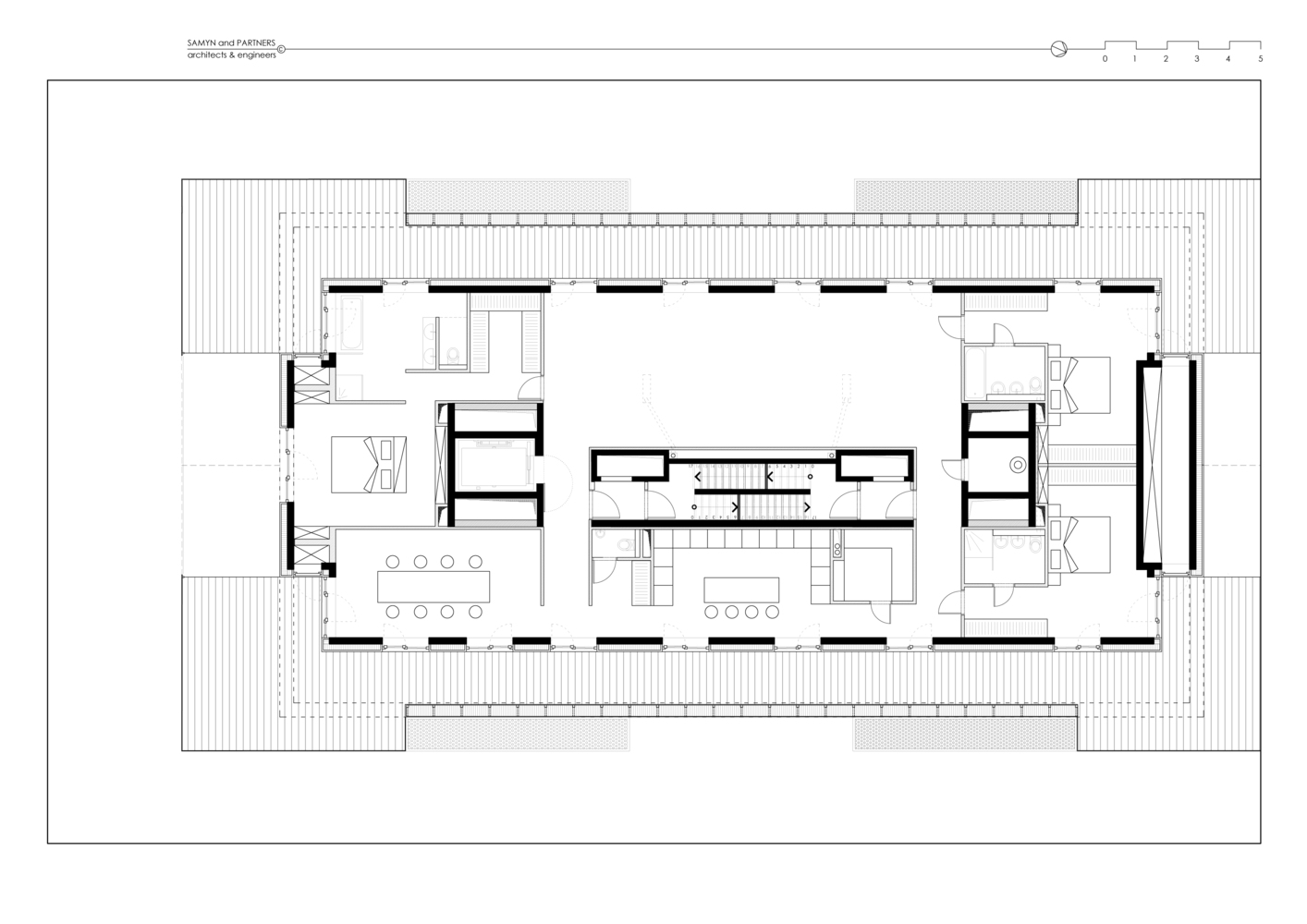
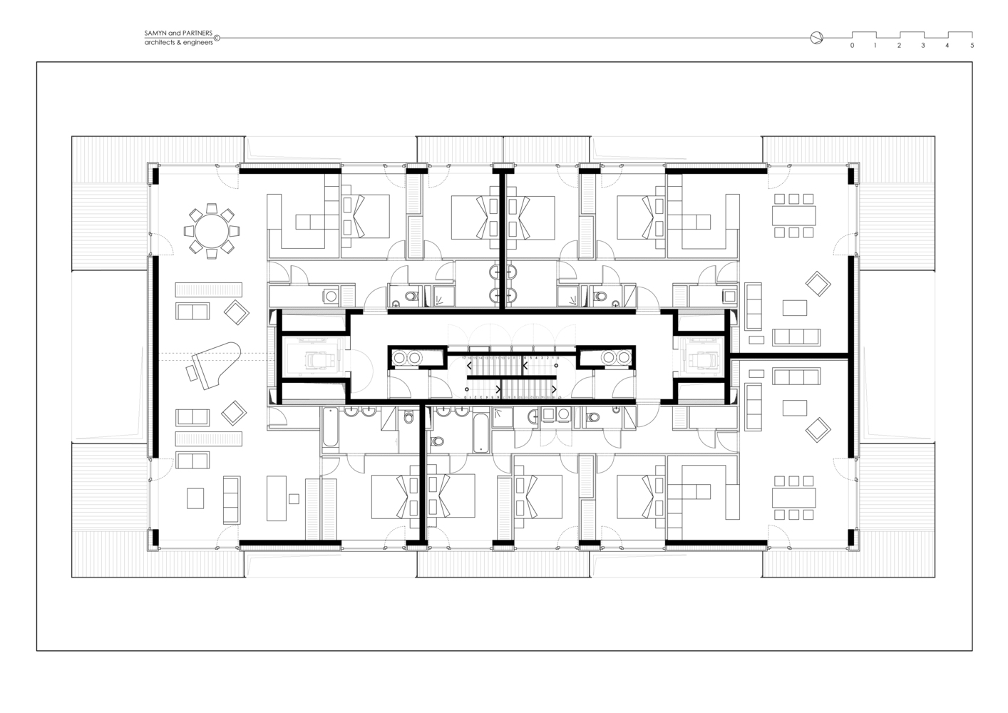
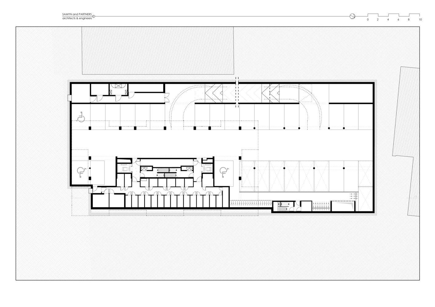
Orientation and views. The proposed development for the interior of the tower, consisting of 65 apartments, is flexible. Around a central core containing circulations and techniques, it is possible to provide two, three or four apartments per floor. A loft, including a double height living room, occupies the top floor. With its east-west orientation, the tower offers far-reaching perspectives on the river Leie while its slim south facade enjoys views over the historic center of the city.
The plan allows at least two orientations for each unit and their alternating wide terraces. The double height of the latter provides abundant sunshine and natural light of high quality inside the apartments. The mantillas of perforated sheet around the terraces ensure the privacy of the apartments and protects them from the draughts. The openings, created at each terrace and each apartment, frame exceptional views in the manner of paintings. The facade. Any construction is characterized by seven orders of magnitude waymarking the visual field, like the keyboard of a well-tempered piano has seven octaves expanding over the hearing field. The readability of these orders is essential to attain visual harmony. Architecture must ensure its materiality.
The large facades of the tower are thus divided into subsets nested in increasingly small dimensions, each of which is materialized by a different treatment based on internal comfort and the intake of natural light: white, mirrored or satin finish reflective surfaces. This découpage, associated with the terraces wrapped in perforated sheet metal, makes it possible to gradually switch from the large urban scale and vast landscape to the size of the door handle. It also ensues that the kinetic image of the tower is always different depending on the time of day and the day of the year.
▼项目更多图片
客服
消息
收藏
下载
最近

















































