查看完整案例


收藏

下载
H O P E ¢D E S I G N
⊙
# 深白 #
白不仅仅是一种颜色
讲到白,让我第一个想到的人,就是原研哉。看过他写过的一本书——《白》,里面他是这么定义“白”:白不仅仅是一种颜色,白必须被称为是一种设计理念。“白”使得其他颜色被规避,但其本身又蕴含着丰富的多样性。“一种真正好的白色,我会觉得大脑中存储的感觉得以结合并在整体上得到了强化”。
When I talk about Bai, the first person that comes to mind is Kenaya Hara. Read a book he wrote -- white, in which he defined "white" in this way: white is not only a color, white must be called a design concept. "White" allows other colors to be avoided, but it is also rich in diversity. "A really good white, I feel like the stored feelings in the brain are combined and reinforced overall."
每当提到“白”,有些人会脱口而出“白色”,或者是一罐放在角落的白色颜料……现实世界提到“白”是作为一种颜色讲,或者可以理解是其纯洁的内涵。其实,这不仅仅是一种颜色,更多的“白”应该作为一种设计理念,或者一种设计态度来讲。
When the word "white" is mentioned, some people will blurt out "white", or a can of white paint in the corner... The real world refers to "white" as a color, or can be understood as its pure connotation. In fact, this is not only a color, more "white" should be as a design concept, or a design attitude.
深白
是一种自我内诉,
白是一切的缺失,
又是一切的集合。
Deep white
It’s a kind of internal confession,
White is the absence of all,
It’s a collection of everything.
纯净的白与深邃的蓝交相呼应。
The pure white is matched by the deep blue.
不同的材质,造就了不同的肌理,让空间质感层次更丰富
Different materials create different textures, so that the space texture level is richer.
空间机能决定设计形式,空间的界限不再呆板。
Spatial function decides design form, the limit of space is no longer rigid.
装饰不一定非常多色彩,一种色就很极致了。
Decorations don’t have to be colorful, just one color is extreme.
光线的明暗也是我们选择色彩的重要依据。
The LIGHT and shade OF THE light also is the important basis that WE CHOOSE colour.
简单明了,是我们的诉求。
Plain and simple, that’s what we want.
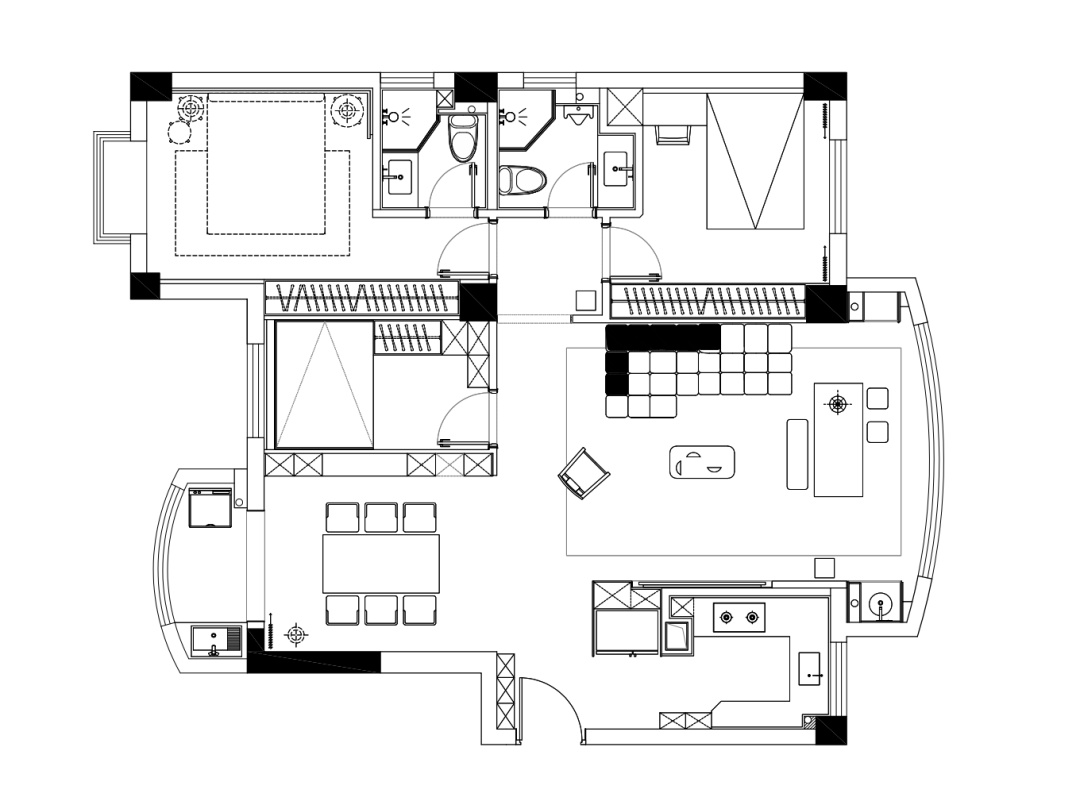
平面图 DESIGN PLAN 原始户型图
平面布置图
项目信息
ABOUT THE PROJECT
项目名称:深白
Project Name eep white
项目地点:福建省龙岩市新罗区新惠小区
Project Address: Xinhui Community, Xinluo District, Longyan City, Fujian Province
项目领域:私宅
Field: Private homes
设计出品:HOPE 厚朴设计
Design: HOPE
主创设计:陈曾斌 陈隐开 王俏文
Creative Designer: Chen Zengbin Chen Yinkai Wang Qiaowen
设计团队:罗益淳、张泽宇、卢忆
Design Team: Luo Yichun, Zhang Zeyu, Lu Yi
工程营造:厚朴装饰
Engineering Construction: Park both quality
施工团队:李宏伟、张少华、付乾炜、章祖华
Construction team: Li Hongwei, Zhang Shaohua, Fu Qianwei, Zhang Zuhua
建筑面积:120㎡
Building Area: 120 ㎡
摄影:1988 摄影
Photography Copyright: 1988 photography
项目竣工:2022.04 Project completion: 2022.04
陈曾斌
HOPE 厚朴设计创始人&设计总监
陈隐开
HOPE 厚朴设计创始人&设计总监
王俏文
HOPE 厚朴设计联合创始人&设计总监
━
HOPE 厚朴设计成立于 2016 年,公司秉承“正德厚生 抱朴含真”的经营理念,踏实做好每一个案子。以人为本,不浮夸,不炫技,是我们设计的核心思想。
核心设计价值观:『房子≠家,空间设计一定要服务于生活场景,而生活情景一定是来源于生活本身。我们力求让我们的设计,能够契合每一个使用者。真正的设计,不是为了彰显设计师的个性,而是满足对方的品性。』
HOPEDesign was founded in 2016. The company adheres to the business philosophy of "Zhengde, sincerity and sincerity", and does a good job in every case. People-oriented, not ostentatious, not showy skills, is the core idea of our design. Core design values: "House ≠ home, space design must serve the life scene, and the life scene must come from the life itself. We strive to make our design fit every user. The real design is not to show the personality of the designer, but to meet the character of the other person.
客服
消息
收藏
下载
最近




































