查看完整案例


收藏

下载
家的模样,应该是适合自己的,不是千篇一律的,应该是自己所喜爱的,家人所喜爱的。形式跟随功能,本案在设计中,我们更多的是挖掘自己真正内心底的生活需求。
项目地址| Address:龙岩·学府一号
设计总监| Designer:陈曾斌 陈隐开
设计师| Designer:陈曾斌
项目面积| Area:131.6㎡
软装陈列| Designer:曾静莹
视觉表现| Designer:TNT
原始结构
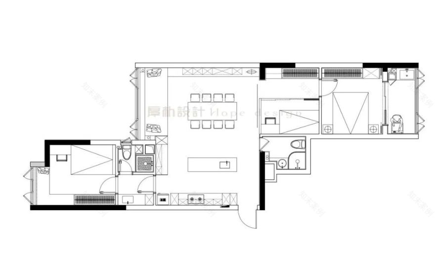
平面布置图
设计说明 :本案是一套学区房,这一点已经定位清晰的告诉我们,一切以孩子学习陪伴为中心,男女主人平时工作繁忙,所以下班以后他们更加珍惜与家人在一起的时光,他们乐于一起烹饪,一起看书,回到家随手阅读,放下手机,回归生活的本真。综合考虑,我们舍弃了客厅,将光线最好的区域留给了孩子,餐厅区域的长桌可以是餐桌,更是学习区,也可以是茶室,这样就给我们的生活留下了更多可能。
起居室
多功能室
在改变原格局通道后,我们得到了一个复合型空间,他既可以是衣帽间,也可以是卧室,更可以是游乐场。
卧室
卧室
往期精彩内容
Past Content
关于我们设计师说设计改变生活,也许不应该是一句空话,我们试着探寻更多生活的本真,力求能带给大家设计之外的思考。生活方式的不同,决定了设计的多变性,我们应该让设计服务生活,改变生活。』
陈曾斌创始人/设计师
13859534910
▼ 陈 曾 斌 微 信 号
陈隐开创创始人/设计师158
80667667
▼陈隐开微信号
我们向往自由,热爱设计并追求完美。我们相信设计源于生活,设计即是對生活的深层感悟,是为了生活品质的提升而存在,我们不仅关注生活的品质内涵,更在于创造一种极致的生活文化。关订阅搜索微厚朴空间设计地址福建省龙岩市新罗区万宝SOHO A1幢1819室
客服
消息
收藏
下载
最近
























