查看完整案例


收藏

下载
HPUASSCIAS
厚朴空间设计
ApartmenRau
序言
世间长物 转瞬即逝
凡是来者 皆有缘分
一波才动 万念相随
失中有得 得中有失
趣舍万殊 不过一念间
初到现场,房子是很大的(面积很大),却又是很小的(由于原格局不合理,每个地方看起来都小小的)。
At the beginning of the scene, the house was very large(large area), but it was very small(because the original pattern was unreasonable, every place looked small).
本身面积如此之大,不能做成大宅的感觉,是失败的,所以设计师在格局上大刀阔斧的调整,细化各功能区域的可能性。将原来客厅餐厅完全打通,空间通透化处理,充分考虑通风采光的可能性。
Its own area is so large that it can not make a big house feeling that it is a failure. Therefore, the designer has drastically adjusted the pattern and refined the possibility of each functional area. The original living room restaurant will be fully opened, space permeability treatment, fully consider the possibility of ventilation and lighting.
合理的空间布局,是装修过程中最重要的一环(没有之一,真的),适合自己的格局,整个装修就成功了一半。
Reasonable space layout is the most important part of the decoration process(no one, really), suitable for their own pattern, the entire renovation of Chenggongle half.
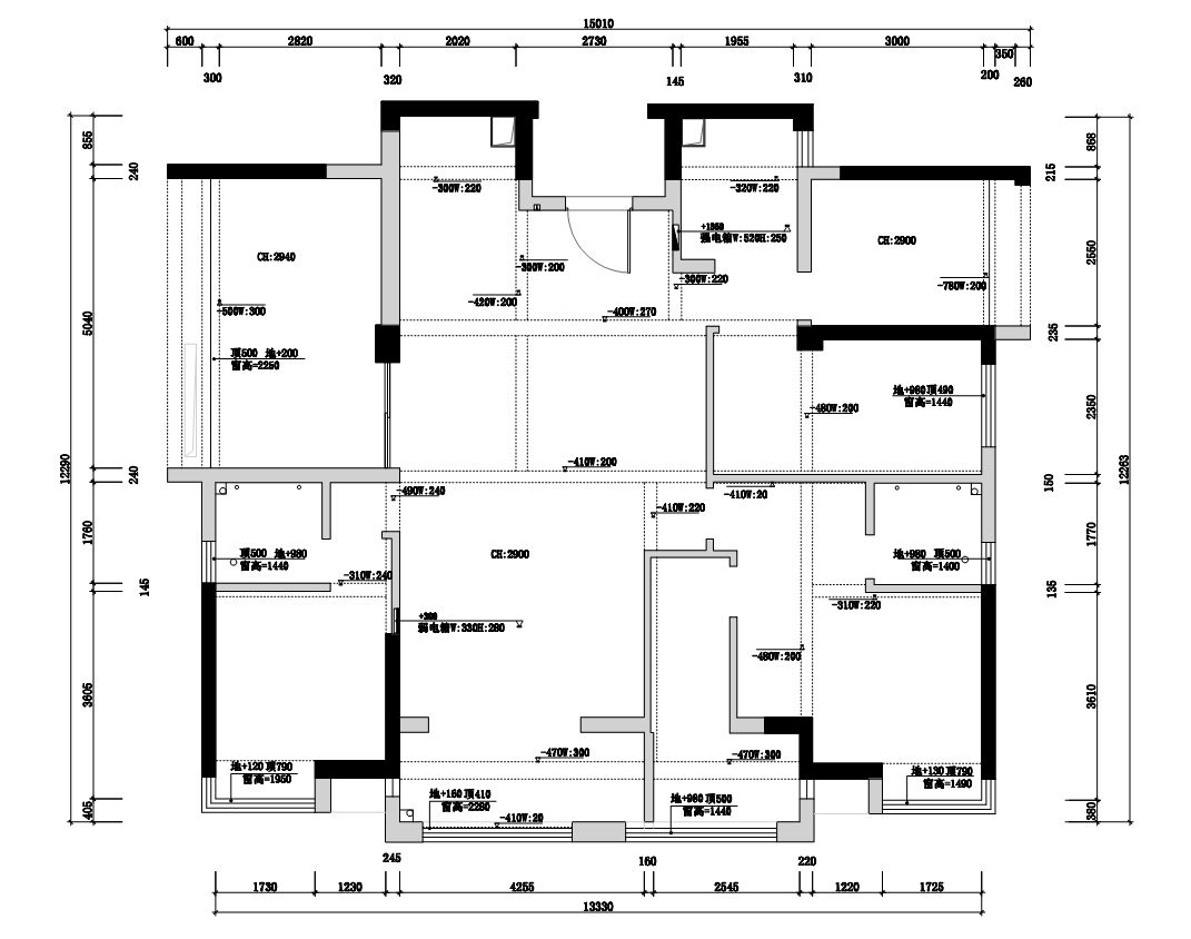
▼一层
原始结构图
BUILDING SURVEY PLAN
一层平面布置图FLOOR PLAN
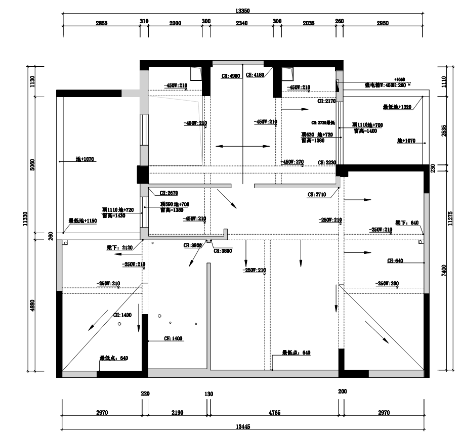
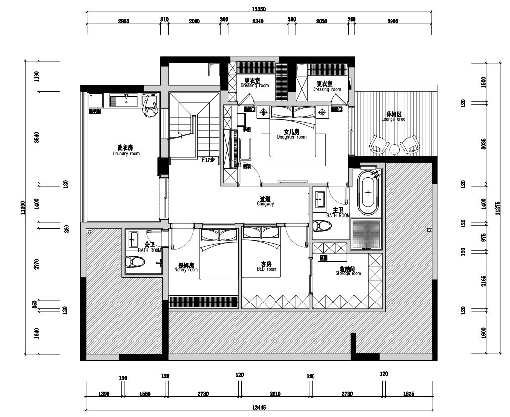
▼二层平面布置图FLOOR PLAN
一层
原始结构图
BUILDING SERVEY PLAN
▼玄关Hall
Way
玄关,设计师做了一些简单处理,让空间与空间之间相互串联的同时,又能够形成独立空间,互相不影响。
At the entrance, the designer made some simple processing, so that space and space are connected in series with each other, and they can form independent spaces without affecting each other.
▼客厅LIVINGROM
在动手设计前,与屋主沟通很顺畅,家具在着手设计之前一一确认,让后期硬装能够在依据现场结构的基础上,尽量配合家具的设计。
Before the start of the design, the communication with the owner is very smooth, and the furniture is confirmed before the design is started, so that the later hard fitting can be based on the structure of the site and cooperate with the design of the furniture as much as possible.
HPUASSIATESC1HPUAaA
您提供的内容中没有包含足够的信息以形成一个完整的段落,因此我将其视为一个单独的段落并返回如下:
dMIa
关注微信还有更多厚朴空间设计HOPUASSOCIATES关于我们设计师说好的设计应该让人目光所投之处足以赶之情以注之心以神之。纵然设计是灵活多变的,但有一种更能抚慰人们繁忙的心,便是独特的自在与悠然。无论是闲看庭前花开花落,还是偶望天上云卷云舒,都能让人心生豁达,这似乎才是生活应该有的样子。
关于我们设计师说好的设计应该让人目光所投之处足以赶之情以注之心以神之。纵然设计是灵活多变的,但有一种更能抚慰人们繁忙的心,便是独特的自在与悠然。无论是闲看庭前花开花落,还是偶望天上云卷云舒,都能让人心生豁达,这似乎才是生活应该有的样子。
HOPUASSOCIATES关关于我们设计师说好的设计应该让人目光所投之处足以赶之情以注之心以神之。纵然设计是灵活多变的,但有一种更能抚慰人们繁忙的心,便是独特的自在与悠然。无论是闲看庭前花开花落,还是偶望天上云卷云舒,都能让人心生豁达,这似乎才是生活应该有的样子。
HOPUASSOCIATES关于我们设计师说好的设计应该让人目光所投之处足以赶之情以注之心以神之。纵然设计是灵活多变的,但有一种更能抚慰人们繁忙的心,便是独特的自在与悠然。无论是闲看庭前花开花落,还是偶望天上云卷云舒,都能让人心生豁达,这似乎才是生活应该有的样子。
陈曾斌创始人/设计师13859534910
陈隐开创创始人/设计师15880667667我们向往自由,热爱设计并追求完美。我们相信设计源于生活,设计即是 对生活的深度感悟,是为了生活品质的提升而存在,我们不仅关注生活的品质内涵,更在于创造一种极致的生活文化。喜欢请点右上角分享到朋友圈订阅请直接搜索微信厚朴空間设计地址福建省龙岩市新罗区万宝SOHO A1幢1819室已修改0/20
客服
消息
收藏
下载
最近
















