查看完整案例


收藏

下载

翻译
Architects:Tomoaki Uno Architects
Area :153 m²
Year :2016
Photographs :Hiroshi Tanigawa
Manufacturers : Louis PoulsenLouis Poulsen
Lead Architects :Tomoaki Uno
Design Team : Tomoaki Uno Architects
City : Nagakute
Country : Japan
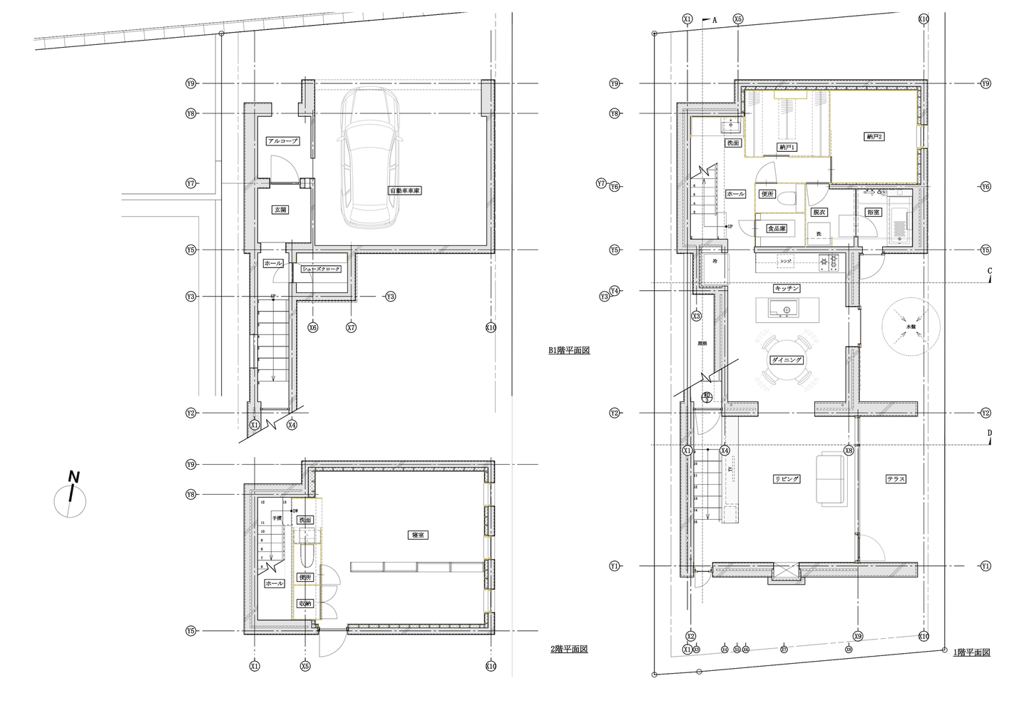
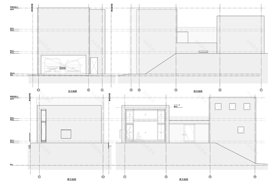
The site is an old developed residential area on the outskirts of Nagakute, next to Nagoya. A slightly conservative impression of the client's couple wanted a modern house with exposed concrete.
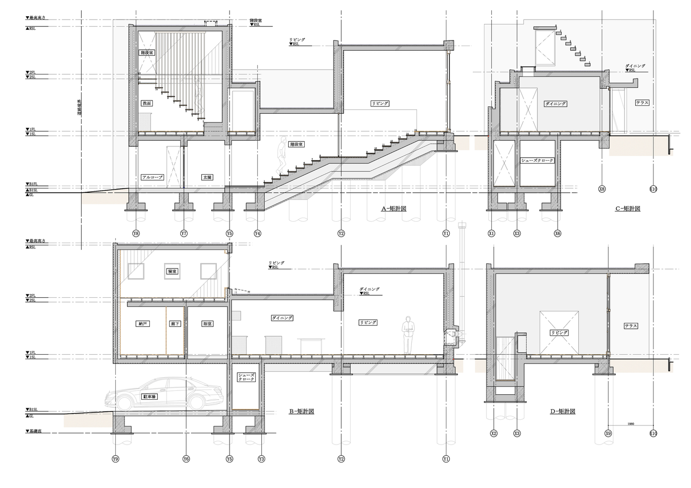
That's why I designed the interior using white oak to suit the couple. I dared to lengthen the distance from the entrance to the living room, and made a plan that strongly emphasized the story.
The living room is wide open to the east and a white oak frame is set around it to design the scenery like a painting.
▼项目更多图片
客服
消息
收藏
下载
最近





























