查看完整案例


收藏

下载
我们在大自然中发现了美丽与宁静。去享受早晨的阳光、去感受风的味道、去与家人交谈去专注于工作、去安心的睡个好觉、去享受艺术生活……”
Tomoaki Uno Architects是由Uno Tomoaki于1990年创立的日本建筑事务所,总部位于爱知县名古屋。
Sagamine House
该项目位于名古屋附近的长野县郊区,是一个比较老旧的居民区。客户夫妇稍显保守,但是他们最终还是选择一座带有清水混凝土的现代住宅。只是内部使用了大量白橡木,并具有尽可能保守的细节。
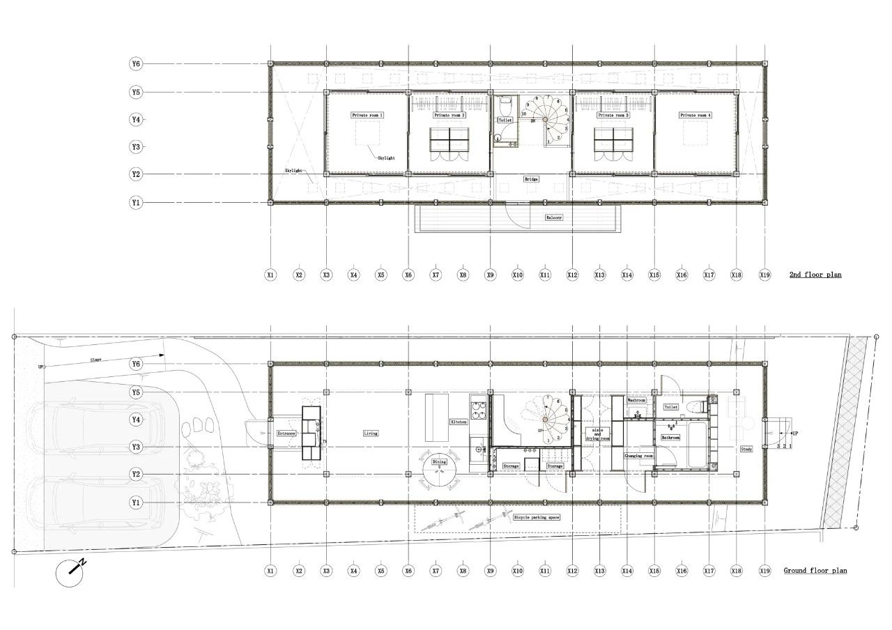
Ogimachi House
Ogimachi House是由UnoTomoaki Architects设计的位于日本名古屋的简约住宅。该住宅由耐火的雪松和天然木材组成,在冬季提供隔热效果。鲜明的立面没有窗户,有很强的隐私性。房屋主要通过一系列天窗接收自然光。
Takenoyama 3
这是这个居民区要建的第三所房子。现在这所房子所处的地方都是悬崖,这一次是最困难的地方。第一个是钢结构、第二个是钢筋混凝土。这一次,我根据业主的意向试图尝试一下木结构住宅,但是我被各种各样法律所限制,不得不做一个混合的结构。业主的还有一个业余的也对,所以他们需要建有一个彩排合练的工作室,地下室就变成了工作室,一楼变成了私人房间。我们决定在顶层建一个木制结构的空间。这个场地最大的特色是南侧的景观,如何利用这一点是这个房子最大的主题。最重要的是要尽可能多地移除碍事的物体,以免破坏从房间里看到的风景。它已经建成有一段时间了,但是每次你去参观,你都能从窗户看到季节性的风景,最重要的是,它是这所房子的最迷人的地方。
Ryusenji House
这就是我设计龙山寺住宅的故事。“你能设计一座没有窗户的房子吗?”这是一对年轻夫妇发来的第一条信息。收到信后不久,我就去见他们了。乍一看,我以为他们不是我的客户。因为他们把头发染成金色,戴了很多穿孔的耳环。他们看起来和我以前的客户完全不同,他们更像混混。然而,当我和他们讨论的时候,我意识到他们对自己的生活方式和对周围社会的态度有清晰的认识。他们只是想远离各种噪音,拥有自己纯粹的私人生活。虽然我接受了他们的意愿,但我坚持让他们不要脱离自然。在一天结束的时候,我把房子的设计重点放在自然光上。完成后的几年,我拜访了他们,他们对我说:“我们从来没有在生活中、体验过这样的自由的感觉”。我仍然记得那是我一生中作为建筑师最宝贵的时刻。
客服
消息
收藏
下载
最近










































































