查看完整案例


收藏

下载

翻译
Architects:Dado Castello Branco Arquitetura
Area :8073 ft²
Year :2014
Photographs :Filippo Bamberghi
Manufacturers : Vectorworks, Belas Artes, Legno, Lumisystem, Marcenaria Plancus, P4 Vidros, PalimananVectorworks
Engineering : Fairbanks e Pilnik
Landscaping : Gilberto Elkis
City : São Paulo
Country : Brazil
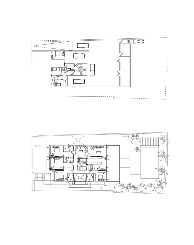
When crossing the entrance doorway, the spectator comes across a big wooden box, made of Cabreúva, which architect Dado Castello Branco defines as the “heart of the house”. The other social areas were distributed from that wooden box, into integrated spaces.
The construction, raised in a 1,200 sq. mt plot in Jardim Paulistano, São Paulo, originated the 750 sq. mt residence, which favors family interaction between the couple and their four offsprings. On the ground floor, the project explored spacious rooms, open to one another, positioned in such way that the garden and the green spots could always be seen.
The architect drew the central “cabreuva” volume and based on it, arranged the other rooms: left to the entrance hall is the home theater and behind it, the kitchen and the pantry. On the right side of the box, is the living room integrated to the porch and the enclosed home office. Behind the volume we can find the generous dinning room table, with 3.5m, signed by Jorge Zalszupin (50’s design). Dado designed an open house so it could be seen in perspective.
The green environment surrounding the construction legitimizes the glass openings from floor to ceiling and the sliding doors in place of conventional windows. At night, the lighting provides a pleasant and welcoming atmosphere from ceiling spotlights and strategically placed table lamps. This feature is also seen on the porch, used as a living room extension and also on the kitchen, which because of the family’s frequent use, has a small garden with a table for meals.
Striking characteristic of Dado’s style, the soft tones are evident on the finishes, such as the “pedra madeira” stone on the facades and porch, the navona travertine throughout the ground floor and the reclaimed wood on the floor of the five suites and the couple’s sitting room; material which also appears on the furniture. These finishes are a backdrop for the decor, where the pieces from the owner’s collection were used. The vibrant yellow used to upholster the 1950’s armchairs adds a dash of boldness to the furniture.
The idea of supporting the project in a monochromatic base moldes perfectly to the proposal of blending the house to its green surroundings, in such way that the eye cannot delimit what is the inside or the outside. As a result, there is a feeling of constant connection to nature.
▼项目更多图片
客服
消息
收藏
下载
最近












































