查看完整案例


收藏

下载

翻译
Architects:Guelo Nunes Arquitetura
Area :1937 ft²
Year :2020
Photographs :Fran Parente
Manufacturers : Atlas Concorde, Herus Marcenaria, Leticia Bononi, Roya Architects, TecLine EsquadriasAtlas Concorde
Lead Architect :Guelo Nunes
Project Team : Lucas Lauton
Landscape : Leticia Bononi
Consultor : Roya Architects
Colaborador : Herus Marcenaria
City : São Paulo
Country : Brazil
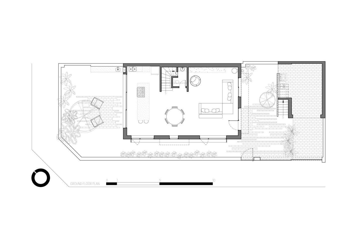
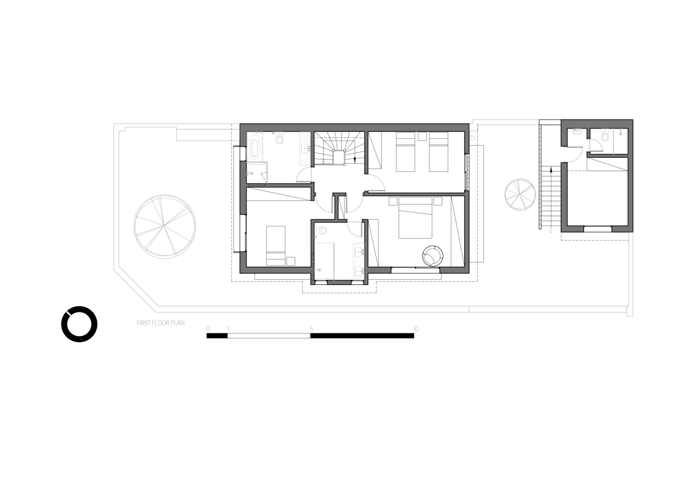
The need for a major intervention was clear since my first visit to the house. The walls on the ground floor interrupted the communication between the internal spaces and also their connection with the exterior of the house. On the first floor, the distribution was disconnected and fragmented, whit small and low quality spaces. When studying the original division of the house, I realized that the original living room area was too narrow, the entry hall too generous and the kitchen and dining area too big.
From this point on the idea of a complete inversion of the house came to mind: the kitchen occupies today the old living room, the dining room is where the entry hall was and the living room is where the kitchen and dining use to be. To make such transformation possible, metallic beans were set to support the walls on the first floor, aligned with the ones on the ground floor. The beans are intentionally visible to remind us, in a way, of the history of the old house.
Another strong reason for the layout inversion was to create a beautiful entry garden were the service patio was. The entry, which used to be shy and hidden on the narrow side of the house, is made today by this patio between the main block and the outbuilding. A hollow brick wall was set beside the outbuilding’s access stairs, displaying the passage of time through the change of light and shadows, whilst creating a dynamic and elegant background to the living area, especially at night. The external facades of the house were all peeled, exposing the original brick walls, which were left unrepaired. To organize the new openings, hide the old ones and protect the windows from the rain, 11in deep metallic black boxes were created around the windows and the walls between them were also painted black, creating horizontal elements on the facade.
As a counterpoint to the rustic facade, the interior of the house receives simple and pure materials, with no interferences. The floor is its own slab polished and varnished. The white walls and ceiling take out any excessive information, guaranteeing a fluid feel of the space and enhancing the connection with the exterior, framed by the new openings. The raw granite on the kitchen top reinforces the same concept. On the first floor the layout was all reviewed, a new bathroom was created to the hall and the master bathroom got bigger. All the windows are larger and bigger now and the original wooden floor was restored. This Project reflects, from the beginning, trust and synergy between clients and architect and the final result shows exactly that.
▼项目更多图片
客服
消息
收藏
下载
最近


















































