查看完整案例


收藏

下载
本项目位于青岛市崂山区的歌尔全球研发总部园区内。设计工作为针对研发总部大楼的共享空间进行整体设计,包括办公门厅、咖啡厅和会议共享区等公共区域。
园区毗邻崂山景区、自然环境优美。研发总部大楼的主体建筑外部以层叠的预制混凝土构件进行建造,水平的 GRC 线条将场地周围的山地自然引入园区和建筑,创造了丰富的半室外活动空间。在主体建筑的内部,结构柱和剪力墙体大量采用了清水混凝土效果,力图通过结构和材料的张力表现简洁典雅的建筑空间特征。
在整个公共区域的二次改造设计中,我们最大化的尊重了原建筑的设计逻辑。通过空间整理的方式,在公共区的高大空间中创造了多层水平挑台和通高庭院,使得层与层之间互相渗透联系,并通过模拟天光的方式来增强整体空间的室外感。
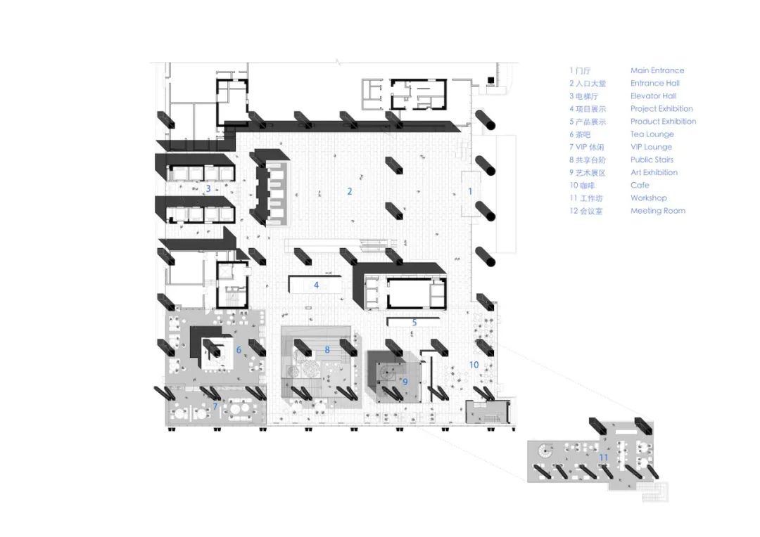
原建筑平面布局上,没有采取集中式的大交通核,而是由四个分散的长方体核心筒围绕出了中庭空间以及外部的开放空间。因此在公共区改造设计中,我们加强了平面布局中的离散型逻辑。
公共区全景 © 吴清山
大厅中的建筑模型 © 吴清山
公共区和咖啡厅 © 吴清山
窗边自由讨论区 © 吴清山
以原有的结构框架为底,通过植入光盒、展览台和咖啡台组件、茶吧盒子、大台阶庭院等等一系列方形几何体,用简洁而抽象的方式重构了公共区的空间布局。
中庭的水平性空间 © 三景影像
在材料语言的使用上,我们将建筑结构和交通核所采用的清水混凝土效果作为材料组织的底层逻辑,通过引进一系列冷、暖、半透明和反射性建筑材料,以凸显清水混凝土的材料美感,并为使用者带来在不同质感之间沉浸变幻的空间体验。
电梯厅和中庭光盒 © 吴清山
在首层和二层的电梯厅区域,背光 U 型玻璃所形成的“光盒”与清水墙面形成质感对比;而接待大厅和展示区大量使用的阳极氧化铝板,则通过在不同光线下产生的漫反射效果,与清水混凝土形成呼应和映衬,其单板开缝拼接的方式呈现出材料的工艺感特征,从另一个角度也传递了科技企业的产品气质;公共区地面使用了产自非洲的黑色花岗岩,同样是为衬托清水混凝土墙面的所主导的灰色质感。
电梯厅入口 © 吴清山
电梯厅内部光盒 © 吴清山
我们在休闲茶吧、大台阶庭院和夹层平台处使用了天然木材,温暖的木质在绿色植物的配合下,为总部大楼的公共区域带来鼓励社交与分享的舒适氛围。
在本次空间改造设计中,我们尝试将通常用于建筑外部材料——如清水混凝土、阳极氧化铝板、U型玻璃和花岗岩等等运用到了建筑内部。一方面希望通过新介入材料的原始质感来延续和凸显建筑空间中原本存在的简洁感和空间抽象性,另一方面希望以新功能空间的营造来进一步模糊建筑的内外边界,试图在建筑的内部创造出仿佛在城市中漫游的室外感。
夹层入口平台 © 吴清山
公共讨论区 © 三景影像
客服
消息
收藏
下载
最近






































