查看完整案例


收藏

下载
苏州仁恒公园世纪Yanlord On The Park 中国,苏州Suzhou, China
赋予这座园“苏州再设计”的定义
希望为古城“再造一座园”
让自然与繁华在“园”相遇
有“园”相见
项目简介 INTRODUCTION-
本项目位于苏州市姑苏区,项目总建设用地面积为12.33万平方米,项目计容建筑面积29.46万平方米,项目总建筑面积41.54万平方米。本方案设计区域被东西向胥涛路分隔成南北两个地块。用地南临胥江,西临胥市府河,地铁站位于南北两个地块间胥涛路上,自然环境优越,交通发达畅通。
◎区位关系
设计愿景 DESIGN VISION-
项目定位为高端国际化社区,城市中的公园社区。预留足够的户外空间进行景观设计,提供运动、休闲的国际化生活方式。以现代的形式演绎苏州园林之景,营造宜人的城市居住空间和环境。
◎中央景观 ©张虔希
◎社区运动中心 ©张虔希
◎社区运动中心 ©是然建筑摄影 Schran Images
规划概念 PLANNING CONCEPT-
总图的楼栋布置方式充分利用胥江自然资源。南北两个地块中心景观相互联系形成主要的规划轴线,北地块大户型延轴线布局,享用小区内部中心大景观,南地块大户型延南边布局,拥有一线江景提高居住品质, 在南北两地块之间空出较大的景观空间放置两小区景观主入口,营造优美气派的小区入口形象。
◎景观分析图
◎景观实景图
小区采用人车分流模式,最大限度的减少区域内通行的车辆对中心景观的干扰,整个小区基本为完全步行系统,使住宅与景观轴线,小区服务设施以及公共活动空间之间得到很好的贯通与联系。一套完整、安全、全天候的步行系统从中央景观区延伸到每一栋建筑,组织严密,系统性强,为居住者提供了完善安全的户外休闲空间。
◎步行系统实景 ©张虔希
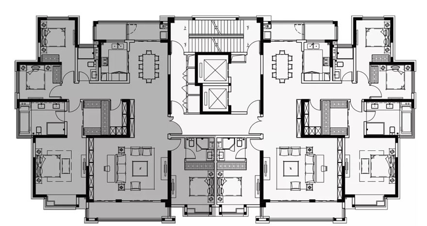
户型设计 HOUSING LAYOUT-
◎220户型
约31.68m²客厅
阳台栏板采用全玻璃设计,观景视线更加通透,给客户独一无二的观江享受,宽绰尺度尽享大家风度。
南北双阳台
南北双阳台,观赏一线胥江好景的同时也可观赏小区中央大景观。
双套间朝南设计
建筑南向开窗均为飘窗设计,立面局部设计了转角窗,增加观湖视线,享受顶配舒适空间。
◎140户型
南北双阳台
南北双阳台,室外景致一览无余
双卧室朝南设计
建筑南向开窗均为飘窗设计,立面局部设计了转角窗,增加观景视线,凸显空间进深感。
三开间朝南
阳光美满充足
立面设计 THE FACADE-
建筑以现代风格为骨架,含蓄结合古典风格的特点,结合建筑体量,以一种竖向展开的姿态展示出来。建筑造型沉着、典雅,强调整体的比例与细部的尺度。建筑形体的处理上,通过体量的进退获得大量阳台,阳台间通过构架设计体现建筑的整体性。观景方向的大面开窗,使视线开阔的同时也加强了建筑立面的虚实对比。
◎住宅实景 ©张虔希
◎配套商业 ©张虔希
| 结 语 |
- 处城市公园秘境,一处繁华喧嚣里的留白 -
- 城市之居,公园世纪 -
工程档案
项目名称丨苏州仁恒公园世纪
项目位置丨苏州市姑苏区
项目功能 | 高层住宅
设计单位丨上海日清建筑设计有限公司
设计总负责丨宋照青 岑岭 陶蔚彪
设计团队丨黄小卷 张超 陈凌峰 李圣 阮富威 褚炜
甲方设计团队丨姜宏 陆苑 聂勇
建筑面积丨415400㎡
设计时间丨2015年
竣工时间丨2018年
建筑摄影丨张虔希 是然建筑摄影 Schran Images
客服
消息
收藏
下载
最近


















