查看完整案例


收藏

下载
银川,地处中国西北地区宁夏平原中部,西倚贺兰山、东临黄河,是历史悠久的塞上古城和发展中的区域性中心城市。银川虽地处半干旱地区,但位于宁夏平原西侧的贺兰山脉气势磅礴,阻挡了凌冽的西北风,作为银川的天然屏障,与东侧的黄河围合出了如同江南般的肥沃土地,像在茫茫大漠中的一叶绿洲,使银川赢得了塞上江南的美誉。就在这片由贺兰山坚实守卫着的土地上,孕育了丰富多元的宁夏文化。
自春秋战国以来,生活在这一区域的各民族把生活的场景凿刻在贺兰山的岩石上,遗留下来丰富的壁画,展现了当时的社会习俗和生活情趣,成为凝固在岩石上的一部史诗。贺兰山因此便厚重的历史文化及艺术的载体。
美术馆便取意贺兰山,希望其能成为宁夏文化及艺术的载体,传达出宁夏的地域精神及艺术气质。
▲鸟瞰图
设计以贺兰山石为方案的形体意向,通过对体块的切割以及大小的组合,使建筑如同一组气势磅礴的巨石,抽象展现贺兰山的恢弘气势,成为屹立在城市之中的一座雕塑。
▲西北角透视图
▲建筑生成
▲建筑构成
建筑立面取形态中的三角形为基本单元,顺应墙面形态结合内部功能,形成渐变的三角窗。层叠的石材立面呈现出贺兰山石的肌理,与大面积玻璃的虚实对比更强化了建筑的体量感。
室内大厅空间以峡谷为意向,在硬朗的山石形体之间形成了多个大小不一的峡谷,并在其交汇处围合出开放空间作为建筑的中厅,通过不同高度平台的多维穿插,创造出丰富的空间效果,并形成环形的参观流线。室内空间延续外墙材料,室内与室外浑然一体,形成山、谷相依之态。
▲中庭空间
▲中庭空间
▲峡谷空间
室内设计延续建筑设计元素,呈现统一的空间形象。
▲培训区
▲报告厅
▲学术交流空间
▲艺术沙龙
▲艺术沙龙
▲总平面图
平面
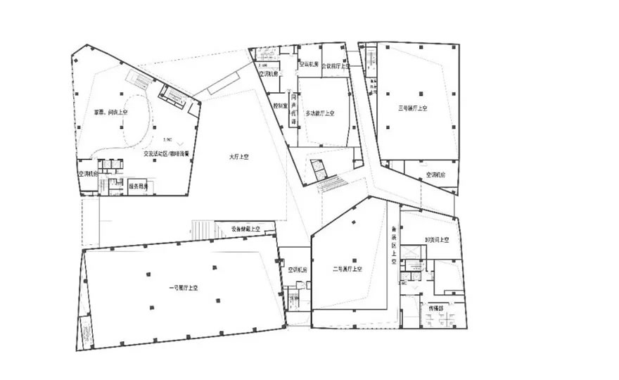
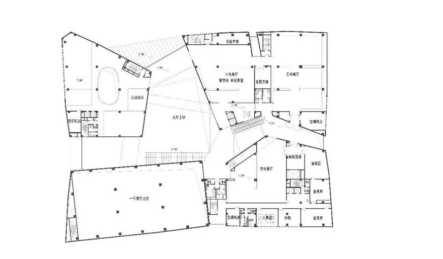
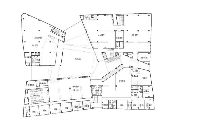
美术馆地下一层为典藏库、设备及地下停车。一层为主入口空间,设置3个展厅,其中一个为1000㎡高大展厅。另外设置了200人多功能厅以及公共活动区。二层主要为展厅以及培训区,东南角为办公区域。三层主要为展厅及活动交流区,南侧为办公区及画室。西北角局部四层设置城市平台,结合艺术沙龙,提供了一个可远眺城市景观的交流场所。
▲地下一层平面图
▲一层平面图
▲夹层平面图
▲二层平面图
▲三层平面图
▲四层平面图
▲北立面图
▲东立面图
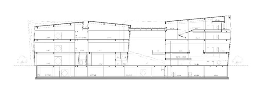
▲1-1剖面图
▲2-2剖面图
工程档案
设计单位:筑境设计
主创建筑师:周旭宏
项目地点:宁夏银川
设计时间:2016-2018
建设状态 :在建中,2020年建成
业主:宁夏文化厅、宁夏交通投资集团有限公司
方案设计:周旭宏、邱杰、范晶晶
施工图设计:范晶晶、余星星、邱杰、詹一山、肖俊龙、徐超华
结构设计:孙会郎、倪兴惠、骆涛、庞金龙、朱洪祥、马慧敏、何鑫、唐伟
设备设计:王自立、潘军、王瑞兵、沈丹群、余富奇、纪殿格
景观设计:张家声、王楠、陈涛
幕墙设计:中国联合工程公司
室内设计:筑境设计、北京冠亚伟业民用建筑设计有限公司建筑设计分公司
泛光照明:谙澜照明设计(上海)有限公司
建筑面积:29992㎡
客服
消息
收藏
下载
最近

































