查看完整案例


收藏

下载
负二层健身区
简约的块面组合,是白与木质、虚与实的默然呼应,无论是自然光线还是灯光应用带来的光影变化、明暗转换,空间氛围根据功能区的规划设定染上趣味的变幻感
负二层休闲区
负二层休闲区
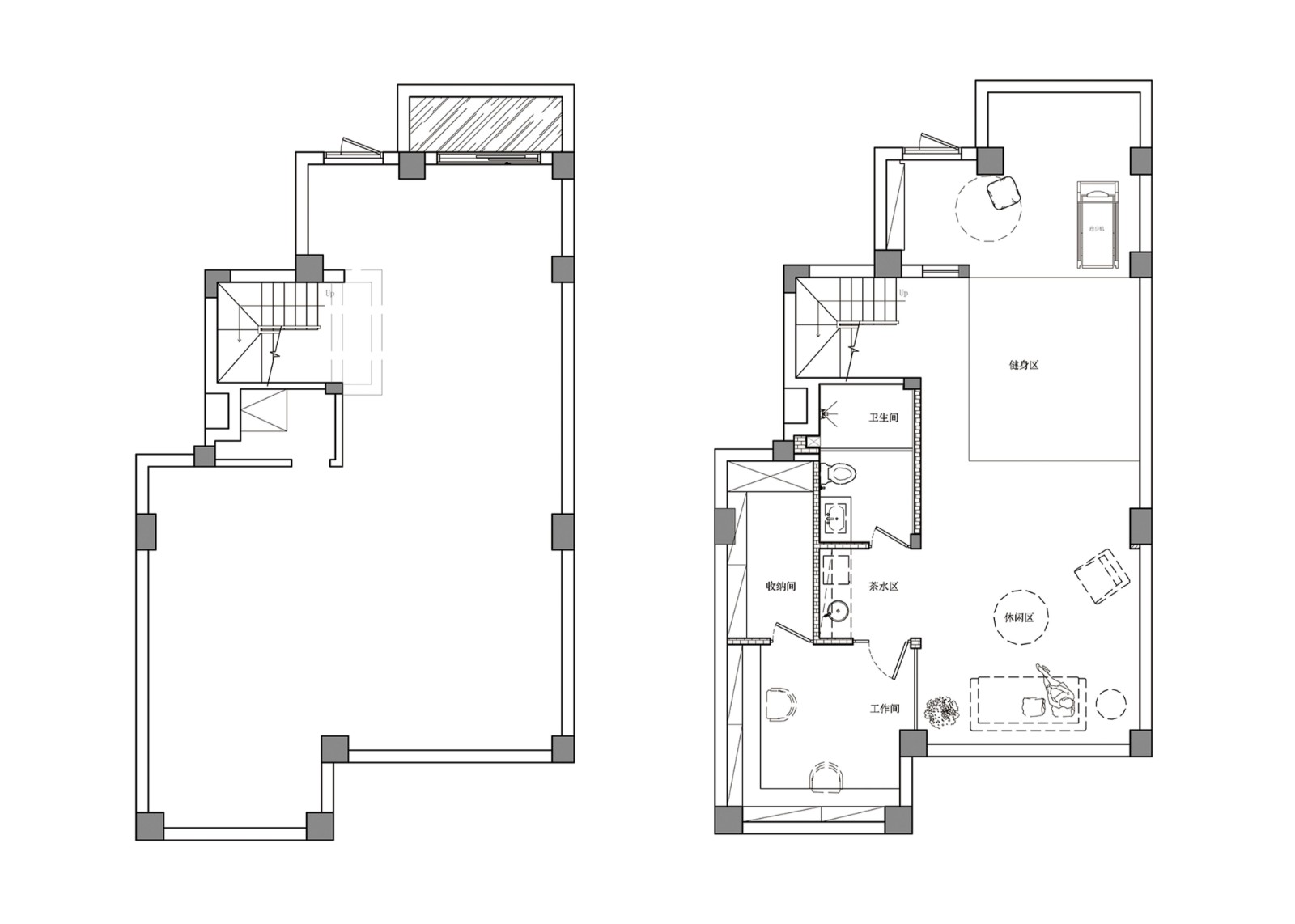
本案是2+B1的叠墅户型,一层还有一个大院子,临近景区,环境清幽,景色宜人。男主热爱健身,健康自律,女主厨艺很好,热爱生活,育有两个非常可爱的女儿。
负一层
负一层衣帽间
由于地下空间的层高合适,做了现浇处理,将原来的地下一层变为两层。门外就是地下车库,基于生活方便考虑,现浇空间设计为超大的衣帽间、储藏室等功能。
负二层楼梯
由于地下室交付时返潮现象严重,对墙面、地面都重新进行三防处理,防止梅雨季节的潮气,另外整屋配套三恒系统。从生活出发,切实解决功能、氛围、收纳、美观四大问题。跳脱的镭射玻璃仿佛是打开门后对这未知空间躁动的原点。水泥自流平的粗狂和整体细腻的光线表达,是自由的对立和协调。
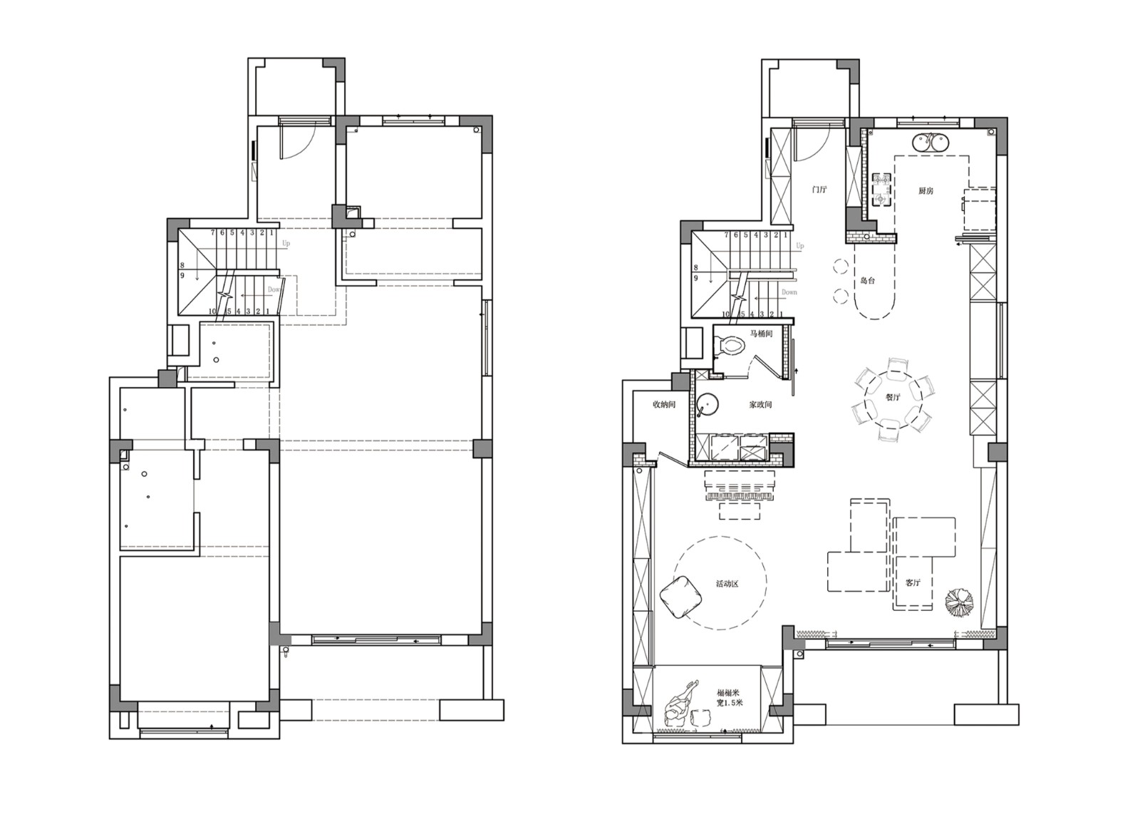
一层入户
铜制壁灯的光影铺满墙面,天窗玻璃透光,草帽灯的斑驳光影,在艺术涂料的底色之下赋予了空间更加柔和诗意的魅力。
两层之间的双层钢化夹胶玻璃,互为挑高视觉,因为它,负一层与负二层达成错落、相逢,在此蔓延出别样的闲情。水泥漆台阶的穿插形成地下空间和一层的衔接和引导,一路踏步台阶向上,跨过光影,对生活的理解又更进一步。
一层客厅全景
一层客厅灯带
一层客厅收纳柜
一层客厅
一层西餐区
一层,公共区域的体块划分,开放的空间由光带从顶面延伸落地,成为衔接玄关、客厅和餐厅之间的桥梁,形成不同边界的交汇。为了凸显空间转换,设计师采用波浪板造型融入。自然、稳重的色调点缀出这个线条空间冷静的温度。以倍显质感的胡桃木色作为空间主调,家具样式去繁求简,顶面内嵌灯光散发着温暖的光芒,空间各处利落的线条以强烈的秩序感营造出稳重的氛围。透过配置灯光、布艺、金属提亮,设定空间焦点,才不会显得繁复沉重。
一层客卫
一层厨房视角
一层厨房
一层餐厅吊灯
一层餐厅与餐边柜
客厅、餐厅、西厨、厨房,依循沉稳色系展开,交叠深色和灰色围塑低调气息,大理石、黄铜灯具与整体基调搭配和谐,并成为平衡的存在。
二层是生活区域
二层过道
走道隐藏式的收纳柜,波浪板造型的木条均为现场制作,以有序间隔的形式,形成了纯净的空间。调节一层和二层空间的转换,为较长的走道创造独特背景。
二层主卧
主卧,于空间每一处体现高质感的生活细节,绽放成熟优雅的光泽。床头背景定制硬包造型,更显立体层次。
平面图:
负二层
负一层
一层
二层
项目信息:
作品名称:闻柏
作品面积:388平米
作品竣工时间:2019.12
作品坐落城市:江苏南京
作品风格:北岩陈设
设计单位:北岩设计
设计师简介:
于园
客服
消息
收藏
下载
最近





























