查看完整案例


收藏

下载
项目摘要
南京城墙博物馆位于南京中轴极具历史价值的中华门以东。她不是一个普通的博物馆,最重要的藏品,不在博物馆里,而是矗立在它面前的、宏伟的南京城墙。它应该是呈现城墙历史文化的装置,是融入城墙历史环境的艺术品,也是一个面向公众开放的城市公园。
▼西北鸟瞰
▼顶视鸟瞰
博物馆的形体设计试图将古城墙的马道、平台等元素加以提炼,形成近城低,远城高的自然态势;反向攀升的坡道,连接高低错动的平台,与古城墙的马道形成和谐统一的形体语汇。
▼形体生成分析
▼南侧鸟瞰
博物馆周边各种不同时期所形成的自然条件、历史遗存以及建筑形态,构成了复杂而多元的城市肌理。博物馆的外观希望通过模糊映射的方式,让博物馆消隐建筑体量,同时收纳着周边的环境反馈。表皮材料采用夹丝反射玻璃,自外而内看,模糊映射,相融共生,自内而外看,清晰透明,新旧对话。
▼表皮策略
博物馆入口连续的绿化广场设置城墙主题展示节点组群,市民在博物馆闭馆时也可以从外部沿坡道登上屋顶,一览城墙、秦淮河与大报恩寺塔风光,让博物馆真正地成为面向公众开放的城市公园,成为举办各种庆典活动的文化集散地。
▼上屋面坡道
▼屋面眺望
具体介绍
南京城墙博物馆位于明城墙中华门瓮城的东侧,北侧毗邻内秦淮河,南侧与外秦淮河及大报恩寺琉璃宝塔仅一墙之隔。
▼总平面图
东侧的老门东片区则是南京重要的历史文化风貌区。场地呈矩形,占地面积约 7000 平方米,距西南两侧的瓮城和城墙最近之处不足 30 米,如此相近的距离使建筑高度被严格控制在 12 米以内。在现场勘察时,古拙高耸的城墙、气势恢宏的中华门瓮城和场地原有的古树都让人印象深刻。保护场地原有的场景对这一设计具有极其重要的意义。设计之初,思索最多的问题便是新建的博物馆应当以什么样的姿态来回应这片特殊的场地。
通过对场地周边的人文环境和城市肌理进行分析,设计逐渐将思路收束在一个“迹”字上。“迹”是一种内在模式的外化,正如落叶在空中飘落的轨迹暗藏了万有引力的驱动,建筑的外在表象也应有其内在的关联作为支撑。“迹”有两层内涵:一是周边的古城墙“遗迹”与建筑的相互关系;二是参观人群在建筑中活动的“轨迹”。
▼体量轴侧
▼屋面俯瞰城墙
场地西侧长约 90 米,是博物馆主要的对外展示面,与其相对的是中华门瓮城的马道。马道是古时候为运送物资上下城墙而设置的坡道,其独特而巨大的倾斜体量成为场地的视觉焦点。设计安排了一种有别于内部常规观展场所的外部观展台,让参观者在各个方位和高度上真切地感受到城墙的存在,并用坡道将平台连接起来形成参观流线。这一建筑形式很好地呼应了城墙马道的原型,呈现为一个逐步抬升的三折斜坡造型,并化解了建筑体量对城墙遗迹的压迫。
▼城墙博物馆夜景鸟瞰
东高西低的建筑姿态与古城墙产生了一种微妙而轻松的同构感。同时,面对文物局 12 米的限高要求,博物馆的绝大部分展览空间都被安排在地面以下。适中的地面建筑体量,形成了从东侧宏伟的城墙遗迹到西侧精巧的老门东民居之间的尺度过渡。
▼倪阳草图
▼剖面分析 1
▼剖面分析 2
城墙博物馆的东西界面分别平行于相邻的道路和城市肌理,因而在建筑内部自然形成了一个三角形的空隙,整体造型也变得更为灵动自由。这个空隙被设计成一个下沉的采光内院,使一定量的光线能够进入博物馆的内部。对于地下展厅而言,这样既节省了能耗,又提高了空间的舒适度。
▼西立面与中华门马道关系
与大多数博物馆不同,南京城墙博物馆最重要的展品其实并不是展厅内部的陈列,而是位于其外部的古城墙遗迹。因此,设置了一个通透明亮的玻璃立面,方便人们随时在室内欣赏城墙。而玻璃立面也能在一定程度上削弱博物馆的体量感,减少其对城墙遗迹的影响。经过多番比选,采用了一种新型的夹丝玻璃作为立面材料,其特殊的光学性质可让墙体在显示出实体质感的同时,将周边环境以漫反射的方式映照在建筑外立面之上。这种漫反射的图像虽然模糊但又不至于失真,正如印象派画家通过不精确的笔触来渲染场所的氛围一样。
创新的玻璃幕墙一方面使建筑消隐了自身,另一方面加强了博物馆与周边环境的互动,使之成为遗迹的有机组成部分。
▼坡道与夹丝玻璃幕墙
▼透过中华东门看建筑
南京城墙博物馆的参观流线分为内部和外部两条,以城墙为锚点,一脉贯穿而各有侧重,充分调动参观者的感官和情绪体验。
内部流线主要服务于展品参观。参观者从主入口进入后,会被建筑的倾斜体量所形成的下行屋面所引导,搭乘扶手电梯缓缓去往地下一层展厅。此时,参观者的心情会逐渐变得平静,可以在光线柔和的地下展厅中仔细研读城墙的历史资料,并在想象中勾勒出城墙的模糊轮廓,开始有了初步的概念。而后,参观者通过扶梯直达二层展厅,在观赏二层展品的同时,还可透过夹丝玻璃看到外部城墙的朦胧影像。这时城墙的形象在参观者的脑海中慢慢变得清晰,人们心中也对城墙真容多了一分期待。结束室内展品的参观后,参观者会走出一扇门,到达外部流线的起点。
三个不同标高的平台串联起了博物馆的外部流线,并分别对应不同的景观视野。
最低的 5 米平台位于内部流线的出口处,参观者在此可以北望内秦淮河岸的古城风貌。
在 7 米平台上则可朝南望向古城墙,这与在地面上仰视城墙的感觉大不相同。此时,由于城墙的遮挡,位于南方 1 千米外的大报恩寺琉璃宝塔也未能显现。
直至游人慢慢走向最高的 10.5 米平台,环顾四周,内秦淮河、古城墙和琉璃宝塔均可尽收眼底。
▼西立面夜景
▼中华门马道看西立面
观察的角度和方法不一样,人们所获得的感受亦有所不同。前后、高低、远近,移动造就了景象的变换,建筑和场地的活力因此涌现,与中国古典园林中“移步易景”的思想一致。
▼雪景-城墙上看建筑
南京城墙博物馆以“遗迹”和“轨迹”为出发点,通过特别的立面设计和流线规划,实现了建筑与特殊场地环境的呼应与融合。设计希望博物馆能生长在这片历史环境的土壤之中,既成为宣扬和传承南京城墙文化的教育基地,又成为市民和游客欣赏秦淮景观的全天候公共空间:“古城今壁相对影,登台极目,六朝秦淮!”
▼中华门瓮城与城墙博物馆
▼北侧城市鸟瞰
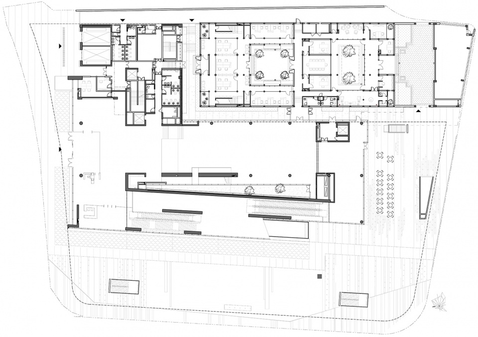
▼南京城墙博物馆平面图 1F
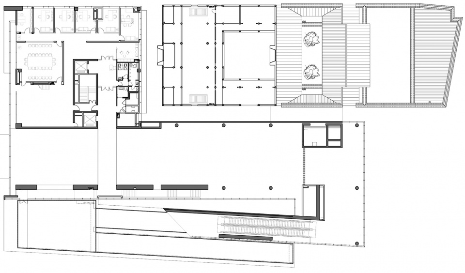
▼南京城墙博物馆平面图 2F
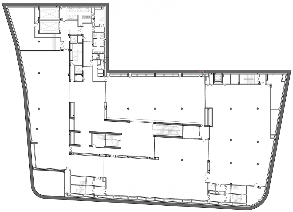
▼南京城墙博物馆平面图 B1
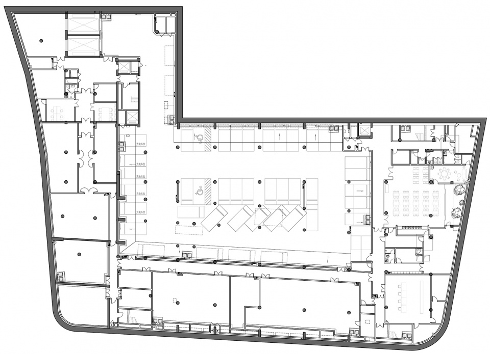
▼南京城墙博物馆平面图 B2
▼南京城墙博物馆屋顶平面图
南京城墙博物馆改扩建工程
项目地点:江苏南京中华东门路
Project site:Zhonghuadongmen Road, Nanjing, Jiangsu Province, PRC
设计时间:2016.10 -2017.01
Design time:OCT., 2016 – JAN.,2017
竣工时间:2021.12
Complete time:2021.12
用地面积:6882㎡
Ground Area:6882㎡
建筑面积:13089m²
Building Area:13089m²
业主:南京城墙保护管理中心、南京市秦淮区国有资产经营中心
Client:Nanjing city wall protection management center;Nanjing Qinhuai District State owned Assets Management Center
设计团队:
Team Members:
建筑:何镜堂、倪阳、何炽立、刘涛、杨浩腾、谢敏奇、郑惠婷、苏皓、夏侯蓉、陈志彪、陈鹏、马辰龙、何小欣、吴中平、陈志东、徐好好、谢燮、黄莹、张丽斯、韩谨如、原玮、吴鸣、方舟
结构:周越洲、许名鑫、陈志城、周汉香、杨慎银、李国清
电气:俞洋、过仕佳、张邦图
智能化:耿望阳、黄光伟
给排水:陈欣燕、李宗泰、杨静琨
空调:黄璞洁、何耀炳、李艳霞
室内(广州华地组环境艺术设计有限公司):曾秋荣、曾书函
景观:晏忠、蒙倩彬、吴清清
灯光设计(清华大学建筑设计研究院有限公司照明与智能化研究中心):姬艳举、马胜杰
幕墙设计:惠小鹏
驻场代表:谢建权
客服
消息
收藏
下载
最近




































