查看完整案例


收藏

下载
01
千上设计
设计是以光的语言为笔,描绘具象的存在,几何拼凑,线条交错,家的表达被浓缩于方寸天地间。
经由意识的表达,传递于形象的描摹,关于家的构想被拆解成零散的枝节,投映于具象的考量之中。
合围而座,低饱和度的色彩表达层次分明的色阶质感,经由暖色木材的映衬,空间表现为柔和的感知场域,传递平实单纯的温暖质感。
在尽可能的简单叙事手法之下,通过独具一格的大理石纹理,在不同的空间中表述相似的空间感受,从而形成整体性的感知。
丰盈的自然光,经由空间色调的调试转换,表现为柔和的温馨质感。
琐碎的日常被打散而消磨在经结构形成的洄游动线里,从而构筑起诗歌般的掠影浮光。
经由差异化的材质与肌理,铺陈温馨惬意的餐厨空间,通过细腻的线条与细节处理塑造精致而有趣的氛围。
家空间的设计,是设计师与居住者的双向探索与默契同频,在既有的四方盒子里,赋予其更多情感的表达与意象的延伸,从而构筑起,贯穿日常生活的幸福起源地。
项目名称:金悦府 - 风和
项目地址:浙江·瑞安
设计团队:千上空间设计
建筑面积:167㎡
竣工时间:2022.01
施工单位:千盛装饰
02
见介半舍
心有暖阳,微笑生活,聆听时间的脚步,眼里有万千风景。
我们没有采用传统的电视柜或电视墙的做法,便捷式的电视可以让空间可以更加灵活不局限。
客厅与书房空间上互通,观影聚会时可以选择包裹感比较强的躺椅;可以选择选择舒适性比较高的沙发;可以选择独立性比较好的单椅。
书房主要作为办公使用,增加了墨菲床以便父母来的时候可以休息,因来访的频率较少,故没有考虑太多私密性。
蕨类植物置于书房,灯光从底部向上,叶子倒影在顶上是我们独有的一番风景。
西厨跟入户做了整体设计,嵌入式冰箱刚好一体。依次为:衣物、鞋类、零食柜、冰箱、小电器及杂物收纳。
业主在家吃饭的时间较少,有朋友来会出去吃,于是设计了可以当餐桌又能当操作台的中岛。
门板上预留了透气孔,南北通透的通风条件可以让鞋子在家里没有异味。
厨房开放式设计,采用的日式的三眼灶、电烤箱、水槽。
玄关落尘区,右侧为钥匙、洗脚杯、牵引绳物等收纳;左侧为换鞋凳、雨伞、挂衣区、工具箱等收纳;
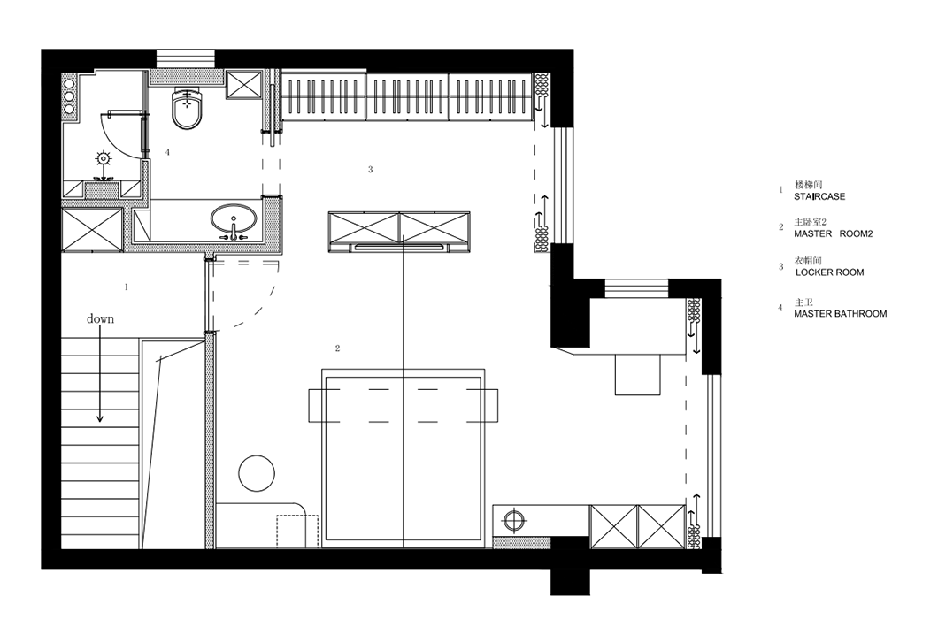
主卧的面积比较小,为了不影响地暖的使用,我们采用了悬浮床的设计
卫生间配备了台盆、马桶、淋浴、浴缸,并每个功能都有壁龛收纳。
我们利用了设备阳台做了一个小的空间,业主希望有时自己可以有个思考人生的地方,也可以看看窗外风景顺便感受一下这都是朕的天下。
设计团队:见介半舍
项目地址:江苏 苏州
建筑面积:90㎡
03
柒筑空间设计
本案设计打破了空间的局限性,采用客厅、书房、休闲区三位一体式设计。视觉上让整个空间变得敞快通亮,房屋的自然通透感也更强,给了居住者更多创造生活的可能性。
沙发呈圆润饱满的弯月形造型,承载着家的温暖,使身体以最放松的姿态在上边沉浸休憩。
客厅区域保留了书房区、休闲飘台,消除空间的壁垒,自然光线互通,能让整个空间敞阔通透,视野被无限扩大。
全开放式书房空间,满墙做了收纳,开启一个平面的美学。钢琴的隐藏式设计亦是精妙。
简约的大白墙,融入木作的温柔,窗边的帘子透出光线,温暖而平静。
卧室的空间设计延续了整体白色与原木风的调性,进门处由木栅门将衣帽间隔出,使空间具有延伸性。
木质衣帽间藏于卧室,便于收纳的同时,也有着不落俗套的品质生活。
隐藏于柜门的次卧,采用清冷耐看的灰色系。
项目地址:中国·温州 瑞安华府
客服
消息
收藏
下载
最近



























































