查看完整案例


收藏

下载
【项目地址】杭州金地天逸
【项目名称】音子
【项目面积】190㎡
【摄影文字】林峰/鱼儿
【设计公司】杭州凡尘壹品室内设计机构
【材质说明】简一/真丝手绘/雅丝兰、雅士白石材/木纹烤漆/黑钛、玫瑰金不锈钢/铜艺/
设计记言:
「几把青花伞悠悠的从巷子深处婉婉走来。踩着自己长长的影子,伴着哒哒哒的节奏,说着轻语、哼着欢歌优雅的漫步在石板路上。烟雨中,有绿荷,有粉红,有碧水,有人间的四月天。
月色下,石狮安静的守着石桥。十月,烟雨浓浓。情醉小镇,温恋石桥。岁月匆匆铺开了一张白纸,正好连着南北。我砚好了一池精墨,把思念的笔留给了你,任你挥毫太阳、泼墨月光。」
——本案例历时一年有余,每一件单品和尺寸业主基本都全权托付与我们,所以我们心存对生活的美好,不谈愁喜,只闻花香,只享家的静好,就能给你带来无限的归属感。我们比你更懂房子的意义,更明白家的温暖,更懂你的不易。
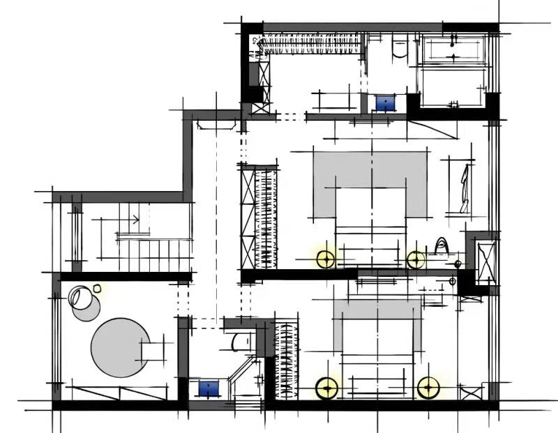
|1层平面布置图|
|2层平面布置图|
|客厅|▲一层地面水墨画材质与整体的深色家具形成白墙黛瓦的效果,顶棚设计手法采用水纹波浪线搭配黑色金属线,让线性的刚结合波型的柔,中式的阴阳调和之美。
▲而在大面积的深色木作中加入古铜金属元素,让原本沉闷的空间充满后劲,而调和定制的渐变色窗纱,则来自江南四季的灵感,将水乡自然、人文之美带进居室生活。
▲花褪残红青杏小。燕子飞时,绿水人家绕。枝上柳绵吹又少。天涯何处无芳草!墙里秋千墙外道。墙外行人,墙里佳人笑。——《蝶恋花》苏轼
|餐厅|▲垂落的白沙搭配晶透玻璃扶手,如同演绎雨滴般花语江南、突然提亮的橙色圈椅,仿佛南柯一梦,时间被静止,舒服且惬意~
▲白墙粉黛的水墨江南、柳叶飘雨的古城杭州,在杭城最美的秋季,室外微风凉爽,屋内人文雅致。用素雅来演绎和诠释东方文化美学的设计,相对于刻板红木的中式,更佳能表达新一代中式文化的方向。[size=12.6316px]
|父母卧室|▲父母房间的整体颜色搭配端庄稳健的古香大地色,平静朴素的生活态度,“斜月半窗还少睡,画屏闲展吴山翠”在静逸的闲暇空间,品味生活中的闲情雅致。
|主卧|▲结庐在人境,而无车马喧。问君何能尔?心远地自偏。采菊东篱下,悠然见南山。山气日夕佳,飞鸟相与还。此中有真意,欲辨已忘言。
▲诗词、烟雨、溪流,这是记忆中的江南;白墙、黑瓦、石板路,这是印象中的江南;中式不仅是一种风格,江南也不只是一个地域,更是一种文化,一种现代人在忙忙碌碌下追求生活真正品质的态度。[size=12.6316px]
|次卧儿卧|▲业主两个可爱的宝贝女儿,我们分别设计了两个主题色系,烟花三月的杭州,有翠绿的孔雀绿,有粉黛的桃花粉。
|厨卫|
| 其它 |
更多实景推荐:
左岸浅秋 | 遇见不一样的欧式
两个公寓的合并设计 | Юлия Якушина
龙湖·長滩原麓别墅样板间
客服
消息
收藏
下载
最近







































