查看完整案例


收藏

下载
【项目名称】圣地亚哥住宅
【项目地点】美国, 加利福尼亚州, 圣地亚哥
【总面积】 250 平方米项目
【完成时间】 2017年十一月
【设计团队】室内设计师: Teresa Xu 许立
【照明设计】Kevin Lee Yi 建筑设计
【咨询合作】:Dichen Ding 丁涤尘 [email protected]
【摄影】Jason Wang
这座住宅坐落于圣地亚哥一个安静的住宅区- Normal Heights 中, 面对着宁静的街道, 背后则是一片披满植被的山谷。 房子一共三层:地下室有自己的休闲客厅, 厨房还有客房和车库;一楼的主空间是主客厅和一间客房; 二楼是房主的主要生活空间,有主卧和一个大型衣帽间。 每一层楼都有自己的阳台, 让主人和来这里的宾客随时都能欣赏山谷里的自然风景。
▼建筑外貌
在给这座新建的房子做室内规划的时候, 设计团队主要的理念是创造一个简洁的空间,然后通过室内外的交流延伸增加空间的层次。 房主们工作非常忙碌,有着自己的牙医事务所,由于工作经常需要他们经常满世界飞来飞去, 这所房子其实算是他们偶尔得空时的度假屋,亲人朋友也会约在这里相聚,对大家来说是一个解压的机会, 让彼此放慢脚步细细品味生活好重整行囊让自己更好的迎接接下来的旅途。设计团队还特意使用了可回收的幕墙, 并利用太阳能作为主要功能系统, 意在对给这座宅子提供美好景致的大自然一些回馈。
▼简洁的空间
这所住宅里的每一层楼都有着大大的窗户, 让加州的阳光更好的照进每一个空间。 每一个阳台和室内空间都由折叠玻璃门相连接, 门完全打开时可以让室内外完全连接, 整个山谷都像是为自己所有。 房子里的留白空间就像是画布, 房主和朋友们从世界各地收集来的艺术作品都可以在这里展出, 纪录他们的故事和脚步。设计团队选的设计材料大多是橡木, 为空间们增添了一分大自然的气息。
▼大大的窗户与景观相对望
▼房子里的留白空间就像是画布
主客厅里的厨房岛可供6-7个人坐, 后面的厨房储物间被一个毛玻璃的墙面隔开, 让空间显得既整洁又宽敞。主人们很少做饭, 但是却非常喜欢和朋友一起点餐享用, 厨房岛这时便成了完美的工作台, 一起看着风景准备一些小食或者是在电火炉前看看电影,都是无比惬意的事。
▼主客厅里的厨房岛可供6-7个人坐
▼后面的厨房储物间被一个毛玻璃的墙面隔开, 让空间显得既整洁又宽敞
▼一层客卧
▼一层洗手间
主卧沿墙一侧有一个橡木长椅, 可以作为额外的收纳空间,也可以放上一两副照片或画作,更适合大家惬意地休憩,对着窗外的风景沉淀下来, 放松自己。
▼二层主卧沿墙木长椅可以作为额外的收纳空间或画作陈列
▼二层洗手间
▼二层露台
每一个卧室和洗手间的设计都是按房主的生活经历量身打造, 例如地下室的客房就有一个仿榻榻米的平台, 早上起来一睁眼面对的就是大窗外山谷里的鸟语清风,也让接下来的一整天都充满禅意。
▼地下层起居室
▼地下室的客房就有一个仿榻榻米的平台
楼梯的扶手设计成黑色金属片的幕帘,串联起整个楼里的所有空间。 四周的墙面都是主人和客人们的展墙,让他们可以挂上有纪念价值的艺术作品或者是摆上记录生活点滴的小物件。
▼楼梯的扶手设计成黑色金属片的幕帘
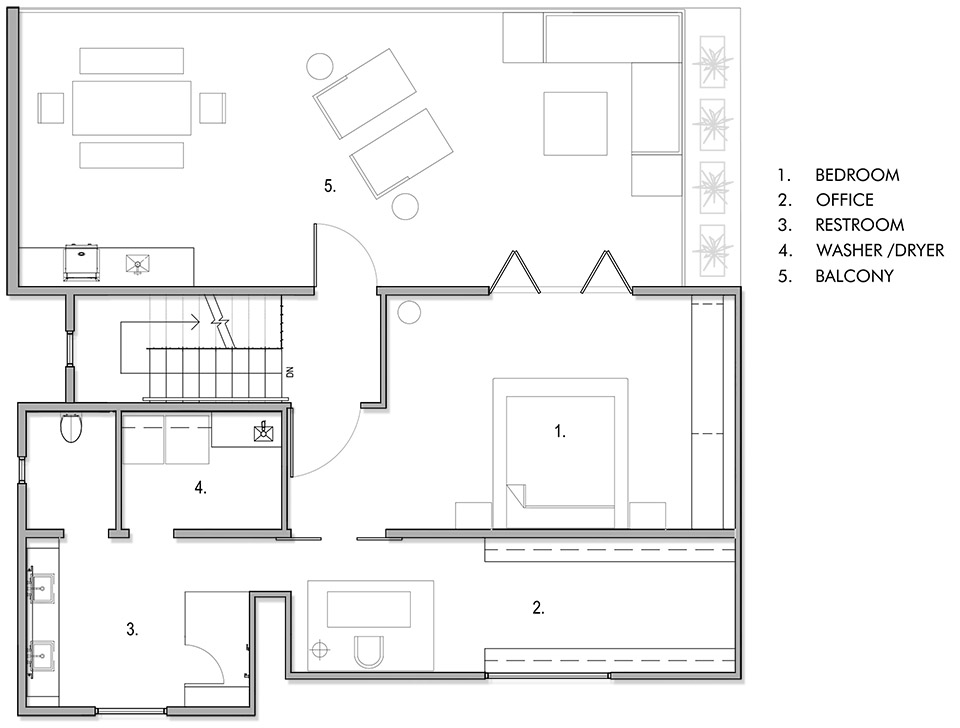
▼底层平面图
▼上层平面图
▼地下层平面图
更多实景推荐:
后现代混搭住宅装修设计
杜雪莹 | 执宿·住宅
SWING | 共享房屋设计
客服
消息
收藏
下载
最近






































