查看完整案例


收藏

下载

翻译
Firm: New Wave Architecture(Lida Almassian / Shahin Heidari)
Type: Commercial › Office
STATUS: Built
YEAR: 2018
SIZE: 25,000 sqft - 100,000 sqft
BUDGET: $10M - 50M
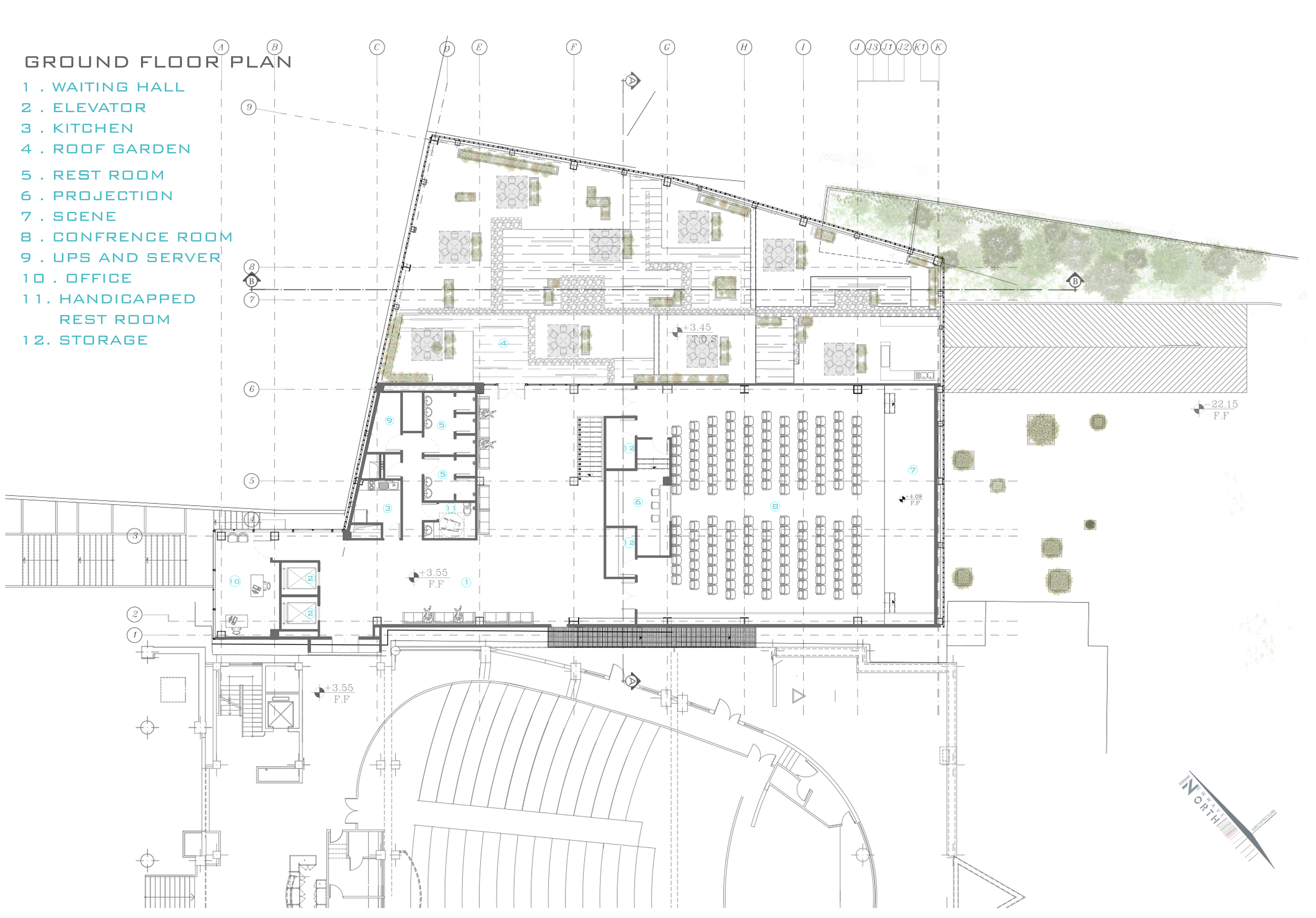
The project is locating in a limited lot at the end of an alley in Elahyeh zones of Tehran, Iran, which is limited to the neighbor buildings. Tehran is a huge, crowded city with massive pollutions. The defined project was about the expansion of parking spots of energy ministry organization. The north zone of Tehran is calling Shemiranat which were an enormous garden with great weather in many years ago; by the growth of Tehran, land dealers were became interested in this area. Therefore, gardens were ruined one by one, and finally, this area was changed to become the most expensive zone of Tehran. The richest residence of Tehran with traveling around the world became familiar with western style of architecture with roman and European facades and displayed this style in Elahieh. While this trend of design never has any compatibility with its context, neither regarding culture or environment. The main reason behind of these building with no identity is just gaining economic profit. With all these explanations, the primary challenge in front was how to face the current substantial predominant idea which creates such a space without any identity, in addition to a big gap in considering parameters like climate, culture, context. The functional planning of project was about designing on base of current regulation of parking buildings in addition to applying strategies to expansion and then connect the existing parking structures of water & energy ministry to support acquired spaces for users and clients. To use the maximum area of the lot, the minimum ramps for circulation were considered, therefore, the possibility of having a supreme number of parking slots were became applicable. Upper floors of the building allocate to the seminars and meeting rooms which are linking with existent meeting rooms. During the design process, we put out aim on introducing manifest for the future scheme of the buildings in this area of the city. Therefor we displayed the shape of tree in the structure and crust of the building which greatly linked with the context either physically or functionally. In the facades, the plot of the trees could be seen, any square present the leaves of the trees which all together illustrate a garden; consequently, the building with its specific façade, would notify the designer of this area about the importance of saving natural environment, and designing along with sustainable architecture criteria which all will improve the quality of life in such a big and polluted city like Tehran. A big roof garden was created on the last floor to give the users the chance of spending a relaxing time additionally to make a perfect visual quality with the structure. It is the crust which covers all the parking spots and seminars rooms. The interconnection and continuity between interior and exterior of the building gave an excellent characteristic to the building.
The building is 9000 square meters and contains from none floors.
New Wave architecture- Lida Almassian / Shahin Heidari
Principal Architects: Lida Almassian / Shahin Heidari
Team members: Sara Farahani , Maryam Amanpour, Tina Yavarian , Shirin Ziaei,Soheila Zahedei,Maryam Shokouhei,Mona Ramzei, Ilnaz Ashayeri, Pary Pour Moghaddam, Paniz Mehri, Sheida Ghotbi
Client : Iran Power and Resources Development Co
Gross floor area: 9000 sqm
Completion Date: 2018
Photographs: Parham Taghioff
客服
消息
收藏
下载
最近






















