查看完整案例

收藏

下载

翻译
Firm: Mei architects and planners
Type: Commercial › Office Industrial › Factory
YEAR: 2012
Photos: Mei architecten en stedenbouwers (13), Jeroen musch (10)
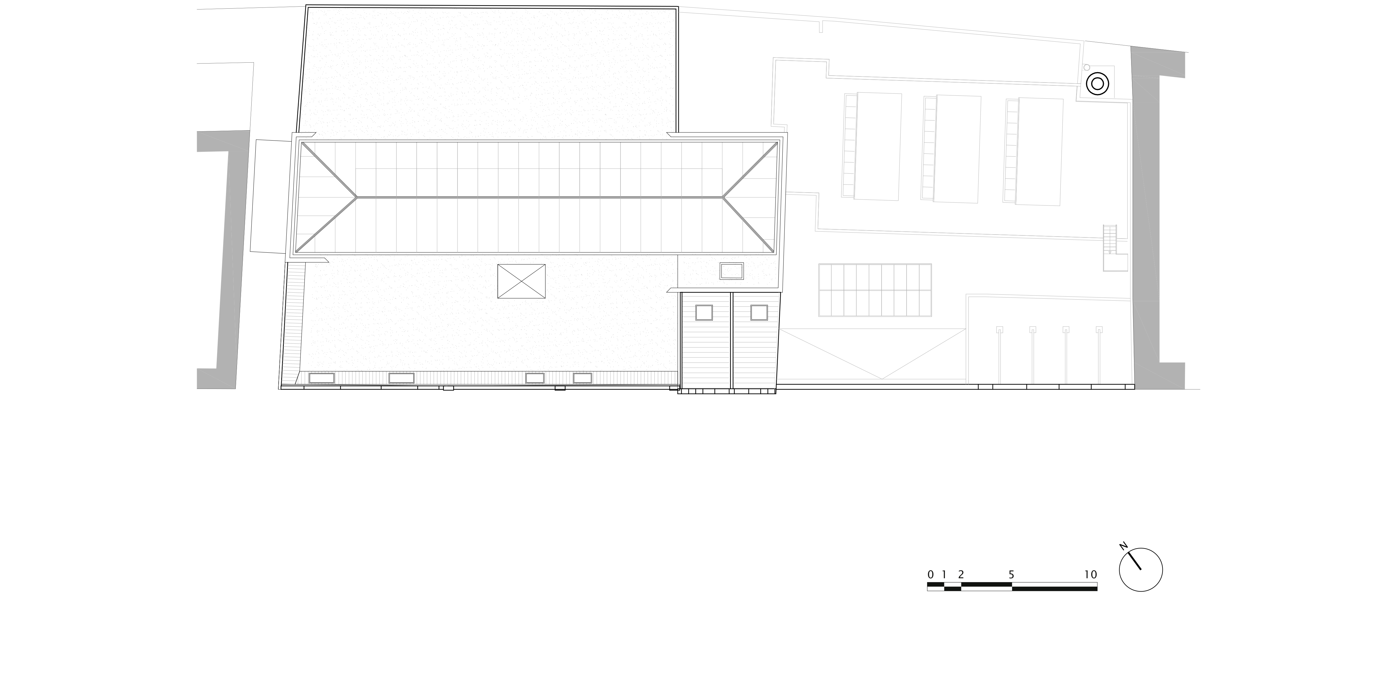
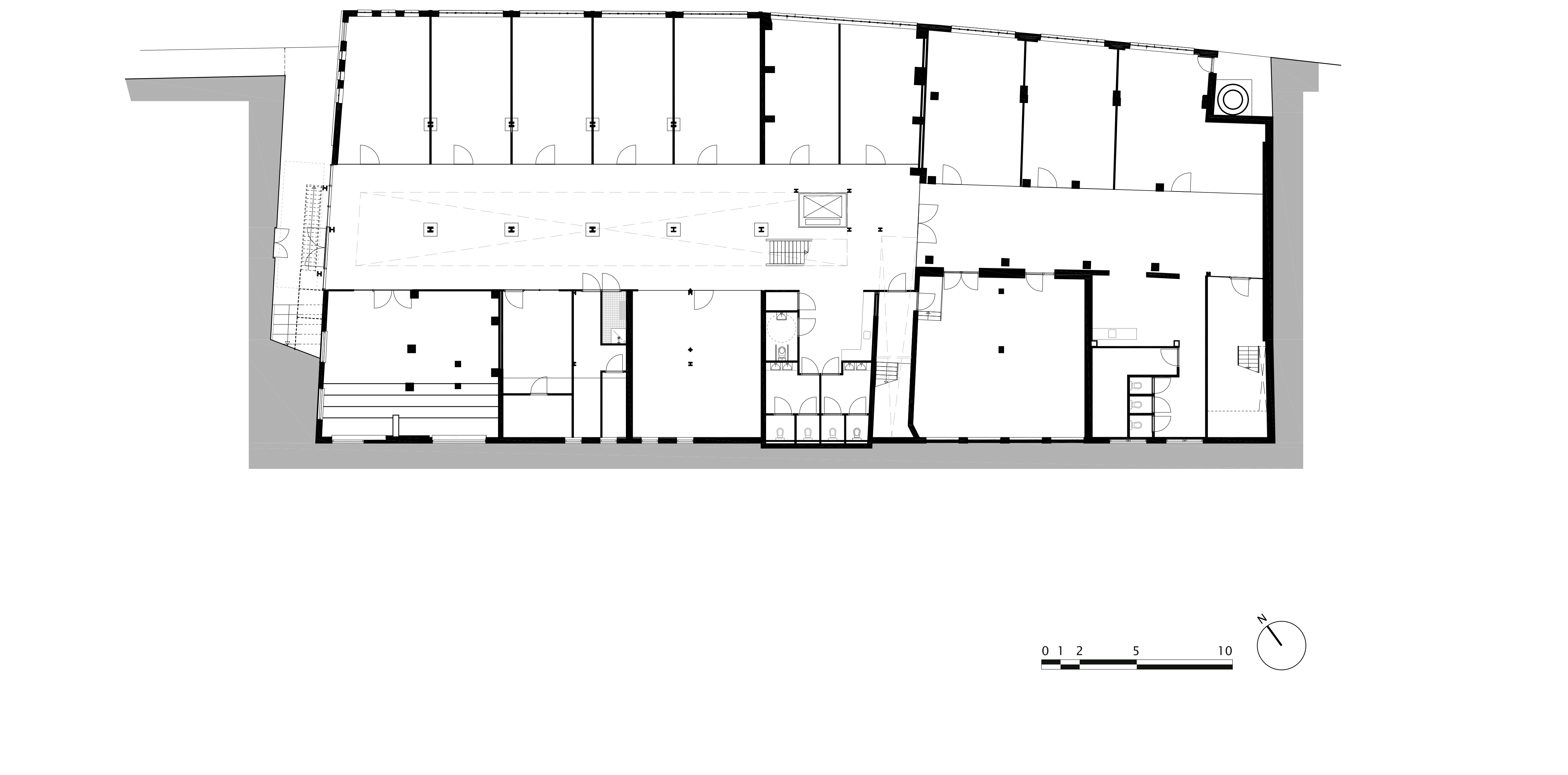
In the heart of bustling Delfshaven on the banks of the river Schie is an old characteristic industrial complex located which has lost a lot of its luster and vibrancy in the course of the years. The by time grown together agglomeration of characteristic buildings has become in an almost irreversible process of decline by years of vacancy and neglection. The exterior of the former steam laundry has two distinctive faces. On the street side, a series of traditional houses, and on the river Schie-side a factory-look including a big masonry chimney.
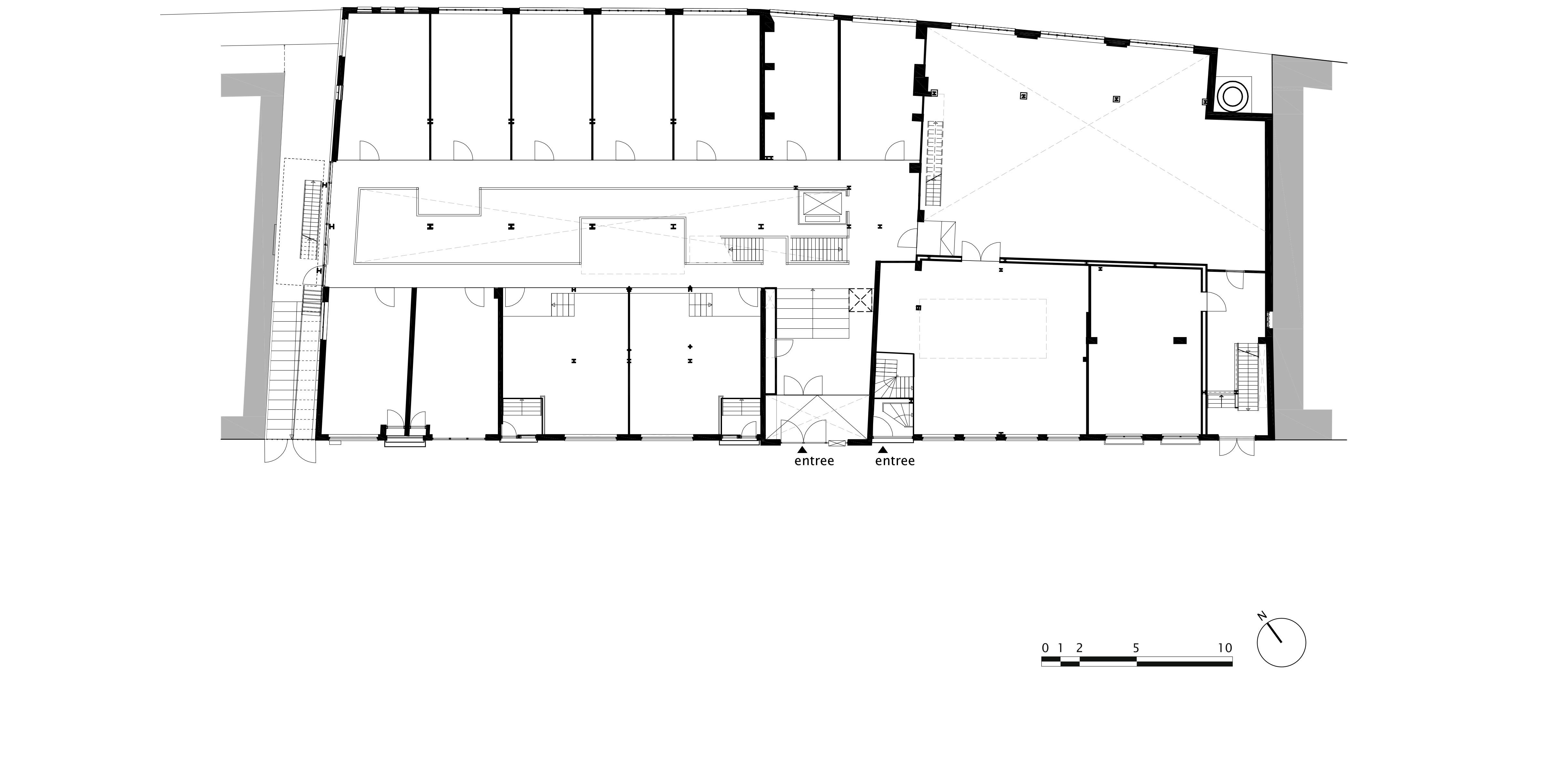
The narrow collaboration of the involved parties pursued to preserve this monumental complex. The building needed a radical change to become a central place for the creative industries, in which young small businesses and self-employed who have outgrown their living room may establish.
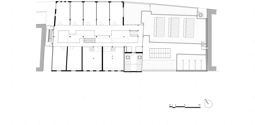
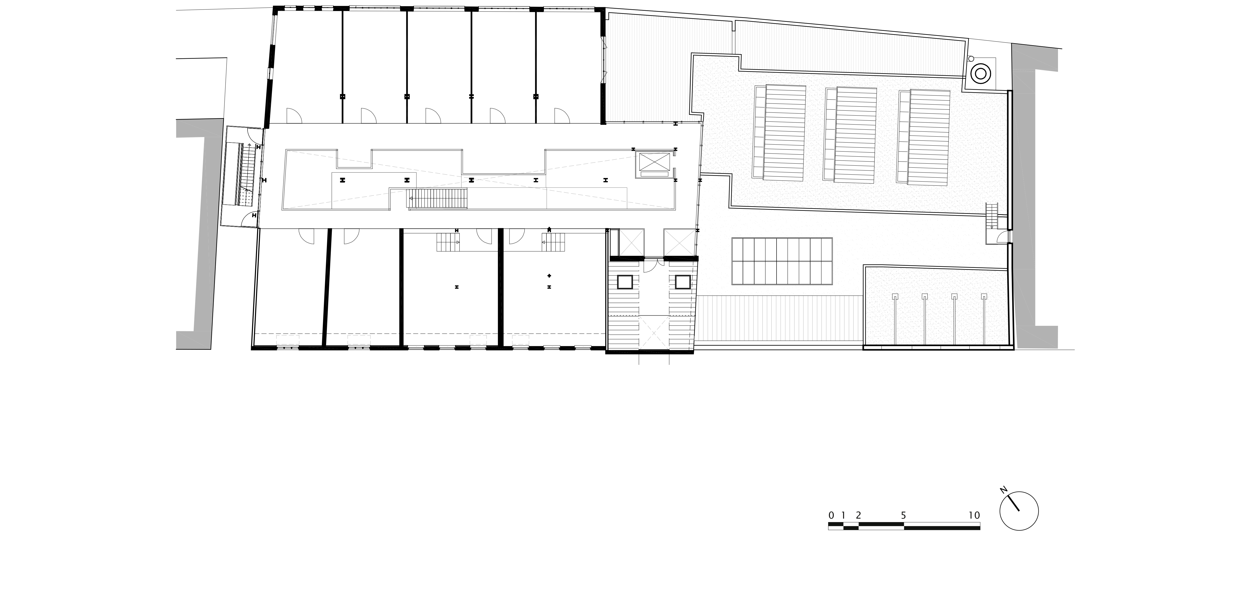
The strategic design of Mei is based on the preservation of the still existing aesthetic, cultural, historical and constructive quality, whereas the collapsed and dilapidated areas are replaced by an atrium adding spatial (light, air and space) and programmatic quality. The atrium forms the heart of the building as a meeting place for entrepreneurs, including collective elements as lounges, meeting places and pantries. The leveled business units gather around the atrium and make use of the existing characteristic façade openings around which are retained. The additions that are made, such as the steel structure in the atrium, are minimalistic and possess a uniform color palette to maintain the spatial quality. Bronze facades, which fit into the streetscape, reveal the new addition. The atrium is topped by an industrial rooflight to complete the pure renovation of De Fabriek.
客服
消息
收藏
下载
最近

























