查看完整案例


收藏

下载
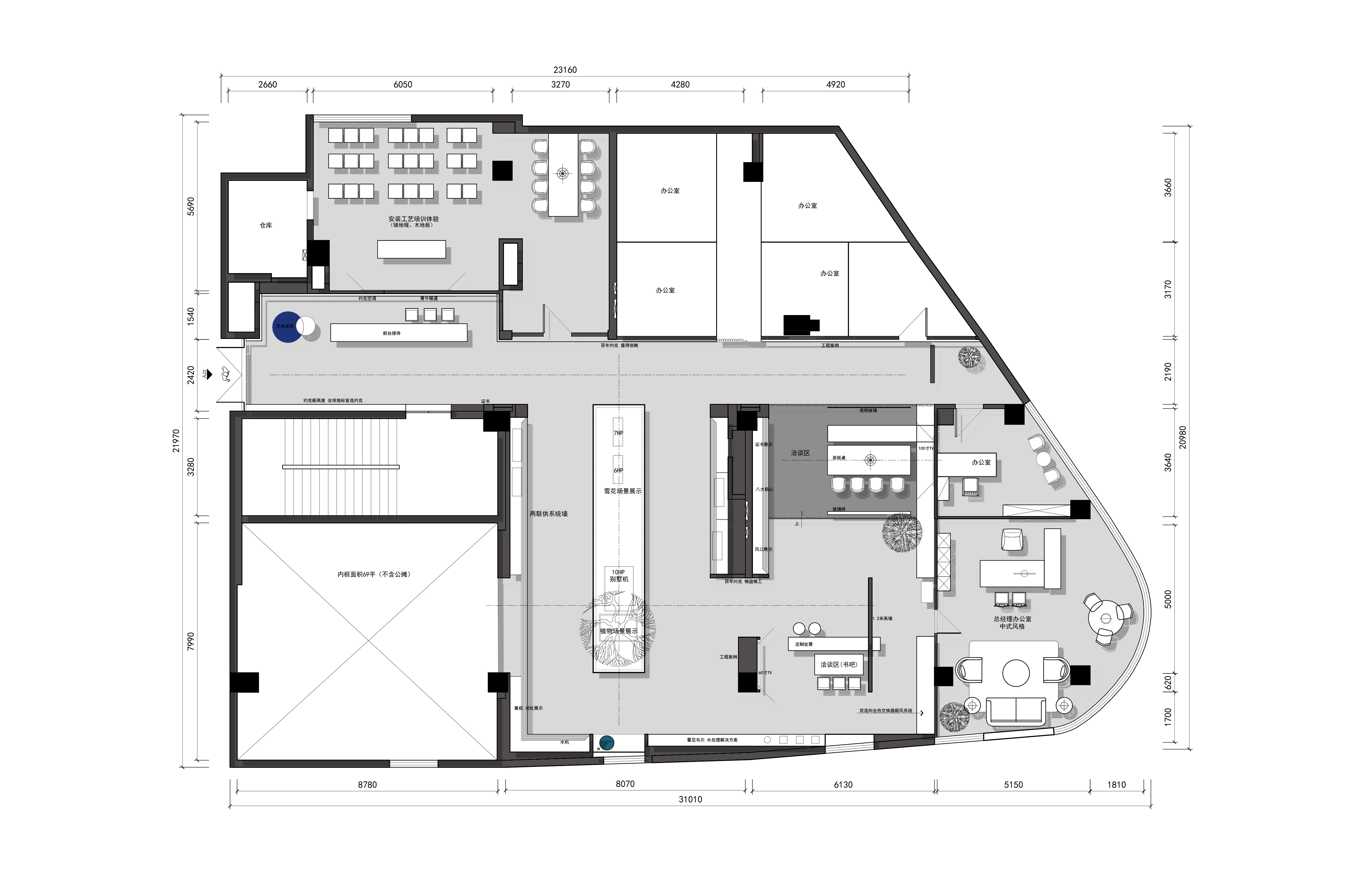
[ 设计考量 ]
Design considerations
既是商用空间,那么在功能格局上就有轻重之分,所以利用进门后的空间及通道作为前台的企业文化体现,再打通出中心的大空间用于大展厅及洽谈,较全面的做好产品展示。
Since it is a commercial space, then there is a difference in the functional pattern, so use the space and passage behind the door as the embodiment of the corporate culture of the front desk, and then open up the large space in the center for large exhibition halls and negotiations, a more comprehensive product display.
[ 前台接待 ]
Front desk
该项目整体设计定向于具有时尚感、科技感的产品体验综合展示性商业空间。主要材料为不锈钢、玻璃、进口漆。整体具有工业感及很强的科技吸引力,专卖店内部以布置暖通产品为主。
The overall design of the project is oriented to have a sense of fashion, technology-oriented product experience comprehensive display of commercial space. The main materials are stainless steel, glass, imported paint. The whole has a strong sense of industry and technology to attract the store to decorate the interior of HVAC products.
[ 洽谈区 ]
Negotiation area
恰谈区是整个空间的一个设计亮点,隔断采取了冰影纹砖的玻璃元素,让整个区域个性鲜明亮丽,富有艺术感。通铺的地毯如陈列在空间中的装置艺术品一般,与黑色肌理漆墙壁相呼应,为这里增添了一份工业味道。
Just talk area is a design bright spot of whole space, partition adopted the Glass Element of Ice Shadow grain brick, let whole area individual character bright, rich artistic feeling. Carpeting, like installation art on display in the space, matches the black textured lacquered walls, adding an industrial flavor.
[ 展示区 ]
Display area
通过采用螺栓和螺母固定这样简单的施工技术,将一个结构简单却非同寻常的空间呈现在人们面前,强调在有限空间内释放的无限可能,每一处细节都经得起检验和推敲。
Through the use of simple construction techniques such as bolt and nut fixation, a simple but unusual space is presented to the people, emphasizing the infinite possibilities to be released in a limited space, every detail stands up to scrutiny.
[ 大展示区 ]
Large display area
展示区用冷酷的工业风装潢,或许你会认为这是一处难以亲近的展示空间,当走进其中,你会意外发现,“冷冰的水泥漆”被通透的橱窗点亮,产品与绿植的互相融合,使整体以灰黑色调为主的空间增添了一抹艺术感和活跃气氛,时尚又温馨,冲突之下的美感让久居其中的员工不觉枯燥无味,让远道而来的客户难以忘怀。
The display area is decorated in a cool industrial style. You may think this is an unapproachable display space. When you walk into it, you will be surprised to find that the "cold cement paint" is lit up by the transparent shop window, and the products blend with the greenery, so that the overall gray-black tone of the main space to add a touch of art and active atmosphere, fashion and warm, the aesthetic conflict in which the long-lived staff feel dry and tasteless, let customers from afar unforgettable.
项目地址:湖南-长沙-青牛暖通-美国约克空调展示中心
建筑面积:400
设计风格:现代极简
硬装设计:周笙笙全案设计工作室
软装设计:周笙笙全案设计工作室
施工团队:周笙笙全案设计工作室
灯光设计:上海缀忆照明设计
主要材料:美国邓恩涂料、定制地毯、线性灯、玻璃砖、植物造景等
客服
消息
收藏
下载
最近
















