查看完整案例


收藏

下载
沿着Kennedylaan大街一路下行,你将从远处看到Bunker住宅塔楼的身影;再靠近一点,由Maaskant设计的原始建筑也将出现在眼前。我们的设计融合了不同的尺度和新旧事物。这是一场宏大而又敏感的干预——如同一位友善的巨人。
– Nanne de Ru, Powerhouse Company
‘Driving down the Kennedylaan, you can see the Bunker Tower from the distance; get closer, and you see Maaskant’s Bunker. Our design blends different scales, old and new. It’s a monumental yet sensitive intervention – like a friendly giant.’
– Nanne de Ru, Powerhouse Company
Powerhouse Company与RED、Being Development以及DELVA景观和城市规划公司共同完成了对埃因霍温Bunker大楼的非凡重塑。这座粗野主义建筑最初由Hugh Maaskant设计,在该项目中,大楼的水平混凝土结构得到了精心修复,并在此基础上增加了一座100米高的新住宅塔楼。
Powerhouse Company, RED Company, Being Development, and DELVA Landscape Architecture & Urbanism have just completed a remarkable reinvention of Hugh Maaskant’s Brutalist Bunker building in Eindhoven. The meticulously restored horizontal concrete structure has been transformed by the addition of a new 100-meter-high residential tower.
▼建筑概览,Overall view
在实施这次大规模的改造之前,Bunker大楼一直是该市学生生活的中心。如今,引人注目的新Bunker住宅塔楼与景色优美的公园共同为大楼注入了意想不到的生命力,全新的设施将有效地激发整个地区的活力。
Before the ambitious adaptation, the original and much-loved Bunker was long the center of student life in the city. Now preserved for the future, the Bunker gains an unexpected new lease of life thanks to the striking Bunker Tower and the beautiful surrounding park, additions which effectively energize the entire area.
▼场地平面图,Site plan
▼100米高的新住宅塔楼
The new 100-meter-high residential tower
▼整体立面,Building facade overview
大楼的复兴
Reviving the Bunker
由Hugh Maaskant设计的Bunker大楼是粗野主义的经典之作:大胆的线条、粗犷的材料以及宏伟的体量构成了具有水平特征的混凝土建筑。然而在最近几年,大楼已处于年久失修的状态,仅仅只是勉强逃脱了被拆除的命运。
在与RED公司和Being Development的合作下,Powerhouse Company在2016年赢得了由埃因霍温大学发起的重建项目竞赛。获胜方案提出通过增加新的住宅塔楼来为大楼赋予额外价值,从而为原始建筑的艰难修复提供资助。新增加的塔楼还将提供地下停车空间,使既有的停车场得以转变为环绕建筑的公园。
Hugh Maaskant’s Bunker is a Brutalist classic: a horizontal concrete composition of bold lines, rugged materials, and massive volumes. In recent years, however, it had fallen into disrepair, and only narrowly escaped demolition.
Together with developers RED Company and Being Development, Powerhouse Company won the 2016 competition set by the University of Eindhoven to decide the Bunker’s future. By adding the residential tower, the winning design generates the extra value needed to fund the painstaking restoration of the original building. Adding the tower also allowed underground parking, enabling the transformation of the existing parking lot into a public park surrounding the complex.
▼Bunker住宅塔楼与设计的原始建筑
The Bunker Tower and Maaskant’s Bunker building
复杂的修复工作和充满挑战的新建项目均是在Van Wijnen公司的带领下完成。Bunker住宅塔楼被建造在新的公园景观中,后者由DELVA景观公司担纲设计。凭借着绿色的环境和独特的居住机会,Bunker住宅塔楼成为了埃因霍温新建筑地标中的一员,从而为整个地区乃至整个城市带来了新的发展动力。
The complex restoration work and challenging new construction project were both handled by Van Wijnen contractors. The Bunker Tower is set in a new park landscape designed by DELVA Landscape Architecture & Urbanism. With its green surroundings and unique residential opportunities, the Bunker brings a new impetus to the whole area and Eindhoven as a whole, as it joins several new architectural landmarks in the city.
▼Bunker住宅塔楼外观
Exterior view of the new Bunker Tower
▼建筑近景,Close-up view
意义非凡的绿化
Meaningful greenery
Bunker公园的规划是设计中的一个重要部分,它增强并优化了埃因霍温的三条城市绿轴的体验。DELVA将既有的硬地停车场改造成了宽敞的、向公众开放的公园,提高了居民与当地社区的生活质量。Bunker住宅塔楼的视觉语言与公园场地形成无缝衔接,并延续到长椅和自行车停放空间的设计当中。通过种植本地植物并进行防雨处理,建筑周围和顶部的绿化能够有效缓冲雨水,同时有助于提高生物多样性。作为“de Karpen”与Dommel河之间的楔形绿地的一部分,Bunker公园提供了一个展示城市解决方案(如雨水收集)的窗口。
The Bunker Park is a vital element in the design, reinforcing the three green axes that characterize the city of Eindhoven. DELVA transformed the existing, paved parking lot into a generous and publicly accessible park, boosting the quality of life for residents and the local community. The visual language of the Bunker Tower continues seamlessly into the park, as visible in the design of the benches and bicycle parking spaces. The greenery around and on the building serves as a water buffer while contributing to biodiversity by implementing native plants and rainproofing the tower. As part of the green wedge between ‘de Karpen’ and the Dommel river, Bunker Park is a showcase for urban challenges like collecting water.
▼首层视角,View from the ground level
▼Bunker住宅塔楼的视觉语言与公园场地形成无缝衔接,The visual language of the Bunker Tower continues seamlessly into the park
标志性的建筑
Iconic architecture
既有Bunker大楼的设计者Hugh Maaskant是荷兰20世纪最著名且最多产的建筑师之一,其作品以大胆的语言反映了战后的乐观心态,并随着职业生涯的发展,逐渐从现代主义向粗野主义转变——1969年设计的埃因霍温科技大学学生会大楼就属于后者。建筑在落成后很快成为学生和周围社区的重要社交中心,并被人们称为 “De Bunker”。其倾斜的墙壁、简单的几何造型、显著的不对称性以及不加修饰的色彩标志着战后荷兰建筑的一个重要阶段。
The designer of the original Bunker building, Hugh Maaskant, was one of the Netherlands’ most famous and prolific 20th-century architects. His buildings, bold architectural statements that reflect the optimism of the postwar period, shifted from a Modernist to a Brutalist idiom during his career. Designed in 1969, the monolithic student union building for the new Technical University Eindhoven falls into the latter category. Quickly nicknamed ‘De Bunker’, the building became an important social hub for students and the wider community. With its sloping walls, simple geometry, pronounced asymmetry, and primary colors, the building marks an important stage in postwar Dutch architecture.
▼从既有的Bunker大楼望向建筑
View from the original Bunker building
大胆的方案
A bold solution
Powerhouse Company的设计采用了旧建筑的语言和材料,并大胆地将一座新住宅楼与原建筑进行了结合。方案并未采用传统的“围绕式”做法(将建筑显著分离,或建立新旧建筑的强烈对比),而是使新住宅塔楼成为Maaskant建筑风格的一种大胆且富有想象力的延续。
Powerhouse Company’s design daringly unites the new residential tower with the original structure, by adopting the language and materiality of the old Bunker. Rather than resorting to traditional solutions of designing ‘around’ monuments – with either a strict separation or a strong contrast between old and new – Powerhouse has made the new tower a bold and imaginative continuation of Maaskant’s architectural style.
▼轻微扭转的体量,The slightly-twisted form
塔楼的体量在上升过程中不断变细,与既有建筑的斜墙形成了呼应。其不对称的阶梯形式再次传达了Maaskant的设计理念,同时在城市的不同的角度上提供了新的视角。凭借三个完全不同的截面,新塔楼将原始建筑的设计语言提升到了新的高度,其扭转和上升的姿态展现出更加轻盈和开放的观感。塔顶的大面积玻璃立面象征着原本封闭的建筑已重新向城市开放,并将为新居民带来前所未有的优美视野。
The tower tapers as it rises, echoing the Bunker’s sloping walls. Its asymmetrical and stepped form again channels Maaskant’s design and presents varying perspectives from different parts of the city. In three distinct sections, the tower lifts Maaskant’s design language into new territory, twisting dynamically and becoming progressively lighter and more open as it rises. The greater expanses of glass at the top of the tower symbolize the reopening of the previously boarded-up building to the city and provide wonderful views for the new residents.
▼塔楼的体量与既有建筑的斜墙形成呼应
The tower tapers as it rises, echoing the Bunker’s sloping walls
材料的魔力
Material magic
为了让新塔楼拥有与原始建筑相协调的混凝土色调,项目团队花费了8个月的时间,经历了20次的调整,最终实现了现在的立面外观。对于一座具有纯粹感的丰碑式建筑而言,天然石材是建造立面的理想选择。它与Maaskant使用的玻璃和木材一同被整合到建筑富有律动感的水平条带元素当中。立面上的部分墙板是以悬吊的方法安装,这些均是在风力低于5级(35km/h)的条件下安全实施。
Restoring the original concrete of the old Bunker took eight months and 20 permutations to arrive at the right shade for the renovation. Creating the new Bunker Tower façade in a materials palette that harmonizes with those used by Maaskant, presented the contractor with an interesting challenge. For sheer monumentality, natural stone was an obvious choice for the tower façade. This was combined with glass and wood, materials that are strongly featured in Maaskant’s design. The three materials are integrated into a lively rhythm of horizontal bands. Some of these mixed-material façade panels were hoisted aloft, which were safely done at windspeeds of less than 5 (35 kilometres per hour).
▼立面近景,Facade view
▼原有Bunker大楼立面,Facade of the old Bunker building
高品质的生活
Living the high life
住宅塔楼共32层,提供210套高档商品或租赁公寓。这些公寓均拥有宽敞的布局、能够看到壮观景色的大尺寸窗户、奢华的天然材料以及凉廊和阳台。DELVA景观公司为1-18层的露台设计了一体化的花槽,连绵的绿意与旁边的Bunker公园形成对话。
The residential tower offers 210 high-end rental and owner-occupied apartments over 32 floors. These combine spacious floorplans with huge windows framing extraordinary views, luxurious natural materials, and loggias and balconies. Up to the 18th floor, DELVA added greenery into the integrated planters of the balconies, connecting to the Bunker Park.
▼带露台的公寓,Apartment with balcony
在经过修复之后,原始建筑还将容纳在线教育品牌Goodhabitz的高端办公空间(3000平米)以及半公共的Grand Café,作为对建筑原有社交功能的延续。
The original Bunker, now beautifully restored, will house the high-end 3000-m2 office space of Goodhabitz, an online education provider, and a partly public Grand Café, which continues one of the old building’s original social functions.
▼首层室内空间,Ground floor interior detail
▼附近公园视角,View from the adjacent park
▼塔楼首层平面,Bunker Tower – Ground floor
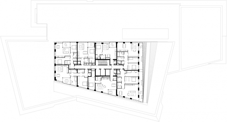
▼塔楼十九层平面,Bunker Tower – Floor plan 18th level
Project information
Location: John F Kennedylaan 3, Eindhoven
Size: 32.640 m2
Period: 2015 – 2023
Program: 210 apartments, office space, semi-public Grand Café, Underground parking garage, bicycle parking space
Partners & advisors
Developers: RED Company, Being Development
Investors: Borghese Real Estate, Pensioenfonds Rail & OV
Legal advisor: DLA Piper
Constructer: Van Wijnen
Architect: Powerhouse Company
Landscape architect: DELVA Landscape Architecture & Urbanism
Project management: DVP
Installation advisor: Deerns
Constructer engineer: IMd Raadgevend Ingenieurs
Building physics: Deerns
Advisor urban planning:RHO Adviseurs
Photography: Sebastian van Damme
Videography: Marcel IJzerman
客服
消息
收藏
下载
最近

























