查看完整案例


收藏

下载

翻译
Pino Familia
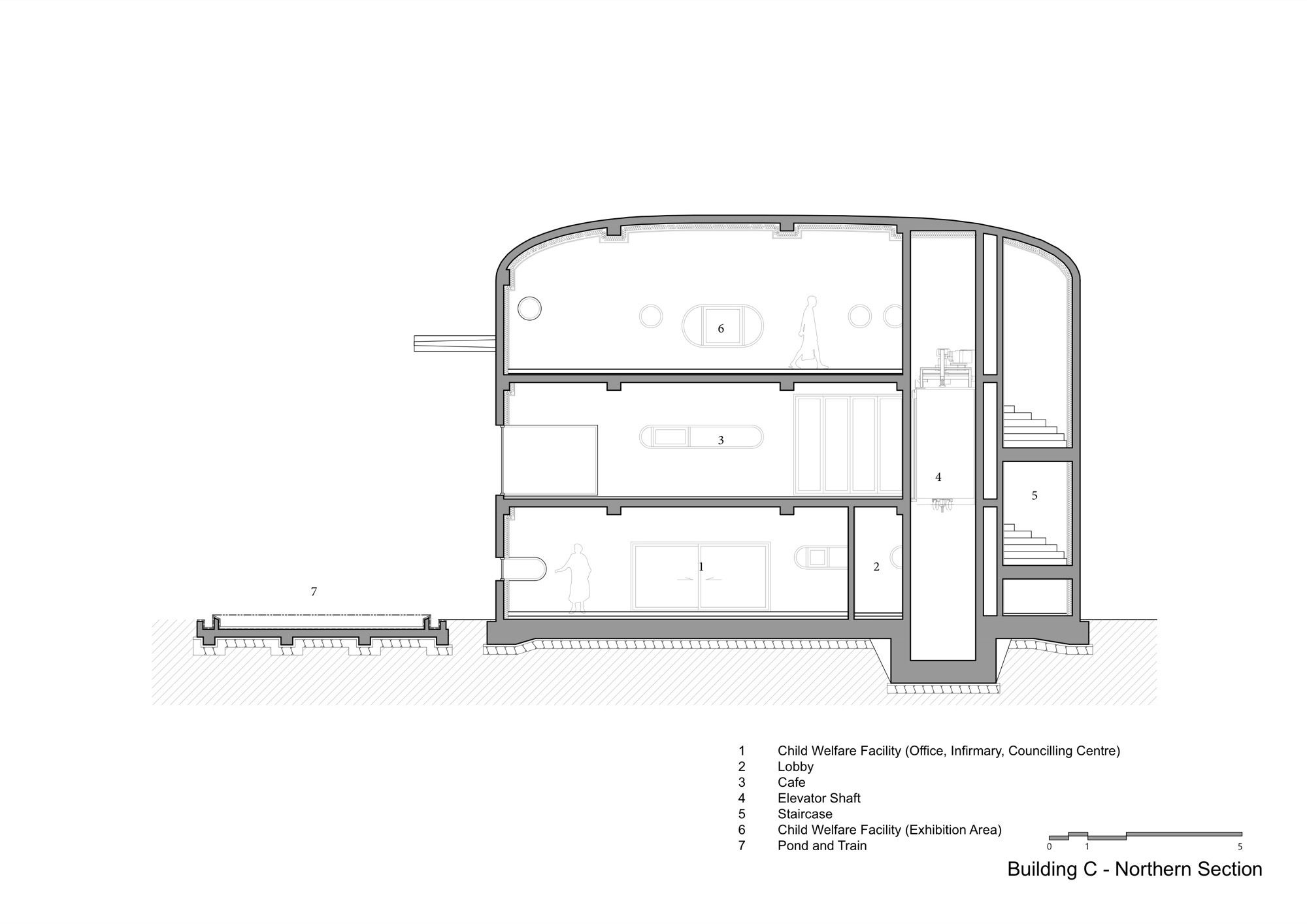
The 300pyong irregular shaped piece of land near the outskirt of northeastern Seoul simultaneously faces forests and the dense urban conditions. The boundary that faces the city is walled up according to wishes of the client, who is both an avid collector of Pinocchio dolls and artifacts from around the world and owner of a private kinder-garden. The client had a programmatic vision for a museum and galleries where her Pinocchio collections and related collections and designs could be enjoyed and experienced. The first building was envisioned as mainly as a Pinocchio doll museum with some seating areas for watching performances. There was a request for an outdoor hall where a makeshift arena could take place. The second building was to house many other character designs related to Pinocchio, with an emphasis on interactive program and a larger auditorium for movies, concerts, and other congregational uses. The third building needed to accommodate a museum shop with a cafeteria, and some workshop space.
Even though the plot of land is not small, placing three buildings, including a large underground parking and service area, prompted 2 buildings to situate around the boundaries facing the city, and one facing the forest. The buildings provide a nice ample grassed inner court where a sky-train, a pond, and large Pinocchio statue all mingle in a spacious manner.
The 1st building- (Wave and whale) attempts to express a space and form which is somewhat inspired by the Pinocchio story where a large storm and whale appears. The plan is curved linear reminiscent of a fetus crouching in the womb, the plan grows out to become a mix of whale and wave mixing and becoming one entity, a very narrow crawl space between large and small stepped seats attempts a space of playfulness and adventure, unfortunately, though, it is closed for the time being. The sky open, concave crater-like space enclosed within the structure can become an extension of indoor space in good weather, since all windows can be folded and pushed to the sides, many interior concepts and designs were pushed to the limit, but it had to be met in the middle grounds due to program and safety issues.
photography by © Namgoong Sun
he 2nd building-(Whale Tale) is a figurative building, standing and holding strong like a large whale. The tail space aspires and let in the sun and moonlights in at the right moments, while the body space boasts both the heights and the double deck upheld by steel hanging columns. This is where many activities take place with large character dolls and accompanying tables and seats. The head boasts a curved and high ceiling auditorium space for shows and performances for children and adults alike.
The 3rd buildings(The nose fountain) is adjacent to the pool and sky train. The stainless nose is a water fountain that provides active sound and movements to the still environment. The form assimilates to the overall curve linear tone, with windows the following suit, but with Morse code symbols If you look at them carefully and try to read them, you will figure out few simple words. The balcony on the second floor can be open at both sides, encouraging visual connectivity to the forest. This connectivity in visual and spatial terms was a most important factor in the design of the building. The 2nd-floor café provides a good view of the court and two other buildings.
The three-dimensional curve of the two buildings required many intensive section drawings, which carpenters needed in order to build proper and accurate scaffoldings, The prior cost estimate for a clean and immaculate finish turned out too expensive, so a rough hand built quality of the surface was expected from the beginning, the patterns of those two building relied heavily on the aesthetic and functional eye of the carpenters. The final products flash many different regions of texture, it somehow seems resembles the spaceship from the movie Prometheus.
Project Info
Architects : Moon Hoon
Location : Seoul, South Korea
Year : 2016
Type : Cultural/ Museum/ Gallery
Photographs : Moon Hoon
photography by © Namgoong Sun
photography by © Namgoong Sun
photography by © Namgoong Sun
photography by © Namgoong Sun
photography by © Namgoong Sun
photography by © Namgoong Sun
photography by © Namgoong Sun
photography by © Namgoong Sun
photography by © Namgoong Sun
photography by © Namgoong Sun
Courtesy of Moon Hoon
Site Plan
Site Plan
Floor Plan
Floor Plan
Floor Plan
Floor Plan
Floor Plan
Floor Plan
Elevation
Elevation
Elevation
Elevation
Elevation
Elevation
Section
Section
Section
Section
Courtesy of Moon Hoon
Courtesy of Moon Hoon
Courtesy of Moon Hoon
Courtesy of Moon Hoon
Courtesy of Moon Hoon
客服
消息
收藏
下载
最近









































